MALSH Realty accompagne les entreprises dans leurs projets immobiliers, qu’il s’agisse de locaux d’activités, de bureaux, de commerces, d’entrepôts ou de terrains. L’agence intervient aussi bien au ...
En savoir plus

362 m² divisible dès 144 m²
HT HC
Location activité/entrepôt - 362 m²
Lyon 7 (69007)
Dernière mise à jour : Il y a 2 mois
Locaux d'Activités à LYON 7 - A LOUER - 362 m² divisibles à partir de 144 m²
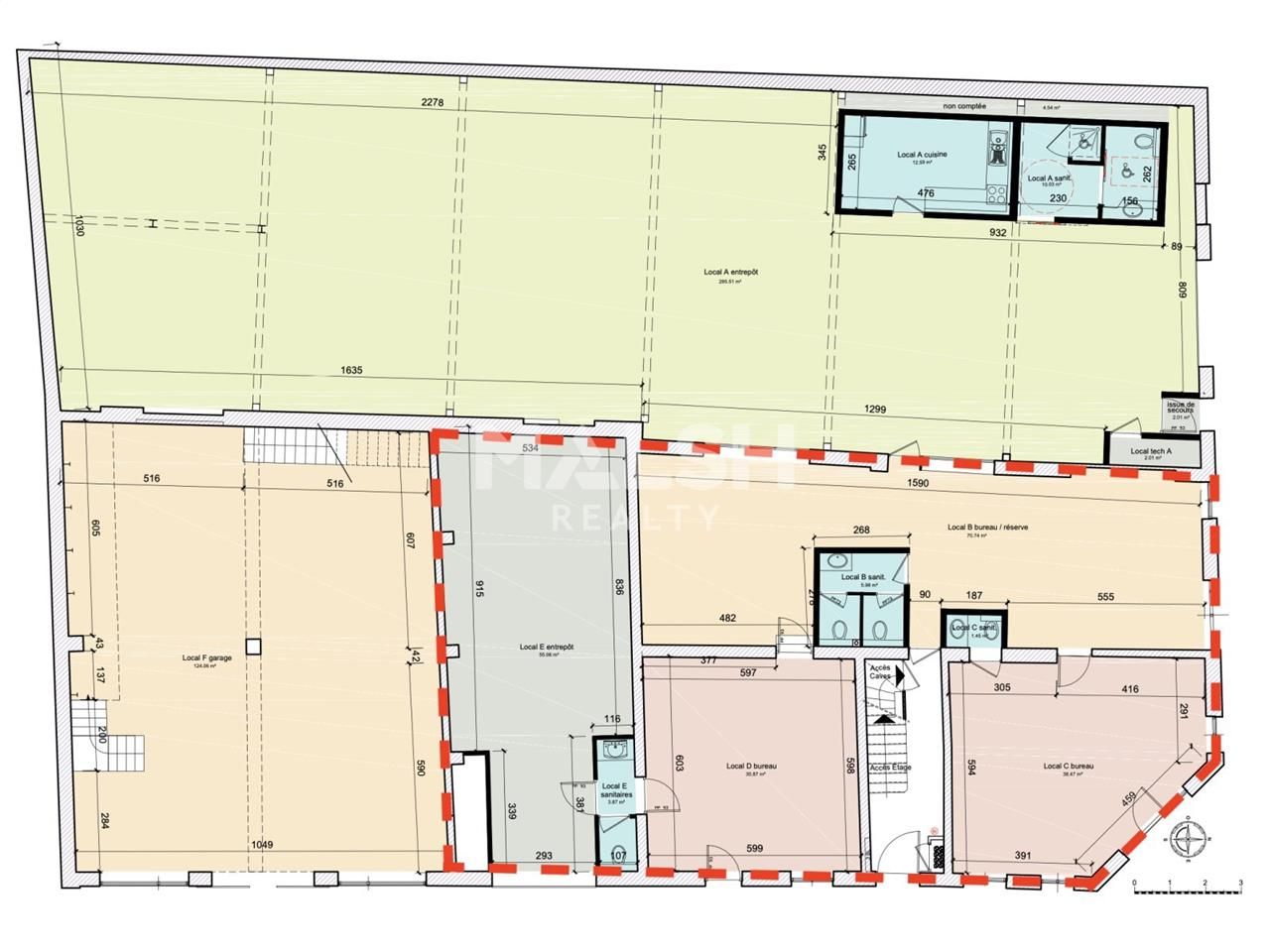
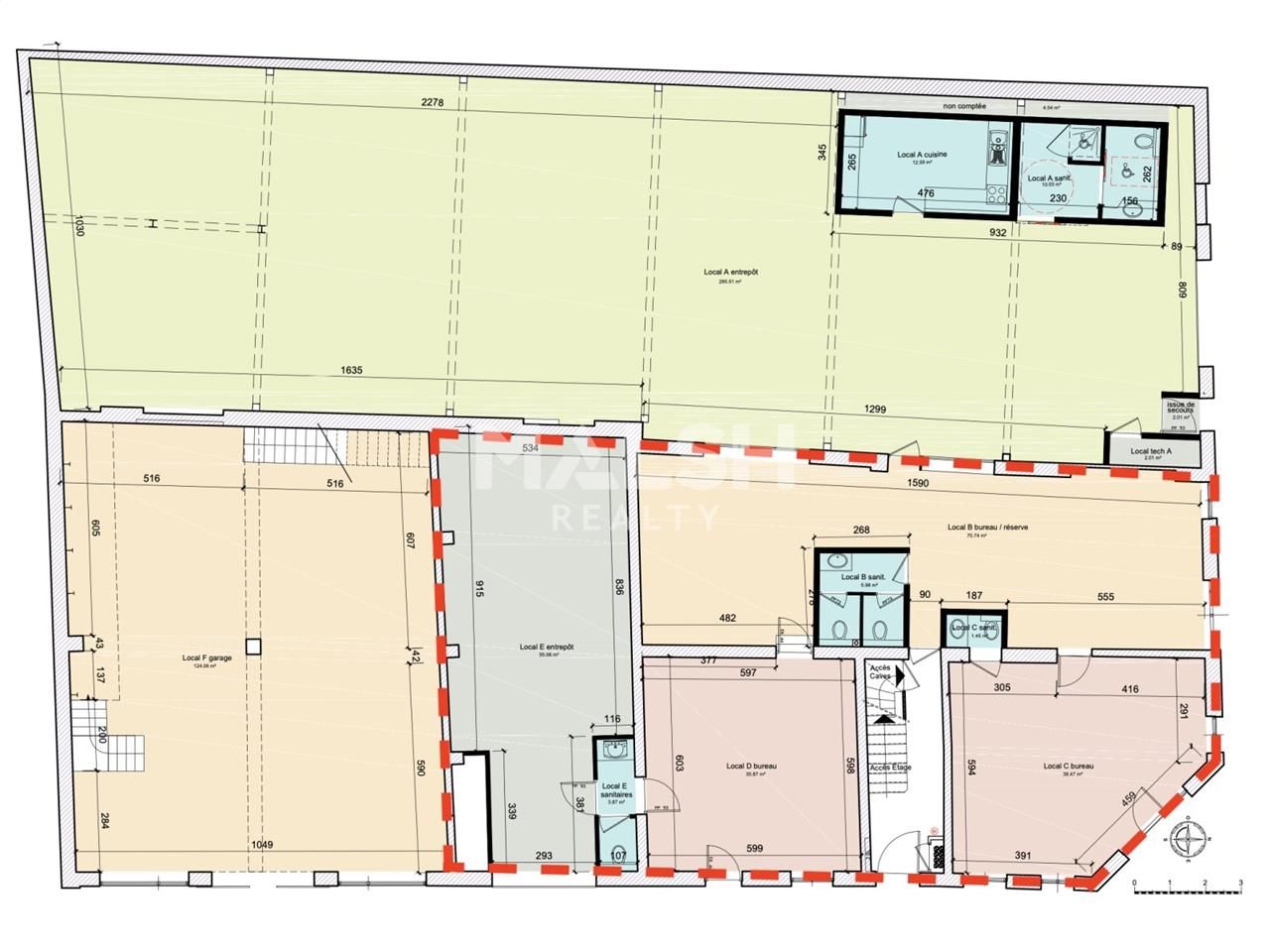
Dans le quartier de Jean-Jaurès à Lyon 7ème, nous vous proposons à la location, des locaux d'une surface totale d'environ 362 m² divisibles en 2 lots :
- Lot G : Un local d'activités d'une surface totale d'environ 144 m² dont 22 m² de mezzanine
- Lot B/C/D/E : Un local mixte d'une surface totale d'environ 218 m² comprenant 58 m² d'activités et 160 m² de bureaux.
Location Locaux d'Activités - Lyon 7 (69007) - 362 m² divisibles à partir de 144 m²
Régime Fiscal : T.V.A. (20%)
Dépôt de garantie : 3 mois de loyer HT/HC
Honoraires : 15 % HT du loyer annuel HT/HC, à la charge du Preneur, payables à la signature du bail
Information sur le Bail :
Frais d'état des lieux par huissier à prévoir Frais de rédaction de bail à la charge du Preneur
Prestations :
Accessibilité:
Route A proximité immédiate du Bd Laurent Bonnevay, de l'A6 et de l'A7
SNCF Gare de Jean-Macé à 10 min à pied
Métro Métro ligne B station " Place Jean Jaurès"
Tram Tramway T2 arrêt "Jean-Macé"
Bus Bus TCL lignes C7, C12, 35 et 64
Les informations sur les risques auxquels ce bien est exposé sont disponibles sur le site Géorisques : www.georisques.gouv.fr
Dans le quartier de Jean-Jaurès à Lyon 7ème, nous vous proposons à la location, des locaux d'une surface totale d'environ 362 m² divisibles en 2 lots :
- Lot G : Un local d'activités d'une surface totale d'environ 144 m² dont 22 m² de mezzanine
- Lot B/C/D/E : Un local mixte d'une surface totale d'environ 218 m² comprenant 58 m² d'activités et 160 m² de bureaux.
Location Locaux d'Activités - Lyon 7 (69007) - 362 m² divisibles à partir de 144 m²
| Étage | Type | Surfaces | Dispo | Loyer | Charges | Type de bailRév. annuelle |
|---|---|---|---|---|---|---|
| Bureaux | 160 | ILC Indice des Loyers Commerciaux | ||||
| Activités | 58 | ILC Indice des Loyers Commerciaux | ||||
| Total Cellule B/C/D/E | Activités | 218 | Immédiate | 159,79 HT/HC/m²/an | 3640 HT/an | commercial 3-6-9 ansILC Indice des Loyers Commerciaux |
| Mezzanine | 22 | ILC Indice des Loyers Commerciaux | ||||
| RDC | Activités | 122 | ILC Indice des Loyers Commerciaux | |||
| Total Cellule G | Activités | 144 | Immédiate | 149,36 HT/HC/m²/an | 1520 HT/an | commercial 3-6-9 ansILC Indice des Loyers Commerciaux |
Régime Fiscal : T.V.A. (20%)
Dépôt de garantie : 3 mois de loyer HT/HC
Honoraires : 15 % HT du loyer annuel HT/HC, à la charge du Preneur, payables à la signature du bail
Information sur le Bail :
Frais d'état des lieux par huissier à prévoir Frais de rédaction de bail à la charge du Preneur
Prestations :
- Stationnements
- Lot B/C/D/E :
- Double portail métallique coulissant avec rampe PMR
- Bureaux
- Sanitaires
- Sol carrelage
- Climatisation/chauffage par ventilation air froid/air chaud
- Cave de 3,68 m²
- Lot G :
- Accès poids lourd possible
- Accès par portail métallique motorisé et porte sectionnelle vitrée laissant passer la lumière naturelle
- ERP possible via accès secondaire sécurisé
- Sol en dalle béton lissé gris, murs clairs, faux-plafond avec pavés lumineux LED.
- Hauteur utile : environ 4,5 m sous poutre
- Eclairage LED généralisé
- Cimaises murales pour affichage sans perforation
- Isolation performante
- Mezzanine aménagée : garde-corps, sol parquet, éclairage par spots, câblage RJ45
- Bloc sanitaire complet comprenant :
- WC suspendu et WC PMR indépendants, lave-mains et barres d'appui inox
- Douche à l'italienne avec colonne hydromassante
- Mobilier vasque et rangements.
- Éclairage à détection de mouvement
- Cuisine équipée : plan de travail blanc, évier inox, four, micro-ondes, réfrigérateur, rangements hauts et bas
- Climatisation réversible (air chaud / froid - 4 cassettes)
- Prises électriques et RJ45, local gainé pour la fibre
- 2 extincteurs (eau + poudre)
- 3 points d'eau et 3 regards EU
Accessibilité:
Route A proximité immédiate du Bd Laurent Bonnevay, de l'A6 et de l'A7
SNCF Gare de Jean-Macé à 10 min à pied
Métro Métro ligne B station " Place Jean Jaurès"
Tram Tramway T2 arrêt "Jean-Macé"
Bus Bus TCL lignes C7, C12, 35 et 64
Les informations sur les risques auxquels ce bien est exposé sont disponibles sur le site Géorisques : www.georisques.gouv.fr
Voir plus
Afficher les consommations énergétiques
Localisation et transport aux alentours
Favoris
Exporter
Appeler
Contacter
Signaler cette annonce










