Société de conseil immobilier implantée sur Lyon et Paris, Sorovim accompagne particuliers et professionnels dans leurs projets de vente, d’acquisition, d’investissement et d’estimation de bien.Sor ...
En savoir plus

169 m²
HT HC
Location activité/entrepôt - 169 m²
Genas (69740)
Dernière mise à jour : Il y a 2 jours
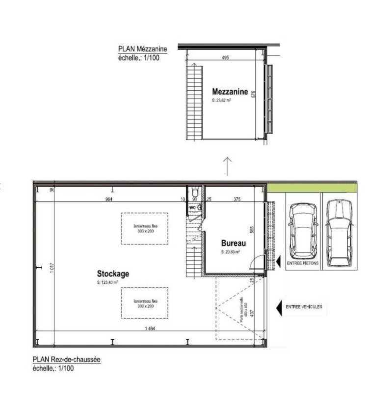
Nous vous proposons un lot d'activité de 169 m² à la location, situé dans le parc d'activités « PARK AVENIR ». Ce parc bénéficie d'une excellente situation géographique en plein coeur de la ZI Mi-Plaine.
Impôt Foncier : 1135 €//an
Régime Fiscal : T.V.A.
Dépôt de garantie : 3 mois de loyer HT HC
Honoraires : 20% HT du loyer annuel HT HC, à la charge du preneur
Information sur le Bail :
Loyer : 123 euros HT HC/m²/an
Prestations :
Accessibilité:
Autoroute Rocade EST sortie 9 à 650m et sortie 8 à 1,4 km
Autoroute Autoroute A43 (sortie 5) - 3,3 km
Aéroport Aéroport Lyon-Saint Exupéry à 13 mn - 8,6 km
Bus Bus Zi 5 en face du parc d'activités
Les informations sur les risques auxquels ce bien est exposé sont disponibles sur le site Géorisques : www.georisques.gouv.fr
| Étage | Type | Surfaces | Dispo | Loyer | Charges | Type de bailRév. annuelle |
|---|---|---|---|---|---|---|
| RDC | Activités | 123,4 | ILAT Indice des Loyers des Activités Tertiaires | |||
| RDC | Bureaux | 22,46 | ILAT Indice des Loyers des Activités Tertiaires | |||
| Mezzanine | Activités | 23,62 | ILAT Indice des Loyers des Activités Tertiaires | |||
| Parkings | ILAT Indice des Loyers des Activités Tertiaires | |||||
| Total Cellule Lot 01 | Activités | 169,48 | Après accord | 115,06 HT HC/m²/an | 960 HT/an | 3-6-9 ansILAT Indice des Loyers des Activités Tertiaires |
Impôt Foncier : 1135 €//an
Régime Fiscal : T.V.A.
Dépôt de garantie : 3 mois de loyer HT HC
Honoraires : 20% HT du loyer annuel HT HC, à la charge du preneur
Information sur le Bail :
Loyer : 123 euros HT HC/m²/an
Prestations :
- Double-vitrage
- Portes issue de secours métalliques, serrures 3 points
- Casquette brise soleil
- Faux plafonds
- Carrelage
- 2 prises courant 2x10/16 A, + 1 RJ 45 par poste de travail
- Plinthes électriques périphérie
- Chauffage & rafraichissement des bureaux par pompe réversible
- Surface RDC : 169,48 m²
- Equipements entrepôts : Charpente métallique
Hauteur libre utile de 7m
Bardage métallique double-peau
Dallage en béton armé, surcharges 2 T/m² max
Planchers des mezzanines : dalles de compression en béton, surcharge 350 kg/m²,
Escalier et garde-corps
Tarif bleu 36 Kva
Murs de séparation (entre lots) en agglo
Eclairage zénithal
1 Porte sectionnelle 4,00m X 4,5m
1 auge / cuve d'atelier en céramique
Accessibilité:
Autoroute Rocade EST sortie 9 à 650m et sortie 8 à 1,4 km
Autoroute Autoroute A43 (sortie 5) - 3,3 km
Aéroport Aéroport Lyon-Saint Exupéry à 13 mn - 8,6 km
Bus Bus Zi 5 en face du parc d'activités
Les informations sur les risques auxquels ce bien est exposé sont disponibles sur le site Géorisques : www.georisques.gouv.fr
Voir plus
Afficher les consommations énergétiques
Localisation et transport aux alentours
Favoris
Exporter
Appeler
Contacter
Signaler cette annonce










