L’agence CBRE Lyon conseille et accompagne les chefs d’entreprise dans leurs projets immobiliers quels que soient leur taille et leur secteur d’activité. Spécialistes de la transaction de bureaux, ...
En savoir plus

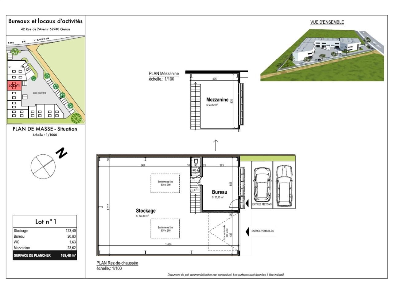
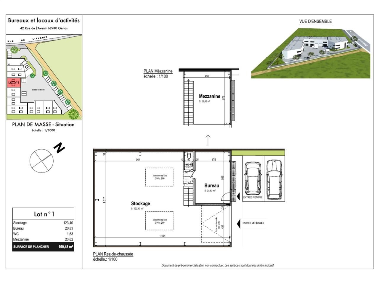
169 m²
HT HC
Location activité/entrepôt - 169 m²
Genas (69740)
Dernière mise à jour : Il y a 2 jours
Vous recherchez des locaux d'activités à louer sur la commune de Genas ? CBRE Lyon vous propose de découvrir le parc d'activités « PARK AVENIR » bénéficiant d'une excellente situation géographique en plein coeur de la ZI MI-PLAINE, bassin économique le plus dynamique de la région Rhône Alpes . Il se compose de 7 lots dont 1 lot à usage de local commercial, et dispose de 26 places de parkings.
La ville de Genas est composée de 3 zones industrielles majeures, la ZI Mi-plaine, étalée sur plus de 1 000 hectares et représentant environ 20 000 emplois. La ZAC des Grandes Terres, étalée sur 20 hectares et hébergeant une quarantaine d'entreprises et EverEst Parc, aménagé par la SERL sur 44 hectares et ayant reçu le label HQE-Aménagement.
Impôt Foncier : 1135 €/an, base 2024
Régime Fiscal : T.V.A.
Dépôt de garantie : 3 mois de loyer HT/HC
Paiement Loyer : trimestriel
Honoraires : 20% HT du loyer annuel HT/HC à la charge du preneur
Prestations :
Accessibilité:
. N346 (Rocade Est), sortie 8 ou 9.
. Transports en commun TCL : bus lignes ZI5 et 28.
Les informations sur les risques auxquels ce bien est exposé sont disponibles sur le site Géorisques : www.georisques.gouv.fr
La ville de Genas est composée de 3 zones industrielles majeures, la ZI Mi-plaine, étalée sur plus de 1 000 hectares et représentant environ 20 000 emplois. La ZAC des Grandes Terres, étalée sur 20 hectares et hébergeant une quarantaine d'entreprises et EverEst Parc, aménagé par la SERL sur 44 hectares et ayant reçu le label HQE-Aménagement.
| Étage | Type | Surfaces | Dispo | Loyer | Charges | Type de bailRév. annuelle |
|---|---|---|---|---|---|---|
| RDC | Activités | 123,4 | Immédiate | Indice ILAT | ||
| RDC | Bureaux | 22,46 | Immédiate | Indice ILAT | ||
| MEZ | Activités | 23,62 | Immédiate | Indice ILAT | ||
| Parkings | Immédiate | Indice ILAT | ||||
| Total Cellule Lot 1 | Activités | 169,48 | Immédiate | 960 HT/an | 3-6-9 ansIndice ILAT |
Impôt Foncier : 1135 €/an, base 2024
Régime Fiscal : T.V.A.
Dépôt de garantie : 3 mois de loyer HT/HC
Paiement Loyer : trimestriel
Honoraires : 20% HT du loyer annuel HT/HC à la charge du preneur
Prestations :
- ACTIVITES
- Charpente métallique avec une hauteur libre utile de 7m
- Bardage métallique vertical double-peau, isolation 110 mm
- Dallage sur terre-plein en béton armé, surcharges 2 T/m² maximum, surfaçage avec durcisseur quartz teinte naturelle
- Planchers des mezzanines : dalles de compression en béton, surcharges d'exploitation 350 kg/m², finition lissée sur le dessus.
- Escalier et garde-corps
- Electricité : branchement EDF tarif bleu 36 Kva, comprenant 2 prises courant 380 V, + 2 prises courant 220 V sous le TGBT
- Murs de séparation (entre lots) en agglomérés
- Eclairage zénithal 5 % par voûte translucide
- 1 Porte sectionnelle 4,00m X 4,5m par lot
- 1 auge / cuve d'atelier en céramique
- BUREAUX
- Menuiseries extérieures en aluminium laqué, ouvrants à la française, double-vitrage clair planitherm
- Portes issue de secours métalliques, serrures 3 points, dimensions selon plan de vente
- Casquette brise soleil
- Faux plafonds en plaque de plâtre décorative, acoustique type «GYPTONE» posé en dalle de 660x600 mm
- Carrelage grès émaillé format 40x40 cm
- 2 prises courant 2x10/16 A, + 1 RJ 45 par poste de travail posées dans plinthes électriques PVC 130x50 placées en périphérie
- Chauffage & rafraichissement des bureaux par pompe réversible à réglage individuel, équipé d'un SPLIT mural
- Surface RDC : 0 m²
- Surface terrain : 0
Accessibilité:
. N346 (Rocade Est), sortie 8 ou 9.
. Transports en commun TCL : bus lignes ZI5 et 28.
Les informations sur les risques auxquels ce bien est exposé sont disponibles sur le site Géorisques : www.georisques.gouv.fr
Voir plus
Afficher les consommations énergétiques
Favoris
Exporter
Appeler
Contacter
Signaler cette annonce










