Besoin d'un conseil en immobilier ? Nous sommes une équipe dédiée à 100% à nos clients utilisateurs avec des services variés (stratégie immobilière, recherche immobilière, renégociation de bail, dé ...
En savoir plus

230 m²
HT HC
Location activité/entrepôt - 230 m²
Genas (69740)
Dernière mise à jour : Il y a 3 jours
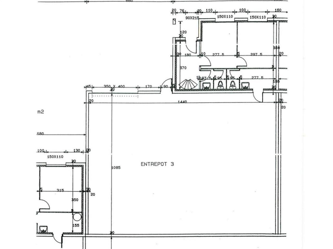
Locaux d'activité à louer - 69740 GENAS
SAVILLS vous propose à la location une cellule d'activité de 230m² dont 90m² de bureaux situé sur la commune de Genas. Plusieurs places de parking sont incluses avec le local. Ce bien est idéalement situé dans un parc privé,
disposant d'un accès immédiat à la rocade Est permettant de rejoindre rapidement les autoroutes A43, A42 et A432.
Régime Fiscal : T.V.A.
Dépôt de garantie : 3 mois de loyer HT HC
Honoraires : A la charge du preneur
Prestations :
Accessibilité:
Autoroute Rocade Est à 350 m permettant de rejoindre A43, A42 et A432
Bus Z.I. Rocade Est (BUS-ZI5)
Aéroport Lyon Saint Exupéry à 12 min
Train Gare de Saint Priest à 10 min
Train Gare Lyon Saint Exupéry à 14 min
Les informations sur les risques auxquels ce bien est exposé sont disponibles sur le site Géorisques : www.georisques.gouv.fr
SAVILLS vous propose à la location une cellule d'activité de 230m² dont 90m² de bureaux situé sur la commune de Genas. Plusieurs places de parking sont incluses avec le local. Ce bien est idéalement situé dans un parc privé,
disposant d'un accès immédiat à la rocade Est permettant de rejoindre rapidement les autoroutes A43, A42 et A432.
| Étage | Type | Surfaces | Dispo | Loyer | Charges | Type de bailRév. annuelle |
|---|---|---|---|---|---|---|
| 1 | Bureaux | 45 | Immédiate | ILAT Indice des Loyers des Activités Tertiaires | ||
| RDC | Activités | 140 | Immédiate | ILAT Indice des Loyers des Activités Tertiaires | ||
| RDC | Bureaux | 45 | Immédiate | ILAT Indice des Loyers des Activités Tertiaires | ||
| Total Cellule 1 | Activités | 230 | 96,52 m²/an/HT-HC | 3-6-9 ansILAT Indice des Loyers des Activités Tertiaires |
Régime Fiscal : T.V.A.
Dépôt de garantie : 3 mois de loyer HT HC
Honoraires : A la charge du preneur
Prestations :
- ACTIVITE
- Accès de plain-pied : 1
- Porte sectionnelle
- BUREAUX:
- Câblage informatique
- Moquette
- Faux plafond
- Places de parking
- Surface RDC : 185 m²
- Haut. libre max. ss poutre : 5,5 m
Accessibilité:
Autoroute Rocade Est à 350 m permettant de rejoindre A43, A42 et A432
Bus Z.I. Rocade Est (BUS-ZI5)
Aéroport Lyon Saint Exupéry à 12 min
Train Gare de Saint Priest à 10 min
Train Gare Lyon Saint Exupéry à 14 min
Les informations sur les risques auxquels ce bien est exposé sont disponibles sur le site Géorisques : www.georisques.gouv.fr
Voir plus
Afficher les consommations énergétiques
Localisation et transport aux alentours
Favoris
Exporter
Appeler
Contacter
Signaler cette annonce










