Arthur Loyd Nord-Pas-de-Calais est un cabinet de conseil en immobilier d'entreprise sur les Hauts-de-France et plus particulièrement sur les secteurs du bassin de Valenciennes, de Cambrai ou encore ...
En savoir plus

1 372 m² divisible dès 316 m²
HT HC
Location local commercial - 1372 m²
Boulogne-sur-Mer (62200)
Dernière mise à jour : Il y a 23 jours
IMMEUBLE INDÉPENDANT HAUT DE GAMME DIVISÉ EN BUREAUX ET SHOWROOM, EN CENTRE-VILLE DE BOULOGNE SUR MER ET BÉNÉFICIANT DE PARKINGS PRIVATIFS
À LOUER / À VENDRE - BÂTIMENT DE PRESTIGE - CENTRE-VILLE DE BOULOGNE-SUR-MER
Façade remarquable - Entièrement rénové - Opportunité rare
En plein coeur de Boulogne-sur-Mer, ce bâtiment de caractère, récemment rénové avec soin, offre un potentiel exceptionnel pour une activité atypique, un showroom haut de gamme, un siège d'entreprise ou un projet d'investissement patrimonial.
Un bien qui allie charme, modernité et visibilité :
- Emplacement premium, en centre-ville, à proximité immédiate des commerces et services
- Façade élégante et grande visibilité sur axe fréquenté
- Rez-de-chaussée idéal pour un showroom ou espace d'accueil
- Étage aménagé en bureaux prêts à l'emploi
- Prestations haut de gamme : moulures d'époque, anciennes cheminées, grand vide sur hall avec plafond lumineux
- 6 places de parking privatives - rare en centre-ville
- Parfait pour activité créative, espace événementiel, profession libérale ou investisseur recherchant un bien de qualité
Boulogne-sur-Mer - Centre historique et dynamique
Un bien unique, à la croisée du patrimoine architectural et du fonctionnel contemporain.
À découvrir sans tarder - contactez-nous pour plus d'informations ou planifier une visite.
Impôt Foncier : 23000 €/Bâtiment intégral
Dépôt de garantie : 3 mois de loyer HT/HC
Honoraires : 15% HT du loyer annuel de base HT
Prestations :
Accessibilité:
SNCF Boulogne-Tintelleries (France)
Bus Arrêt de Bus en face de l'immeuble
Les informations sur les risques auxquels ce bien est exposé sont disponibles sur le site Géorisques : www.georisques.gouv.fr
À LOUER / À VENDRE - BÂTIMENT DE PRESTIGE - CENTRE-VILLE DE BOULOGNE-SUR-MER
Façade remarquable - Entièrement rénové - Opportunité rare
En plein coeur de Boulogne-sur-Mer, ce bâtiment de caractère, récemment rénové avec soin, offre un potentiel exceptionnel pour une activité atypique, un showroom haut de gamme, un siège d'entreprise ou un projet d'investissement patrimonial.
Un bien qui allie charme, modernité et visibilité :
- Emplacement premium, en centre-ville, à proximité immédiate des commerces et services
- Façade élégante et grande visibilité sur axe fréquenté
- Rez-de-chaussée idéal pour un showroom ou espace d'accueil
- Étage aménagé en bureaux prêts à l'emploi
- Prestations haut de gamme : moulures d'époque, anciennes cheminées, grand vide sur hall avec plafond lumineux
- 6 places de parking privatives - rare en centre-ville
- Parfait pour activité créative, espace événementiel, profession libérale ou investisseur recherchant un bien de qualité
Boulogne-sur-Mer - Centre historique et dynamique
Un bien unique, à la croisée du patrimoine architectural et du fonctionnel contemporain.
À découvrir sans tarder - contactez-nous pour plus d'informations ou planifier une visite.
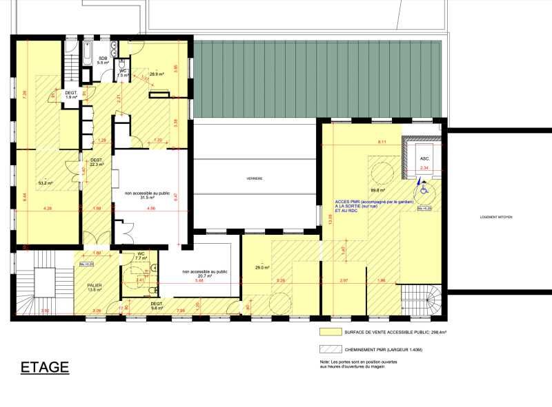
| Étage | Type | Surfaces | Dispo | Loyer | Charges | Type de bailRév. annuelle |
|---|---|---|---|---|---|---|
| 1 | Bureaux | 316 | Immédiate | 189,87 m²/an HT HC | 6-9 ans | |
| RDC | Bureaux | 522 | Immédiate | 160,92 m²/an HT HC | 6-9 ans | |
| SS | Bureaux | 534 | Immédiate | 6-9 ans |
Impôt Foncier : 23000 €/Bâtiment intégral
Dépôt de garantie : 3 mois de loyer HT/HC
Honoraires : 15% HT du loyer annuel de base HT
Prestations :
- Bureaux cloisonnés et open/space
- Revêtement moquette
- Revêtement parquet
- Suspensions lumineuses
- Moulures
- Chauffage chaudière au gaz
- Sanitaires privatifs
- Kitchenette
- Terrasse
- 5 places de parkings privatives
- Surface RDC : 522 m²
Accessibilité:
SNCF Boulogne-Tintelleries (France)
Bus Arrêt de Bus en face de l'immeuble
Les informations sur les risques auxquels ce bien est exposé sont disponibles sur le site Géorisques : www.georisques.gouv.fr
Voir plus
Afficher les consommations énergétiques
Favoris
Exporter
Appeler
Contacter
Signaler cette annonce
