Arthur Loyd Bordeaux fait partie du 1er réseau national de conseil en immobilier d'entreprise (plus de 75 implantations et 440 collaborateurs sur toute la France et DOM TOM).En tant que spécialiste ...
En savoir plus

6 948 m² divisible dès 209 m²
HT HC
Location activité/entrepôt - 6948 m²
Ambarès-et-Lagrave (33440)
Dernière mise à jour : Il y a 5 mois
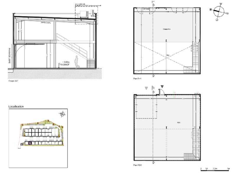
Cellules d'activités à Ambarès et Lagrave
Au coeur de la zone industrielle d'Ambarès-et-Lagrave et à proximité immédiate de l'A10, Arthur Loyd vous propose à la location, au sein d'un parc d'activités neuf, plusieurs cellules modulables.
A louer, cellules d'activités avec une excellente visibilité depuis l'autoroute A10. Chaque cellule dispose d'une partie bureaux en mezzanine. Disponibilité immédiate
Impôt Foncier : 7,5 €// m2 / an
Régime Fiscal : T.V.A.
Dépôt de garantie : 3 mois de loyer HT/HC
Honoraires : 15% HT du loyer annuel de base HT à charge du preneur
Information sur le Bail :
La Surface Utile Brute est définie telle que la surface horizontale située à l'intérieur des locaux et calculée à l'arase du sol, de laquelle sont déduits les éléments structuraux (poteaux, murs extérieurs, refends, gaines techniques), les locaux techniques hors combles et sous-sols (chauffage, ventilation, poste EDF, commutateur téléphonique) à l'exclusion de ceux exclusivement réservés à l'usage d'un lot.
Prestations :
Accessibilité:
Bus Maréchal Foch (BUS-92, BUS-93)
SNCF La Grave-d'Ambarès-Gare-Inférieure
Afficher notre barème d'honoraires.
Les informations sur les risques auxquels ce bien est exposé sont disponibles sur le site Géorisques : www.georisques.gouv.fr
Au coeur de la zone industrielle d'Ambarès-et-Lagrave et à proximité immédiate de l'A10, Arthur Loyd vous propose à la location, au sein d'un parc d'activités neuf, plusieurs cellules modulables.
A louer, cellules d'activités avec une excellente visibilité depuis l'autoroute A10. Chaque cellule dispose d'une partie bureaux en mezzanine. Disponibilité immédiate
| Étage | Type | Surfaces | Dispo | Loyer | Charges | Type de bailRév. annuelle |
|---|---|---|---|---|---|---|
| RDC | Activités | 496 | Immédiate | 105 HT/HC/m²/an | 9 m²/an HT | 3-6-9 ansILAT Indice des Loyers des Activités Tertiaires |
| RDC | Activités | 490 | Immédiate | 105 HT/HC/m²/an | 9 m²/an HT | 3-6-9 ansILAT Indice des Loyers des Activités Tertiaires |
| RDC | Activités | 282 | Immédiate | 105 HT/HC/m²/an | 9 m²/an HT | 3-6-9 ansILAT Indice des Loyers des Activités Tertiaires |
| RDC | Activités | 255 | Immédiate | 105 HT/HC/m²/an | 9 m²/an HT | 3-6-9 ansILAT Indice des Loyers des Activités Tertiaires |
| RDC | Activités | 255 | Immédiate | 105 HT/HC/m²/an | 9 m²/an HT | 3-6-9 ansILAT Indice des Loyers des Activités Tertiaires |
| RDC | Activités | 250 | Immédiate | 105 HT/HC/m²/an | 9 m²/an HT | 3-6-9 ansILAT Indice des Loyers des Activités Tertiaires |
| RDC | Activités | 250 | Immédiate | 105 HT/HC/m²/an | 9 m²/an HT | 3-6-9 ansILAT Indice des Loyers des Activités Tertiaires |
| RDC | Activités | 250 | Immédiate | 105 HT/HC/m²/an | 9 m²/an HT | 3-6-9 ansILAT Indice des Loyers des Activités Tertiaires |
| RDC | Activités | 250 | Immédiate | 105 HT/HC/m²/an | 9 m²/an HT | 3-6-9 ansILAT Indice des Loyers des Activités Tertiaires |
| RDC | Activités | 250 | Immédiate | 105 HT/HC/m²/an | 9 m²/an HT | 3-6-9 ansILAT Indice des Loyers des Activités Tertiaires |
| RDC | Activités | 250 | Immédiate | 105 HT/HC/m²/an | 9 m²/an HT | 3-6-9 ansILAT Indice des Loyers des Activités Tertiaires |
| RDC | Activités | 250 | Immédiate | 105 HT/HC/m²/an | 9 m²/an HT | 3-6-9 ansILAT Indice des Loyers des Activités Tertiaires |
| RDC | Activités | 250 | Nous consulter | 105 HT/HC/m²/an | 9 m²/an HT | 3-6-9 ansILAT Indice des Loyers des Activités Tertiaires |
| RDC | Activités | 246 | Immédiate | 105 HT/HC/m²/an | 9 m²/an HT | 3-6-9 ansILAT Indice des Loyers des Activités Tertiaires |
| RDC | Activités | 246 | Immédiate | 105 HT/HC/m²/an | 9 m²/an HT | 3-6-9 ansILAT Indice des Loyers des Activités Tertiaires |
| RDC | Activités | 246 | Immédiate | 105 HT/HC/m²/an | 9 m²/an HT | 3-6-9 ansILAT Indice des Loyers des Activités Tertiaires |
| RDC | Activités | 246 | Immédiate | 105 HT/HC/m²/an | 9 m²/an HT | 3-6-9 ansILAT Indice des Loyers des Activités Tertiaires |
| RDC | Activités | 246 | Immédiate | 105 HT/HC/m²/an | 9 m²/an HT | 3-6-9 ansILAT Indice des Loyers des Activités Tertiaires |
| RDC | Activités | 246 | Immédiate | 105 HT/HC/m²/an | 9 m²/an HT | 3-6-9 ansILAT Indice des Loyers des Activités Tertiaires |
| RDC | Activités | 217 | Immédiate | 105 HT/HC/m²/an | 9 m²/an HT | 3-6-9 ansILAT Indice des Loyers des Activités Tertiaires |
| RDC | Activités | 213 | Nous consulter | 105 HT/HC/m²/an | 9 m²/an HT | 3-6-9 ansILAT Indice des Loyers des Activités Tertiaires |
| RDC | Activités | 213 | Immédiate | 105 HT/HC/m²/an | 9 m²/an HT | 3-6-9 ansILAT Indice des Loyers des Activités Tertiaires |
| RDC | Activités | 212 | Immédiate | 105 HT/HC/m²/an | 9 m²/an HT | 3-6-9 ansILAT Indice des Loyers des Activités Tertiaires |
| RDC | Activités | 210 | Immédiate | 105 HT/HC/m²/an | 9 m²/an HT | 3-6-9 ansILAT Indice des Loyers des Activités Tertiaires |
| RDC | Activités | 210 | Immédiate | 105 HT/HC/m²/an | 9 m²/an HT | 3-6-9 ansILAT Indice des Loyers des Activités Tertiaires |
| RDC | Activités | 210 | Immédiate | 105 HT/HC/m²/an | 9 m²/an HT | 3-6-9 ansILAT Indice des Loyers des Activités Tertiaires |
| RDC | Activités | 209 | Immédiate | 105 HT/HC/m²/an | 9 m²/an HT | 3-6-9 ansILAT Indice des Loyers des Activités Tertiaires |
| RDC | Parkings | Immédiate | 3-6-9 ansILAT Indice des Loyers des Activités Tertiaires |
Impôt Foncier : 7,5 €// m2 / an
Régime Fiscal : T.V.A.
Dépôt de garantie : 3 mois de loyer HT/HC
Honoraires : 15% HT du loyer annuel de base HT à charge du preneur
Information sur le Bail :
La Surface Utile Brute est définie telle que la surface horizontale située à l'intérieur des locaux et calculée à l'arase du sol, de laquelle sont déduits les éléments structuraux (poteaux, murs extérieurs, refends, gaines techniques), les locaux techniques hors combles et sous-sols (chauffage, ventilation, poste EDF, commutateur téléphonique) à l'exclusion de ceux exclusivement réservés à l'usage d'un lot.
Prestations :
- Parc d'activités neuf
- Emplacement stratégique, au coeur de la zone industrielle d'Ambarès-et-Lagrave
- Environnement verdoyant
- Site clos et sécurisé
- Charge au sol : 1,5 T / m2
- Hauteur libre : 7 m
- Portes sectionnelles
- Climatisation réversible sur les bureaux
- Surface RDC : 4578 m²
- Surface terrain : 12780
- Accès bâtiment : Moyens Porteurs
Aire de Manoeuvre
Accessibilité:
Bus Maréchal Foch (BUS-92, BUS-93)
SNCF La Grave-d'Ambarès-Gare-Inférieure
Afficher notre barème d'honoraires.
Les informations sur les risques auxquels ce bien est exposé sont disponibles sur le site Géorisques : www.georisques.gouv.fr
Voir plus
Afficher les consommations énergétiques
Favoris
Exporter
Appeler
Contacter
Signaler cette annonce
