Depuis 2003, KEOPS Toulouse accompagne les entreprises dans leurs projets immobiliers sur toute l’aire urbaine toulousaine.Notre équipe de professionnels passionnés met à votre service sa connaissa ...
En savoir plus

491 m²
HT HC
Location bureau - 491 m²
Toulouse (31000)
Dernière mise à jour : Hier
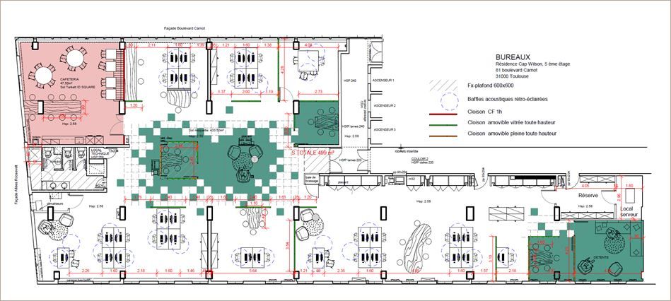
- A LOUER - OPPORTUNITE RARE !!
Nous vous proposons une surface de bureaux entièrement rénovée à la location dans un immeuble idéalement situé au centre ville de Toulouse
Centre ville de Toulouse Métro : Ligne A et B station "Jean-Jaurès" Bus : lignes n° L1, L9, 29 Gare Matabiau : 5 min
Dans immeuble idéalement situé en hyper centre de ToulousePlateaux de bureaux situés au 5ème étageSurface entièrement rénovée et aménagée : Salle de réunion, bureaux individuel ou double, open space, sanitaires privatifs, grande cuisine équipée et salle de doucheSystème de climatisation réversible neufCâblage informatique (fibre optique)Possibilité de louer des places de parking en sous-sol
(1) loyer en Euros HT HC / m² / an (5) charges en Euros HT / m² / an
Centre ville de Toulouse Métro : Ligne A et B station "Jean-Jaurès" Bus : lignes n° L1, L9, 29 Gare Matabiau : 5 min
Dans immeuble idéalement situé en hyper centre de ToulousePlateaux de bureaux situés au 5ème étageSurface entièrement rénovée et aménagée : Salle de réunion, bureaux individuel ou double, open space, sanitaires privatifs, grande cuisine équipée et salle de doucheSystème de climatisation réversible neufCâblage informatique (fibre optique)Possibilité de louer des places de parking en sous-sol
| Bâtiment | Etage | Surface | Type de locaux | Loyer(1) | Charges(5) | Disponibilité |
|---|---|---|---|---|---|---|
| CAP WILSON | 5ème | 491,00 m² | Bureaux | 240,00 | 38,00 | 1er trimestre 2026 |
Voir plus
Afficher les consommations énergétiques
Localisation et transport aux alentours
- St Cyprien - République172m (3min à pied)A
Favoris
Exporter
Appeler
Contacter
Signaler cette annonce
