L’agence CBRE Marseille conseille et accompagne les chefs d’entreprise dans leurs projets immobiliers quels que soient leur taille et leur secteur d’activité. Spécialistes de la transaction de bure ...
En savoir plus



5 436 m² divisible dès 374 m²
HT HC
Location bureau - 5436 m²
Marseille 16 (13016)
Dernière mise à jour : Il y a 8 mois
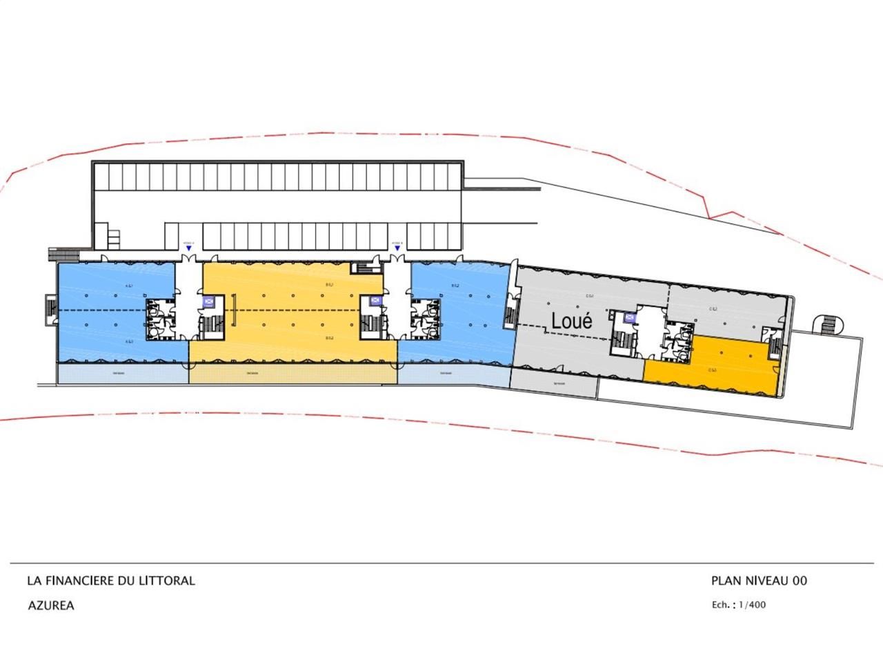
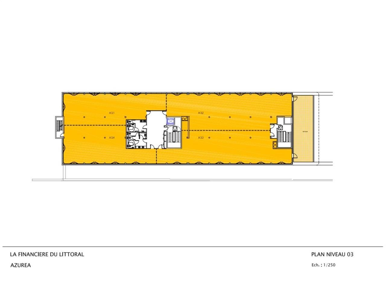
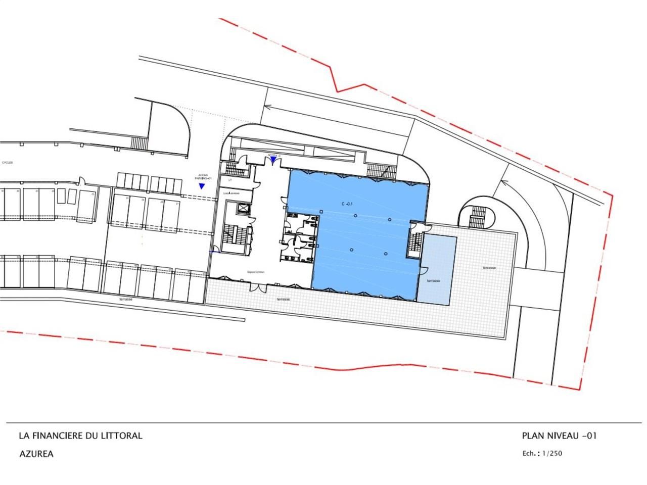
BUREAUX A LA LOCATION OU A LA VENTE - 13016 MARSEILLE - L'ESTAQUE - AZUREA : CBRE vous propose d'installer vos bureaux dans un immeuble neuf, bénéficiant de très belles prestations et de vues mer exceptionnelles. Division possible des plateaux ou privatisation d'un hall. Une conception orientée 100 % Bio Climatique.
A proximité des grands axes routiers, CBRE vous propose à la location un immeuble neuf, en R+3, de 8060 m² environ au total divisible nombreuses places de parking.
N'hésitez pas à nous contacter pour découvrir ces bureaux.
CBRE leader mondial en Immobilier d'entreprise est à votre disposition pour vous accompagner dans tous vos projets immobiliers grâce à sa palette de métiers permettant de répondre à toutes problématiques immobilières de la valorisation, en passant par la gestion et la commercialisation à la rénovation.
Régime Fiscal : T.V.A.
Dépôt de garantie : 3 mois de loyer HT/HC
Paiement Loyer : trimestriel
Honoraires : A la charge du preneur : 15 % + TVA du loyer annuel HT et HC
Taxe Bureau : 1,01 €/m²/an
Prestations :
Accessibilité:
Bus 35 - 35s - 36 - 36B 535
Autoroute A55 à 3 minutes, A7 à 8 minutes et A50 à 12 minutes
SNCF Gare TGV St Charles
SNCF Gare TGV Aix en Provence à 15 minutes en voiture
Aeroport Aéroport Marseille Provence à 14 minutes en voiture
Les informations sur les risques auxquels ce bien est exposé sont disponibles sur le site Géorisques : www.georisques.gouv.fr
A proximité des grands axes routiers, CBRE vous propose à la location un immeuble neuf, en R+3, de 8060 m² environ au total divisible nombreuses places de parking.
N'hésitez pas à nous contacter pour découvrir ces bureaux.
CBRE leader mondial en Immobilier d'entreprise est à votre disposition pour vous accompagner dans tous vos projets immobiliers grâce à sa palette de métiers permettant de répondre à toutes problématiques immobilières de la valorisation, en passant par la gestion et la commercialisation à la rénovation.
| Étage | Type | Surfaces | Dispo | Loyer | Charges | Type de bailRév. annuelle |
|---|---|---|---|---|---|---|
| 2 | Bureaux | 1579,35 | Immédiate | 195 m²/an HT HC | 24,67 HT/m²/an | 6-9 ansIndice ILAT |
| 1 | Bureaux | 716,35 | Immédiate | 195 m²/an HT HC | 24,67 HT/m²/an | 6-9 ansIndice ILAT |
| 1 | Bureaux | 464,82 | Immédiate | 195 m²/an HT HC | 24,67 HT/m²/an | 6-9 ansIndice ILAT |
| RDC | Bureaux | 447,69 | Immédiate | 195 m²/an HT HC | 24,67 HT/m²/an | 6-9 ansIndice ILAT |
| 1 | Bureaux | 777,65 | Immédiate | 195 m²/an HT HC | 24,67 HT/m²/an | 6-9 ansIndice ILAT |
| RDC | Bureaux | 678,72 | Immédiate | 195 m²/an HT HC | 24,67 HT/m²/an | 6-9 ansIndice ILAT |
| RDC | Bureaux | 373,92 | Immédiate | 195 m²/an HT HC | 24,67 HT/m²/an | 6-9 ansIndice ILAT |
| 1SS | Bureaux | 397,48 | Immédiate | 195 m²/an HT HC | 24,67 HT/m²/an | 6-9 ansIndice ILAT |
| Parkings | Immédiate | 250 U/an HT HC | 24,67 HT/U/an | 6-9 ansIndice ILAT | ||
| SS | Parkings | Immédiate | 1200 U/an HT HC | 24,67 HT/U/an | 6-9 ansIndice ILAT |
Régime Fiscal : T.V.A.
Dépôt de garantie : 3 mois de loyer HT/HC
Paiement Loyer : trimestriel
Honoraires : A la charge du preneur : 15 % + TVA du loyer annuel HT et HC
Taxe Bureau : 1,01 €/m²/an
Prestations :
- L'opération propose différents équipements performants tels que :
- Vitrage haute performance avec isolation thermique et phonique renforcées
- CTA double flux avec récupération d'énergie et filtration pour une meilleure qualité d'air intérieure
- Climatisation par système thermo dynamique
- DRV 3 tubes dernière génération
- Eclairage full Led avec détecteur de présence dans les parties communes
- Moquette au sol et peinture (utilisation de produits à faible dégagement de COV).
- Division possible des plateaux ou privatisation d'un hall.
- Ratio de 1 poste pour 13,45 m² SDP
- Surface RDC : 1500,33 m²
Accessibilité:
Bus 35 - 35s - 36 - 36B 535
Autoroute A55 à 3 minutes, A7 à 8 minutes et A50 à 12 minutes
SNCF Gare TGV St Charles
SNCF Gare TGV Aix en Provence à 15 minutes en voiture
Aeroport Aéroport Marseille Provence à 14 minutes en voiture
Les informations sur les risques auxquels ce bien est exposé sont disponibles sur le site Géorisques : www.georisques.gouv.fr
Voir plus
Afficher les consommations énergétiques
Favoris
Exporter
Appeler
Contacter
Signaler cette annonce










