Conseil en immobilier d'entreprise, Cushman & Wakefield est un acteur incontournable au rayonnement international. Cushman & Wakefield offre des solutions dans toutes les étapes que comporte un p ...
En savoir plus



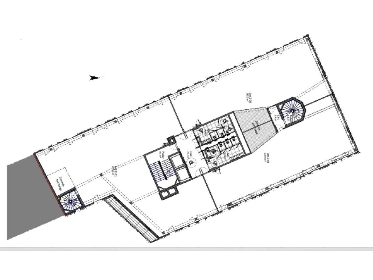
977 m² divisible dès 213 m²
HT HC
S-one - Location bureau - 977 m²
Lyon 9 (69009)
Dernière mise à jour : Il y a 8 jours
Bureaux à louer Lyon 9ème métro Valmy!
Immeuble S-one
Cushman & Wakefield vous propose plusieurs surfaces de bureaux à la location au sein d'un immeuble neuf de standing, bénéficiant d'une architecture contemporaine et valorisante. Situé à l'angle de la rue Marietton et de l'avenue Sidoine Apollinaire, dans le 9? arrondissement de Lyon, l'immeuble offre une excellente visibilité ainsi qu'un environnement de travail moderne et qualitatif.
Quatre lots sont actuellement disponibles, d'une surface respective de 319 m², 227 m², 217 m² et 212 m². Ces plateaux nus à aménager permettent une grande flexibilité d'organisation afin de répondre aux besoins spécifiques de chaque entreprise. Les espaces, largement vitrés sur toute la hauteur, bénéficient d'une luminosité naturelle exceptionnelle, favorisant le confort et la productivité des équipes.
L'immeuble propose également des prestations de qualité avec une grande terrasse aménagée et partagée en rez-de-chaussée ainsi qu'un jardin, idéal pour les moments de détente ou les échanges informels. Des douches sont mises à disposition, ainsi que des stationnements vélos sécurisés et des parkings en sous-sol pour plus de confort au quotidien.
Facilement accessible et conçu pour offrir un cadre de travail attractif, cet immeuble constitue une opportunité rare sur le secteur. Venez découvrir cette offre !
Impôt Foncier : 18,4 €//m²/an
Régime Fiscal : T.V.A.
Dépôt de garantie : 3 mois de loyer HT/HC
Paiement Loyer : Trimestriel
Honoraires : 15 % HT du loyer annuel HT/HC à la charge du preneur.
Information sur le Bail :
Honoraires de gestion administrative, comptable et financière : Bureau : 9,50 euros H.T./m²/an Parking : 90,00 H.T/place/an Frais d'EDL par huissier : Prise en charge à 50/50
Prestations :
Accessibilité:
Métro Valmy (ligne D) à 900 m environ
Bus Llignes 3-5-19 au pied d'immeuble
SNCF Gorge de Loup
SNCF Perrache à 15 mn environ
vélo'v VéloV à proximité
Les informations sur les risques auxquels ce bien est exposé sont disponibles sur le site Géorisques : www.georisques.gouv.fr
Immeuble S-one
Cushman & Wakefield vous propose plusieurs surfaces de bureaux à la location au sein d'un immeuble neuf de standing, bénéficiant d'une architecture contemporaine et valorisante. Situé à l'angle de la rue Marietton et de l'avenue Sidoine Apollinaire, dans le 9? arrondissement de Lyon, l'immeuble offre une excellente visibilité ainsi qu'un environnement de travail moderne et qualitatif.
Quatre lots sont actuellement disponibles, d'une surface respective de 319 m², 227 m², 217 m² et 212 m². Ces plateaux nus à aménager permettent une grande flexibilité d'organisation afin de répondre aux besoins spécifiques de chaque entreprise. Les espaces, largement vitrés sur toute la hauteur, bénéficient d'une luminosité naturelle exceptionnelle, favorisant le confort et la productivité des équipes.
L'immeuble propose également des prestations de qualité avec une grande terrasse aménagée et partagée en rez-de-chaussée ainsi qu'un jardin, idéal pour les moments de détente ou les échanges informels. Des douches sont mises à disposition, ainsi que des stationnements vélos sécurisés et des parkings en sous-sol pour plus de confort au quotidien.
Facilement accessible et conçu pour offrir un cadre de travail attractif, cet immeuble constitue une opportunité rare sur le secteur. Venez découvrir cette offre !
| Étage | Type | Surfaces | Dispo | Loyer | Charges | Type de bailRév. annuelle |
|---|---|---|---|---|---|---|
| 2 | Bureaux | 212,61 | 190 HT/HC/m²/an | 41,3 HT/m²/an | 3-6-9 ansSur l'indice ILAT | |
| 3 | Bureaux | 319,38 | 190 HT/HC/m²/an | 41,3 HT/m²/an | 3-6-9 ansSur l'indice ILAT | |
| 3 | Bureaux | 227,2 | 190 HT/HC/m²/an | 41,3 HT/m²/an | 3-6-9 ansSur l'indice ILAT | |
| 3 | Bureaux | 217,57 | 190 HT/HC/m²/an | 41,3 HT/m²/an | 3-6-9 ansSur l'indice ILAT | |
| SS | Parkings | 1800 HT/HC/U/an | 3-6-9 ansSur l'indice ILAT |
Impôt Foncier : 18,4 €//m²/an
Régime Fiscal : T.V.A.
Dépôt de garantie : 3 mois de loyer HT/HC
Paiement Loyer : Trimestriel
Honoraires : 15 % HT du loyer annuel HT/HC à la charge du preneur.
Information sur le Bail :
Honoraires de gestion administrative, comptable et financière : Bureau : 9,50 euros H.T./m²/an Parking : 90,00 H.T/place/an Frais d'EDL par huissier : Prise en charge à 50/50
Prestations :
- Immeuble indépendant entièrement vitré, de standing
- Architecture typée industrielle
- Effectif maximum : 299 personnes
- Ratio 1 personne/12 m²
- Hall d'entrée traversant traité en lobby
- 2 ascenseurs
- Contrôle d'accès extérieur
- Terrasse commune en rdc, avec des espaces verts
- Parkings vélos
- Douches communes au RDC
- Climatisation réversible / VMC double flux
- Châssis vitrés des espaces de travail, fixes ou ouvrants à la française avec limiteur d'ouverture
- Stores
- Plateau nu à cloisonner
- Sol moquette
- Faux plancher technique
- Luminaires suspendus
- Hauteur sous plafond : 2,70m
- Sanitaires dans les parties communes
Accessibilité:
Métro Valmy (ligne D) à 900 m environ
Bus Llignes 3-5-19 au pied d'immeuble
SNCF Gorge de Loup
SNCF Perrache à 15 mn environ
vélo'v VéloV à proximité
Les informations sur les risques auxquels ce bien est exposé sont disponibles sur le site Géorisques : www.georisques.gouv.fr
44 Parking(s) en sous-sol
Voir plus
Afficher les consommations énergétiques
Localisation et transport aux alentours
Favoris
Exporter
Appeler
Contacter
Signaler cette annonce










