Conseil en immobilier d'entreprise, Cushman & Wakefield est un acteur incontournable au rayonnement international. Cushman & Wakefield offre des solutions dans toutes les étapes que comporte un p ...
En savoir plus



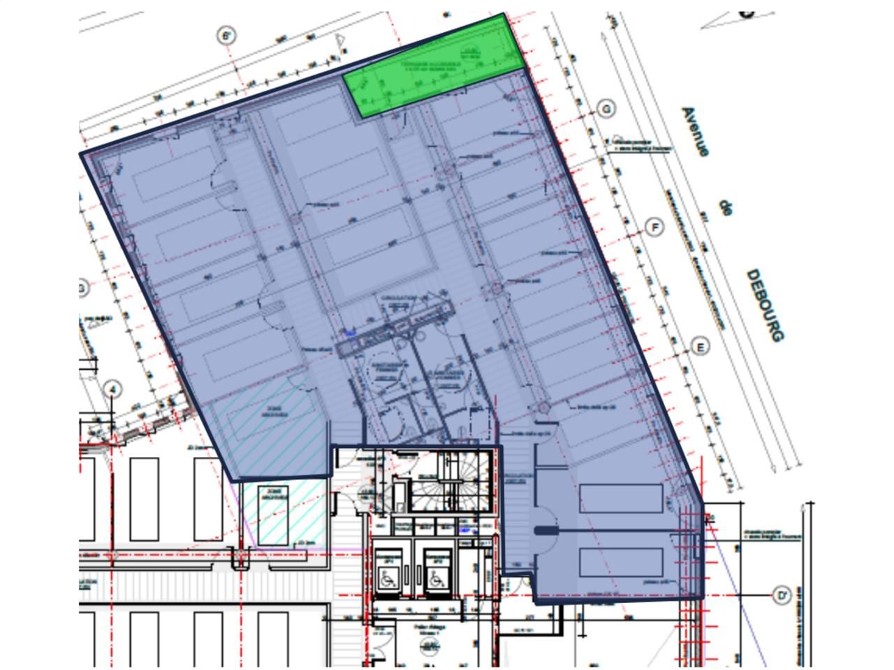
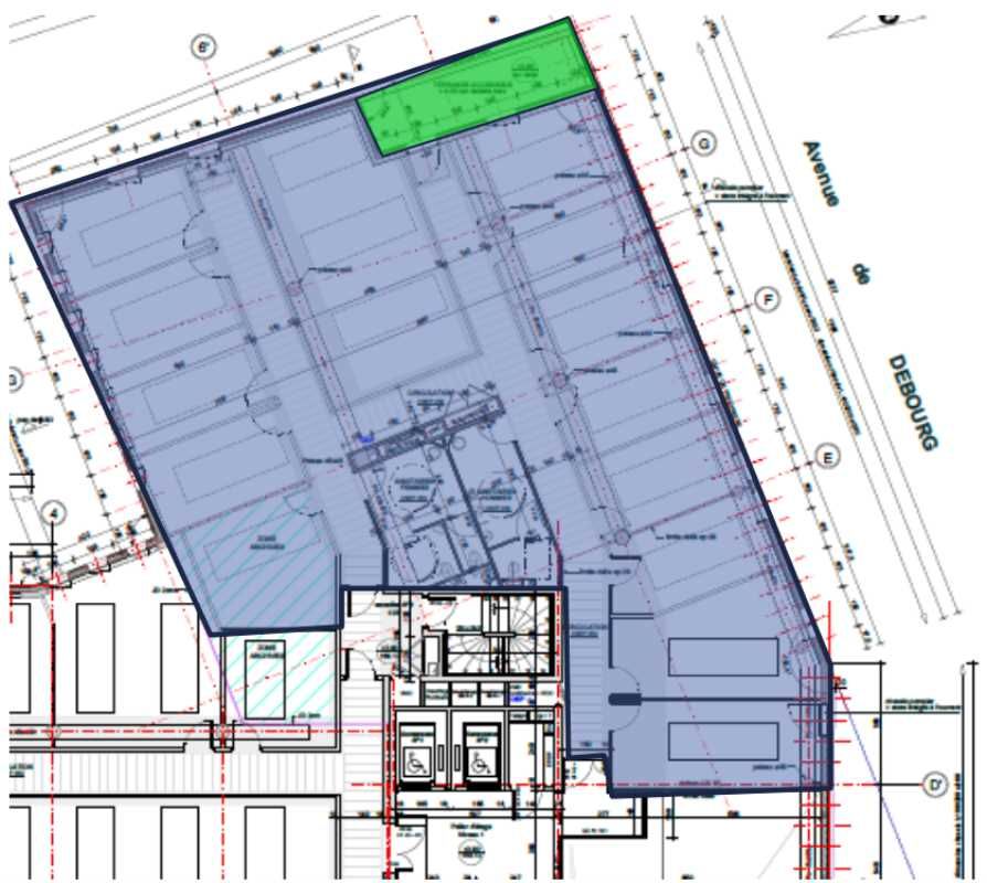
1 698 m² divisible dès 345 m²
HT HC
SUNWAY - Location bureau - 1698 m²
Lyon 7 (69007)
Dernière mise à jour : Il y a 6 mois
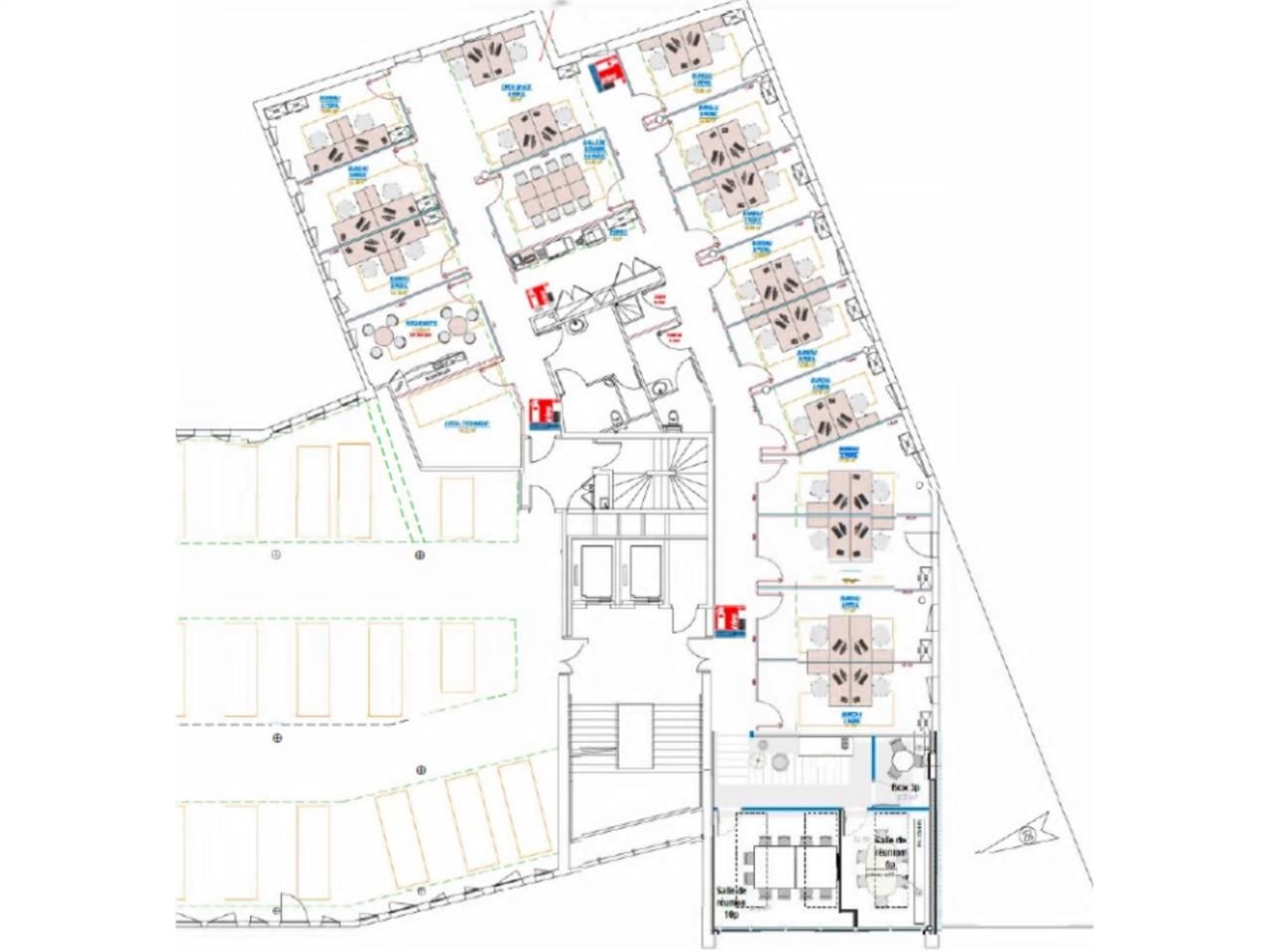
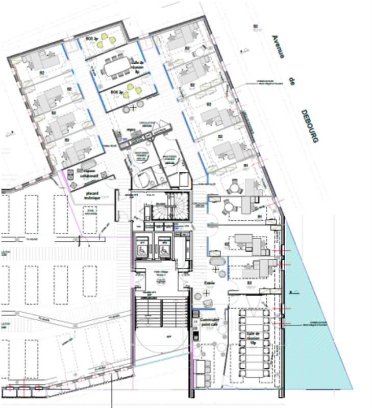
Bureaux à louer. Secteur Gerland.Métro Debourg
Immeuble SUNWAY
Cushman & Wakefield vous propose des bureaux à louer à Lyon 7ème (69007)
Ces bureaux sont situés dans l'immeuble le SUNWAY à Gerland . Ils bénéficient d un emplacement privilégié par son accessibilité et ses commerces de proximité.
Le SUNWAY est situé au carrefour des avenues Jean-Jaurès et Debourg, au pied du métro B (station « Debourg »), du tramway T1 et de la future ligne de tramway T6.
Bureaux cloisonnés en très bon état, lumineux et bénéficiant de belles prestations.
Ils offrent un cadre de travail confortable et facile d'accès,
Primé par la région Rhône-Alpes et l'ADEME dans le cadre du PREBAT (Programme de Recherche et d'Expérimentations sur l'Energie dans le Bâtiment), cet immeuble de bureaux dispose d'un hall de standing, aménagé et de parkings en sous-sol.
Les informations sur les risques auxquels ce bien est exposé sont disponibles sur le site Géorisques : www.georisques.gouv.fr
Impôt Foncier : 24 €/HT/m²/an
Régime Fiscal : T.V.A.
Dépôt de garantie : 3 mois de loyer HT/HC
Paiement Loyer : Trimestriel
Honoraires : 15 % HT du loyer annuel HT/HC à la charge du preneur.
Prestations :
Accessibilité:
Métro Debourg (ligne B)
Tram Debourg (Tram 1)
Tram Future ligne Tram 6
SNCF Gare de la Part-Dieu à moins de 10 minutes en métro
Aéroport Aéroport de Lyon Saint-Exupéry à 25 min en voiture
velib Station Vélo'V "Debourg / Jean Jaurès"
Les informations sur les risques auxquels ce bien est exposé sont disponibles sur le site Géorisques : www.georisques.gouv.fr
Immeuble SUNWAY
Cushman & Wakefield vous propose des bureaux à louer à Lyon 7ème (69007)
Ces bureaux sont situés dans l'immeuble le SUNWAY à Gerland . Ils bénéficient d un emplacement privilégié par son accessibilité et ses commerces de proximité.
Le SUNWAY est situé au carrefour des avenues Jean-Jaurès et Debourg, au pied du métro B (station « Debourg »), du tramway T1 et de la future ligne de tramway T6.
Bureaux cloisonnés en très bon état, lumineux et bénéficiant de belles prestations.
Ils offrent un cadre de travail confortable et facile d'accès,
Primé par la région Rhône-Alpes et l'ADEME dans le cadre du PREBAT (Programme de Recherche et d'Expérimentations sur l'Energie dans le Bâtiment), cet immeuble de bureaux dispose d'un hall de standing, aménagé et de parkings en sous-sol.
Les informations sur les risques auxquels ce bien est exposé sont disponibles sur le site Géorisques : www.georisques.gouv.fr
| Étage | Type | Surfaces | Dispo | Loyer | Charges | Type de bailRév. annuelle |
|---|---|---|---|---|---|---|
| 5 | Bureaux | 449 | Immédiate | 200 HT/HC/m²/an | 30,5 HT/m²/an | 3-6-9 ansSur l'indice ILAT |
| 3 | Bureaux | 904 | Immédiate | 200 HT/HC/m²/an | 30,5 HT/m²/an | 3-6-9 ansSur l'indice ILAT |
| 1 | Bureaux | 345 | Immédiate | 200 HT/HC/m²/an | 30,5 HT/m²/an | 3-6-9 ansSur l'indice ILAT |
| pkg Ext | Parkings | 1600 HT/HC/place/an | 75 HT/u/an | 3-6-9 ansSur l'indice ILAT |
Impôt Foncier : 24 €/HT/m²/an
Régime Fiscal : T.V.A.
Dépôt de garantie : 3 mois de loyer HT/HC
Paiement Loyer : Trimestriel
Honoraires : 15 % HT du loyer annuel HT/HC à la charge du preneur.
Prestations :
- Très bel immeuble de standing BBC/HQE, au pied du métro B et du tramway
- Ascenseur
- Digicode
- Interphone
- Hall décoré
- Bureaux récents aménagés non cloisonnés
- Accueil
- Grande cuisine
- Espace détente
- Câblé et fibré
- Salle informatique
- Plancher technique
- Accès PMR
- 2 ascenseurs
- Chauffage et rafraichissement d'air par pompe à chaleur
Accessibilité:
Métro Debourg (ligne B)
Tram Debourg (Tram 1)
Tram Future ligne Tram 6
SNCF Gare de la Part-Dieu à moins de 10 minutes en métro
Aéroport Aéroport de Lyon Saint-Exupéry à 25 min en voiture
velib Station Vélo'V "Debourg / Jean Jaurès"
Les informations sur les risques auxquels ce bien est exposé sont disponibles sur le site Géorisques : www.georisques.gouv.fr
Emplacement(s) de Parking: 19 places
Voir plus
Afficher les consommations énergétiques
Localisation et transport aux alentours
- Debourg61m (1min à pied)1
- Debourg96m (1min à pied)B
Favoris
Exporter
Appeler
Contacter
Signaler cette annonce










