Société de conseil immobilier implantée sur Lyon et Paris, Sorovim accompagne particuliers et professionnels dans leurs projets de vente, d’acquisition, d’investissement et d’estimation de bien.Sor ...
En savoir plus

163 m²
HT HC
Location bureau - 163 m²
Lyon 3 (69003)
Dernière mise à jour : Il y a 2 jours
BUREAUX A LA LOCATION DE 163m²
Au coeur du 3ème arrondissement de Lyon, installez votre activité dans des bureaux de 163 m² bénéficiant d'une situation exceptionnelle, face à la gare Part-Dieu. Situé en rez-de-chaussée d'un immeuble d'habitation, ce local proposé à la location, offre une visibilité maximale grâce à sa vitrine sur rue et un accès immédiat aux commerces et transports. Une adresse stratégique pour dynamiser votre activité!
Impôt Foncier : 17 €/HT / m²/an
Régime Fiscal : T.V.A.
Dépôt de garantie : 3 mois de loyer HT HC
Honoraires : 15% HT du loyer annuel HT HC à la charge du preneur,
Information sur le Bail :
Loyer parking: 1500 euros HT HC /U /an Les charges comprennent les charges parking / l'eau froide
Prestations :
Accessibilité:
SNCF Gare Lyon-Part-Dieu au pied de l'immeuble
Métro Ligne B - Charpennes - Hôpital Lyon Sud
Tram Ligne T1 - Debourg - IUT Feyssine
Tram Ligne T3 - Part-Dieu Villette - Meyzieu
Tram Ligne T4 - La Doua - Hôpital Feyzin Vénissieux
Bus Ligne C1 Cuire - Part Dieu
Bus Ligne C6 Ecully - Part Dieu
Bus Ligne C9 - Hôpitaux Est - Part Dieu
Bus Ligne C11 - Laurent Bonnevay - Saxe Gambetta
Bus Ligne C13 - Montessuy - Grange Blanche
Les informations sur les risques auxquels ce bien est exposé sont disponibles sur le site Géorisques : www.georisques.gouv.fr
Au coeur du 3ème arrondissement de Lyon, installez votre activité dans des bureaux de 163 m² bénéficiant d'une situation exceptionnelle, face à la gare Part-Dieu. Situé en rez-de-chaussée d'un immeuble d'habitation, ce local proposé à la location, offre une visibilité maximale grâce à sa vitrine sur rue et un accès immédiat aux commerces et transports. Une adresse stratégique pour dynamiser votre activité!
| Étage | Type | Surfaces | Dispo | Loyer | Charges | Type de bailRév. annuelle |
|---|---|---|---|---|---|---|
| RDC | Bureaux | 163,4 | Immédiate | 165 HT HC /m² /an | 23,65 HT / m² /an | 3-6-9 ansILAT Indice des Loyers des Activités Tertiaires |
Impôt Foncier : 17 €/HT / m²/an
Régime Fiscal : T.V.A.
Dépôt de garantie : 3 mois de loyer HT HC
Honoraires : 15% HT du loyer annuel HT HC à la charge du preneur,
Information sur le Bail :
Loyer parking: 1500 euros HT HC /U /an Les charges comprennent les charges parking / l'eau froide
Prestations :
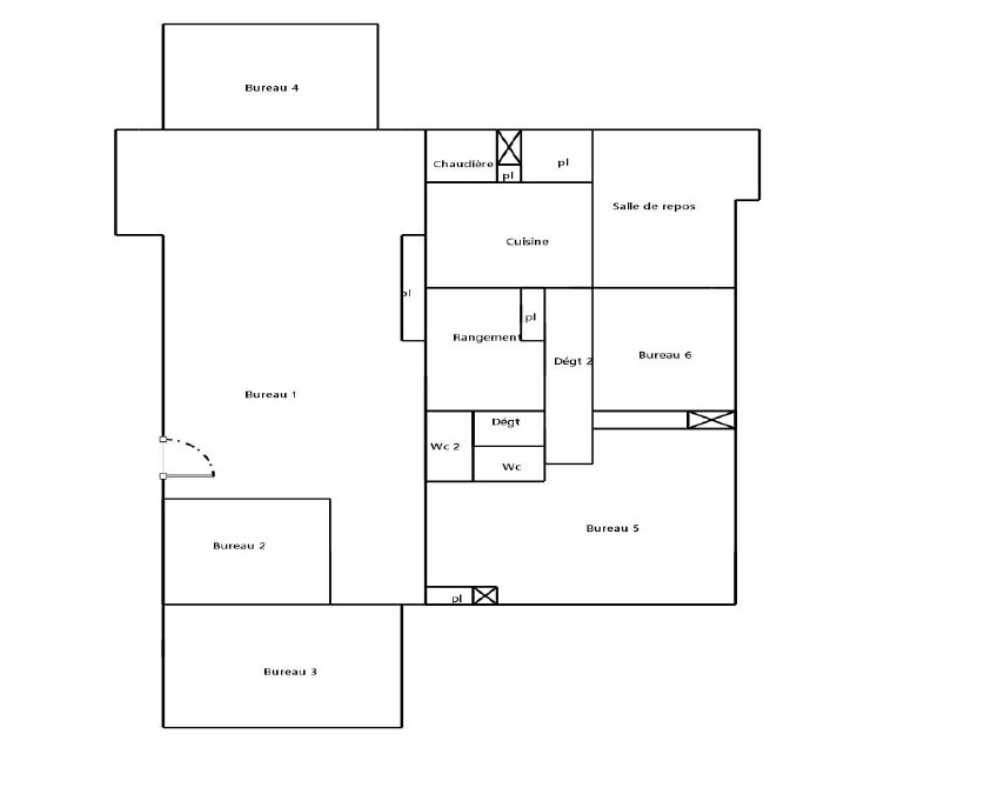
- RDC d'un immeuble d'habitation
- Accès direct sur rue et sur la cour commune arborée
- Bureaux aménagés , cloisonnés et traversants
- Cloisons amovibles vitrées sur allège
- Open Space, 3 bureaux individuels et une salle de réunion
- Kitchenette
- Rafraichissement d'air réversible neuve
- Faux plafond avec pavés LED
- Hauteur sous plafond de 2,40m
- Stores intérieurs
- Vitrine avec volets électriques
- Sol moquette et PVC
- Fibré et câblé
- Baie de brassage
- Cour commune
- Sanitaires privatifs
- 2 caves
- 2 places de stationnement extérieures
- Surface RDC : 163,4 m²
Accessibilité:
SNCF Gare Lyon-Part-Dieu au pied de l'immeuble
Métro Ligne B - Charpennes - Hôpital Lyon Sud
Tram Ligne T1 - Debourg - IUT Feyssine
Tram Ligne T3 - Part-Dieu Villette - Meyzieu
Tram Ligne T4 - La Doua - Hôpital Feyzin Vénissieux
Bus Ligne C1 Cuire - Part Dieu
Bus Ligne C6 Ecully - Part Dieu
Bus Ligne C9 - Hôpitaux Est - Part Dieu
Bus Ligne C11 - Laurent Bonnevay - Saxe Gambetta
Bus Ligne C13 - Montessuy - Grange Blanche
Les informations sur les risques auxquels ce bien est exposé sont disponibles sur le site Géorisques : www.georisques.gouv.fr
Voir plus
Afficher les consommations énergétiques
Localisation et transport aux alentours
Favoris
Exporter
Appeler
Contacter
Signaler cette annonce










