Conseil en immobilier d'entreprise, Cushman & Wakefield est un acteur incontournable au rayonnement international. Cushman & Wakefield offre des solutions dans toutes les étapes que comporte un p ...
En savoir plus





485 m² divisible dès 88 m²
HT HC
Location bureau - 485 m²
Lyon 2 (69002)
Dernière mise à jour : Il y a 1 mois
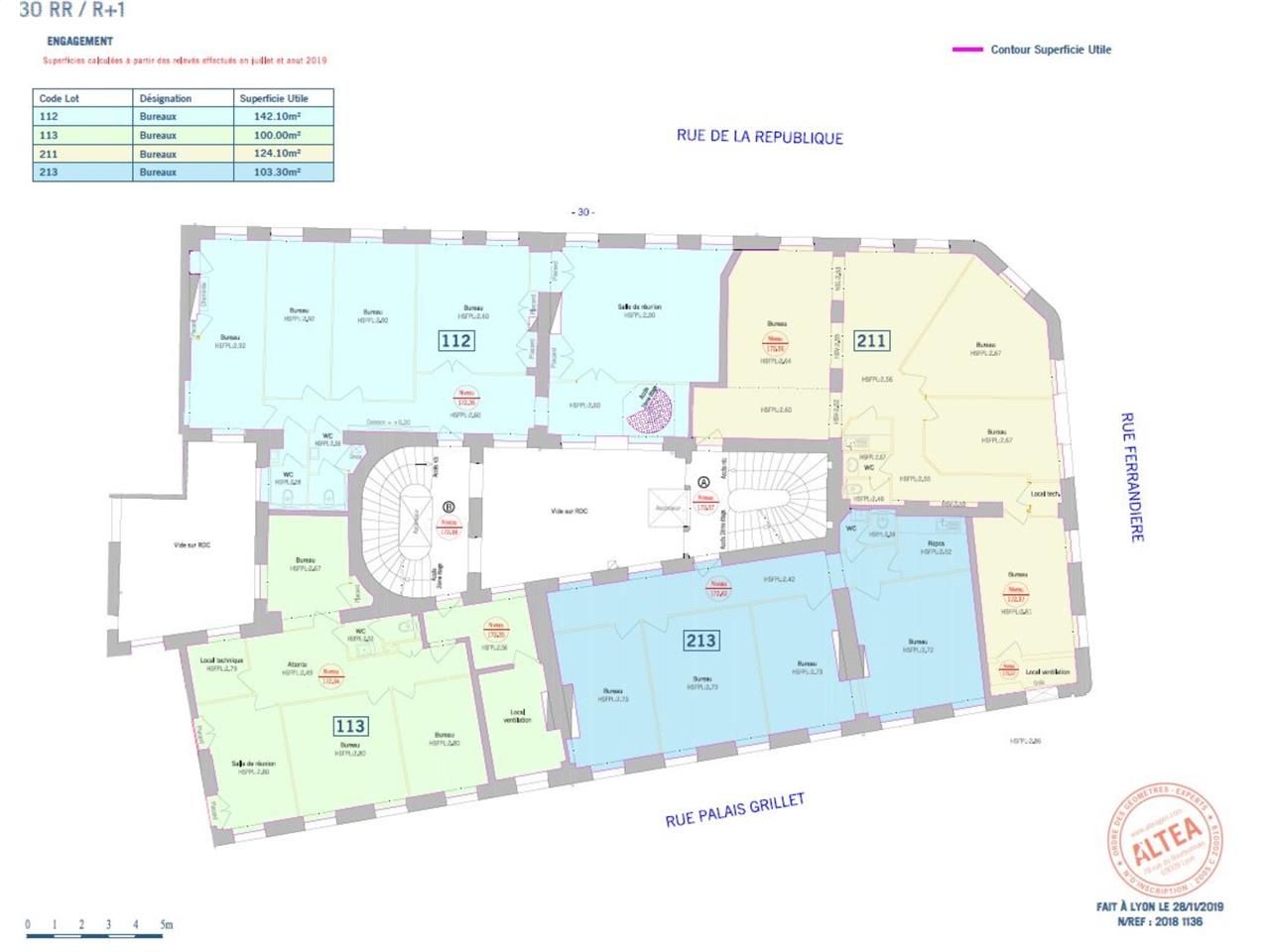
Bureaux à louer Rue de la République!
Bureaux à louer - Rue de la République, Lyon 2e
Cushman & Wakefield vous présente une opportunité rare : Très beau plateau de bureaux à louer dans un immeuble haussmannien emblématique, situé sur la prestigieuse Rue de la République, en plein coeur de la Presqu'île, à Lyon 2e.
Ce lot disponible à la location est parfaitement adapté aux entreprises à la recherche d'un emplacement stratégique et d'un cadre professionnel alliant cachet historique et flexibilité.
Description du lot disponible :
Lot 1 : 100 m²- Grand open-space prêt à être aménagé et un bureau fermé
Grand plateau avec de nombreuses fenêtres offre de nombreuses possibilités pour répondre aux besoins variés des entreprises.
l représente une opportunité unique pour les entreprises souhaitant personnaliser l'agencement des bureaux selon leurs besoins spécifiques.
Le lot vient d'être rénové
Cet espace modulable à louer est parfait pour concevoir un environnement de travail sur mesure, qu'il s'agisse de bureaux individuels, d'un open space ou d'une combinaison des deux.
Situés au coeur du quartier emblématique de la Presqu'île, ces bureaux bénéficient d'une localisation centrale et dynamique, prisée pour sa facilité d'accès et son cadre de vie agréable.
Atouts de l'emplacement :
- Proximité immédiate des transports en commun, incluant les lignes de métro A et D, ainsi que plusieurs lignes de bus et tramway.
- Accès facile aux parkings publics, pour les visiteurs et les collaborateurs véhiculés.
- Une offre variée de commerces, restaurants et services à quelques pas, facilitant le quotidien des équipes.
Les avantages de ces bureaux :
- Un cadre de travail prestigieux dans un immeuble haussmannien, combinant charme historique et fonctionnalité moderne.
- Une grande flexibilité, avec un lot clé en main et un lot personnalisable selon vos besoins.
- Une localisation idéale pour renforcer la visibilité et l'attractivité de votre entreprise.
Ces bureaux à louer s'adressent aussi bien aux startups en quête d'un lieu inspirant qu'aux professions libérales établies recherchant un environnement représentatif de leur image de marque. L'élégance de l'immeuble, alliée à la flexibilité des aménagements, offre un cadre de travail optimal pour favoriser la productivité et le bien-être des équipes.
Contactez-nous pour une visite
Pour obtenir plus d'informations ou organiser une visite, contactez Cushman & Wakefield Lyon dès aujourd'hui.
Ces deux lots de bureaux, situés dans l'un des quartiers les plus recherchés de Lyon, sont une opportunité unique pour installer ou développer votre activité dans un cadre prestigieux et fonctionnel. Ne laissez pas passer cette chance !
Régime Fiscal : T.V.A.
Dépôt de garantie : 3 mois de loyer HT/HC
Honoraires : 15 % HT du loyer annuel HT/HC à la charge du preneur.
Information sur le Bail :
Honoraires de gestion technique : 1,75% du loyer HTHC Impôt foncier : 1106 euros (lot de 87,60 m²) 7157 euros (lot de 397,60 euros)
Prestations :
Accessibilité:
Bus nombreuses lignes de bus
Métro Cordeliers (ligne A)
Les informations sur les risques auxquels ce bien est exposé sont disponibles sur le site Géorisques : www.georisques.gouv.fr
Bureaux à louer - Rue de la République, Lyon 2e
Cushman & Wakefield vous présente une opportunité rare : Très beau plateau de bureaux à louer dans un immeuble haussmannien emblématique, situé sur la prestigieuse Rue de la République, en plein coeur de la Presqu'île, à Lyon 2e.
Ce lot disponible à la location est parfaitement adapté aux entreprises à la recherche d'un emplacement stratégique et d'un cadre professionnel alliant cachet historique et flexibilité.
Description du lot disponible :
Lot 1 : 100 m²- Grand open-space prêt à être aménagé et un bureau fermé
Grand plateau avec de nombreuses fenêtres offre de nombreuses possibilités pour répondre aux besoins variés des entreprises.
l représente une opportunité unique pour les entreprises souhaitant personnaliser l'agencement des bureaux selon leurs besoins spécifiques.
Le lot vient d'être rénové
Cet espace modulable à louer est parfait pour concevoir un environnement de travail sur mesure, qu'il s'agisse de bureaux individuels, d'un open space ou d'une combinaison des deux.
Situés au coeur du quartier emblématique de la Presqu'île, ces bureaux bénéficient d'une localisation centrale et dynamique, prisée pour sa facilité d'accès et son cadre de vie agréable.
Atouts de l'emplacement :
- Proximité immédiate des transports en commun, incluant les lignes de métro A et D, ainsi que plusieurs lignes de bus et tramway.
- Accès facile aux parkings publics, pour les visiteurs et les collaborateurs véhiculés.
- Une offre variée de commerces, restaurants et services à quelques pas, facilitant le quotidien des équipes.
Les avantages de ces bureaux :
- Un cadre de travail prestigieux dans un immeuble haussmannien, combinant charme historique et fonctionnalité moderne.
- Une grande flexibilité, avec un lot clé en main et un lot personnalisable selon vos besoins.
- Une localisation idéale pour renforcer la visibilité et l'attractivité de votre entreprise.
Ces bureaux à louer s'adressent aussi bien aux startups en quête d'un lieu inspirant qu'aux professions libérales établies recherchant un environnement représentatif de leur image de marque. L'élégance de l'immeuble, alliée à la flexibilité des aménagements, offre un cadre de travail optimal pour favoriser la productivité et le bien-être des équipes.
Contactez-nous pour une visite
Pour obtenir plus d'informations ou organiser une visite, contactez Cushman & Wakefield Lyon dès aujourd'hui.
Ces deux lots de bureaux, situés dans l'un des quartiers les plus recherchés de Lyon, sont une opportunité unique pour installer ou développer votre activité dans un cadre prestigieux et fonctionnel. Ne laissez pas passer cette chance !
| Étage | Type | Surfaces | Dispo | Loyer | Charges | Type de bailRév. annuelle |
|---|---|---|---|---|---|---|
| 3 | Bureaux | 397,6 | 3 novembre 2026 | 330 HT/HC/m²/an | 9,94 HT/an | 3-6-9 ansSur l'indice ILAT |
| 1 | Bureaux | 87,6 | Immédiate | 320 HT/HC/m²/an | 10,09 HT/an | 3-6-9 ansSur l'indice ILAT |
Régime Fiscal : T.V.A.
Dépôt de garantie : 3 mois de loyer HT/HC
Honoraires : 15 % HT du loyer annuel HT/HC à la charge du preneur.
Information sur le Bail :
Honoraires de gestion technique : 1,75% du loyer HTHC Impôt foncier : 1106 euros (lot de 87,60 m²) 7157 euros (lot de 397,60 euros)
Prestations :
- Locaux rénovés pour le 1er étage
- Climatisation
Accessibilité:
Bus nombreuses lignes de bus
Métro Cordeliers (ligne A)
Les informations sur les risques auxquels ce bien est exposé sont disponibles sur le site Géorisques : www.georisques.gouv.fr
Voir plus
Afficher les consommations énergétiques
Localisation et transport aux alentours
- Cordeliers112m (2min à pied)A
- Hotel de Ville527m (8min à pied)AC
Favoris
Exporter
Appeler
Contacter
Signaler cette annonce










