Depuis 2003, KEOPS Toulouse accompagne les entreprises dans leurs projets immobiliers sur toute l’aire urbaine toulousaine.Notre équipe de professionnels passionnés met à votre service sa connaissa ...
En savoir plus

448 m²
Bureau à vendre - 448 m²
Toulouse (31000)
Dernière mise à jour : Il y a 4 jours
- A VENDRE -
Surface de bureaux proposée à la vente, idéalement située dans un ensemble immobilier mixte sur les Allées de Barcelone à Toulouse
Centre ville - Quartier Compans Caffrelli / Pont Jumeaux Périphérique : sortie n°30 "Ponts jumeaux" Bus : ligne L1 Métro : ligne A "Compans Caffarelli" Aéroport 10 min
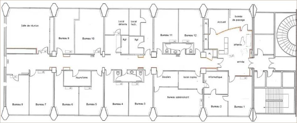
Dans un immeuble mixte construit en 1976, nous vous proposons une surface de bureaux de bon standing d'une surface d'environ 450 m² située au 1er étagePlateau livré cloisonné : accueil, nombreux bureaux, salle de réunion, salle de pause, locaux techniqueSystème de climatisation réversible et chauffage collectifCâblage informatiqueParking : 4 places en sous-sol
(2) prix de vente selon la fiscalité en Euros HD HC ou Euros HT HC (5) charges en Euros HT / m² / an
Centre ville - Quartier Compans Caffrelli / Pont Jumeaux Périphérique : sortie n°30 "Ponts jumeaux" Bus : ligne L1 Métro : ligne A "Compans Caffarelli" Aéroport 10 min
Dans un immeuble mixte construit en 1976, nous vous proposons une surface de bureaux de bon standing d'une surface d'environ 450 m² située au 1er étagePlateau livré cloisonné : accueil, nombreux bureaux, salle de réunion, salle de pause, locaux techniqueSystème de climatisation réversible et chauffage collectifCâblage informatiqueParking : 4 places en sous-sol
| Etage | Surface | Type de locaux | Prix de vente(2) | Charges(5) | Disponibilité | Commentaires |
|---|---|---|---|---|---|---|
| 1er | 447,55 m² | Bureaux | 890 000,00 | 23,11 | Juin 2025 | Parking : 4 places en sous-sol |
Voir plus
Afficher les consommations énergétiques
Localisation et transport aux alentours
- St Cyprien - République172m (3min à pied)A
Favoris
Exporter
Appeler
Contacter
Signaler cette annonce
