Société de conseil immobilier implantée sur Lyon et Paris, Sorovim accompagne particuliers et professionnels dans leurs projets de vente, d’acquisition, d’investissement et d’estimation de bien.Sor ...
En savoir plus

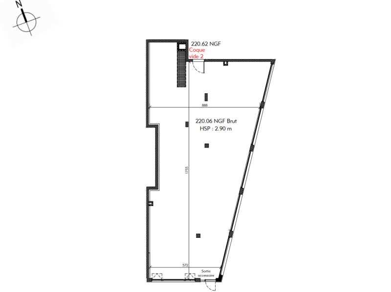
112 m²
LES JARDINS D'HYPOLYTE - Bureau à vendre - 112 m²
Tassin-la-Demi-Lune (69160)
Dernière mise à jour : Hier
Centre de Tassin : Local neuf- IDEAL PROFESSIONS MEDICALES - A VENDRE
Immeuble LES JARDINS D'HYPOLYTE
En plein coeur du centre de Tassin la Demi-Lune, au pied d'un immeuble de logement neuf, un locaul professionnel avec parkings sont disponibles à l'acquisition
IDEAL professions médicales.
Impôt Foncier : 17 €/m²
Régime Fiscal : TVA et frais de notaire réduits
Honoraires : 3% HT du prix de vente HT HD, en sus, à la charge de l'acquéreur
Prestations :
Accessibilité:
SNCF Ecully la Demi-lune (SNCF)
Autoroute A6
Bus Lignes 5: Demi lune Mairie (Charbonnières / Pont Mouton)
Bus 14: Carrefour Libération (Gare d'Oullins / Gorge de Loup)
Bus 55: Demi lune Vauboin (Perrache / Campus Lyon Ouest)
Bus 72: Demi lune Vauboin (St Consorce/ Gorge de Loup)
Bus 73: Demi lune Vauboin (Brindas / Gorge de Loup)
Bus 86: Demi lune Clemenceau (Tour de Salvagny / Gorge de Loup)
Bus C21: Demi lune Mairie (Perrache/ Gorge de Loup)
Bus C24: Menival Sainte Anne (Craponne/ Gorge de Loup)
Les informations sur les risques auxquels ce bien est exposé sont disponibles sur le site Géorisques : www.georisques.gouv.fr
Immeuble LES JARDINS D'HYPOLYTE
En plein coeur du centre de Tassin la Demi-Lune, au pied d'un immeuble de logement neuf, un locaul professionnel avec parkings sont disponibles à l'acquisition
IDEAL professions médicales.
| Étage | Type | Surfaces | Dispo | Prix(m²) | Charges | Honoraires | Fiscal |
|---|---|---|---|---|---|---|---|
| RDC | Bureaux | 112 | Immédiate | 2165 HD/m² | 20 HT/m²/an | 3% HT du prix de vente HT HD, en sus, à la charge de l'acquéreur | TVA et frais de notaire réduits |
Impôt Foncier : 17 €/m²
Régime Fiscal : TVA et frais de notaire réduits
Honoraires : 3% HT du prix de vente HT HD, en sus, à la charge de l'acquéreur
Prestations :
- Immeuble de standing, en cours de construction
- Locaux neufs
- Locaux livrés brut de béton, fluides en attente
- Menuiseries façade posée
- 5 places de stationnement
- Surface RDC : 112 m²
Accessibilité:
SNCF Ecully la Demi-lune (SNCF)
Autoroute A6
Bus Lignes 5: Demi lune Mairie (Charbonnières / Pont Mouton)
Bus 14: Carrefour Libération (Gare d'Oullins / Gorge de Loup)
Bus 55: Demi lune Vauboin (Perrache / Campus Lyon Ouest)
Bus 72: Demi lune Vauboin (St Consorce/ Gorge de Loup)
Bus 73: Demi lune Vauboin (Brindas / Gorge de Loup)
Bus 86: Demi lune Clemenceau (Tour de Salvagny / Gorge de Loup)
Bus C21: Demi lune Mairie (Perrache/ Gorge de Loup)
Bus C24: Menival Sainte Anne (Craponne/ Gorge de Loup)
Les informations sur les risques auxquels ce bien est exposé sont disponibles sur le site Géorisques : www.georisques.gouv.fr
Voir plus
Afficher les consommations énergétiques
Localisation et transport aux alentours
Favoris
Exporter
Appeler
Contacter
Signaler cette annonce
