L’agence CBRE Lyon conseille et accompagne les chefs d’entreprise dans leurs projets immobiliers quels que soient leur taille et leur secteur d’activité. Spécialistes de la transaction de bureaux, ...
En savoir plus

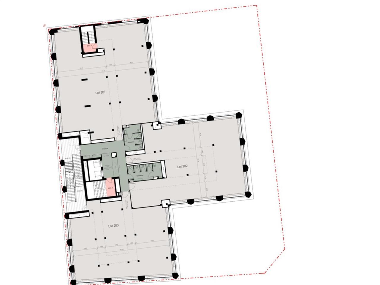
7 080 m² divisible dès 300 m²
Bureau à vendre - 7080 m²
Lyon 6 (69006)
Dernière mise à jour : Il y a 12 mois
Immeuble VIANOVA
A proximité immédiate des quartiers Part-Dieu et Brotteaux, implantez vos bureaux dans un immeuble restructuré à l'architecture remarquable.
Le secteur de Lyon Part-Dieu est l'une des plus importantes zones d'affaires de l'agglomération lyonnaise et la seconde en France, avec ses 2 200 établissements implantés et ses 55 000 emplois. L'implantation de nombreux sièges sociaux nationaux et internationaux positionne le quartier comme site majeur de décisions stratégiques. Le secteur bénéficie d'une desserte idéale grâce à son pôle multimodal. De plus le quartier s'inscrit dans une démarche de rénovation urbaine de par la restructuration de sa gare et son centre commercial.
Régime Fiscal : T.V.A.
Honoraires : 2.5% HT du prix de vente HT à la charge de l'acquéreur
Information sur le Bail :
Charges: en cours d'estimation Loyer réserve et locaux de stockage: 160 eurosHT/HC/m²/an Loyer parking en sous-sol : 2 500 eurosHT/unité/an Loyer parking deux roues : 500 eurosHT/unité/an
Prestations :
Accessibilité:
Route Accessibilité routière via boulevard Vivier Merle Connection au périphérique et à l'ensemble du réseau autoroutier
Metro Métro B "Brotteaux" à 3 min
Tramway Tramway T1 et T4 station "Collège Bellecombe" au pied de l'immeuble
Bus Bus : C16 ou 27 arrêt "Collège Bellecombe" et C1, C2 et C16 ou 70 arrêt "Brotteaux" à 1 min
SNCF Gare TGV Lyon Part-Dieu à 3 min
Aeroport Aéroport Lyon St-Exupéry via RhonExpress à 35 min
Les informations sur les risques auxquels ce bien est exposé sont disponibles sur le site Géorisques : www.georisques.gouv.fr
A proximité immédiate des quartiers Part-Dieu et Brotteaux, implantez vos bureaux dans un immeuble restructuré à l'architecture remarquable.
Le secteur de Lyon Part-Dieu est l'une des plus importantes zones d'affaires de l'agglomération lyonnaise et la seconde en France, avec ses 2 200 établissements implantés et ses 55 000 emplois. L'implantation de nombreux sièges sociaux nationaux et internationaux positionne le quartier comme site majeur de décisions stratégiques. Le secteur bénéficie d'une desserte idéale grâce à son pôle multimodal. De plus le quartier s'inscrit dans une démarche de rénovation urbaine de par la restructuration de sa gare et son centre commercial.
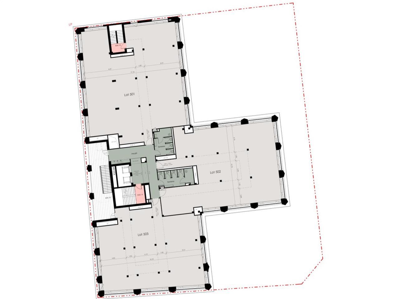
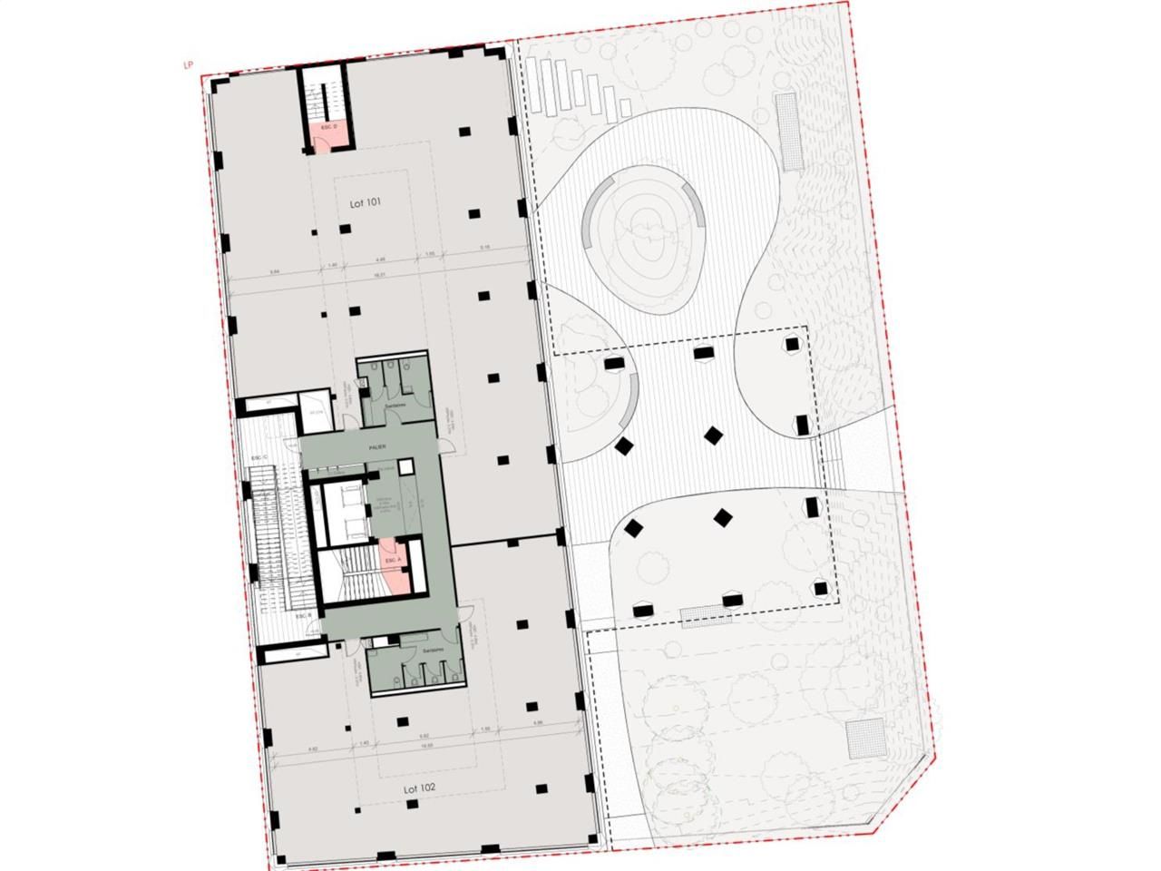
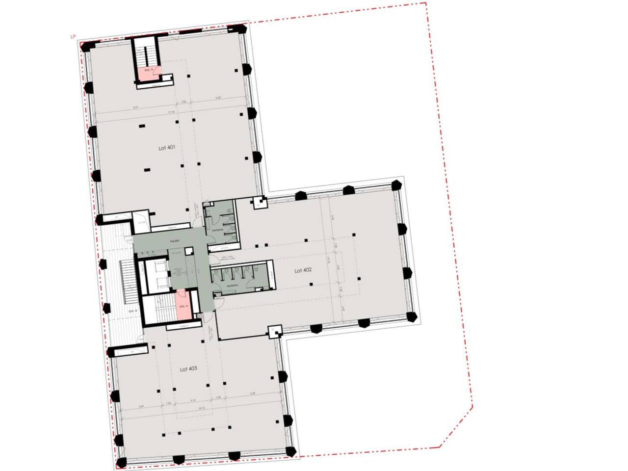
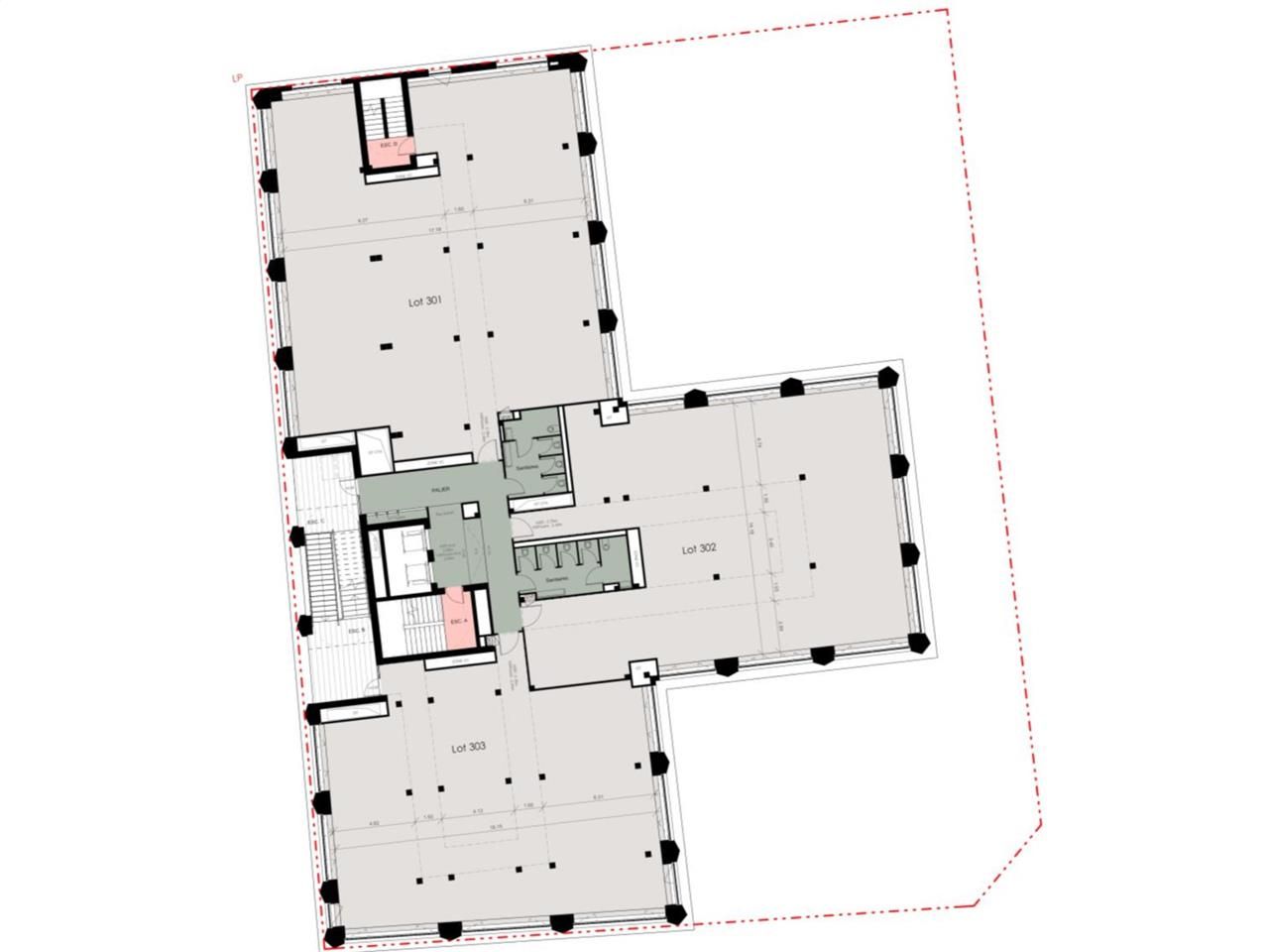
| Étage | Type | Surfaces | Dispo | Prix(m²) | Charges | Honoraires | Fiscal |
|---|---|---|---|---|---|---|---|
| 7 | Bureaux | 607 | 24 mois ap. déb. trx | 6900 m² HT | n.c. | 2.5% HT du prix de vente HT à la charge de l'acquéreur | T.V.A. |
| 6 | Bureaux | 1036 | 24 mois ap. déb. trx | 6900 m² HT | n.c. | 2.5% HT du prix de vente HT à la charge de l'acquéreur | T.V.A. |
| 5 | Bureaux | 1036 | 24 mois ap. déb. trx | 6700 m² HT | n.c. | 2.5% HT du prix de vente HT à la charge de l'acquéreur | T.V.A. |
| 4 | Bureaux | 1036 | 24 mois ap. déb. trx | 6700 m² HT | n.c. | 2.5% HT du prix de vente HT à la charge de l'acquéreur | T.V.A. |
| 3 | Bureaux | 1036 | 24 mois ap. déb. trx | 6700 m² HT | n.c. | 2.5% HT du prix de vente HT à la charge de l'acquéreur | T.V.A. |
| 2 | Bureaux | 1036 | 24 mois ap. déb. trx | 6700 m² HT | n.c. | 2.5% HT du prix de vente HT à la charge de l'acquéreur | T.V.A. |
| 1 | Bureaux | 816 | 24 mois ap. déb. trx | 6500 m² HT | n.c. | 2.5% HT du prix de vente HT à la charge de l'acquéreur | T.V.A. |
| RDC | Bureaux | 477 | 24 mois ap. déb. trx | 6500 m² HT | n.c. | 2.5% HT du prix de vente HT à la charge de l'acquéreur | T.V.A. |
Régime Fiscal : T.V.A.
Honoraires : 2.5% HT du prix de vente HT à la charge de l'acquéreur
Information sur le Bail :
Charges: en cours d'estimation Loyer réserve et locaux de stockage: 160 eurosHT/HC/m²/an Loyer parking en sous-sol : 2 500 eurosHT/unité/an Loyer parking deux roues : 500 eurosHT/unité/an
Prestations :
- Certifications et labels visés: HQE Bureaux Durable V3 niveau Excellent - WIRESCORE Niveau SILVER -RE2020 - BBCA
- Façade en terre crue/Ossature bois
- Capacitaire: 1 pers/10 m²
- HSP:2.70 m (hors réunion)
- Ventilo convecteurs basse consommation e-allège
- Eclairage LED
- BSO motorisés extérieurs et stores intérieur
- Raccordement chaud/froid urbain
- Panneaux photovoltaïques
- Rooftop 380 m² au R+7
- Terrasses et jardins
- Locaux vélos
- Réserves (230 m²= 2000 euros/m²)
- 34 stationnements en sous-sol dont 9 électriques (40 000 euros HT/unité)
- Divisibilité possible à partir de 300 m²
- Surface RDC : 477 m²
Accessibilité:
Route Accessibilité routière via boulevard Vivier Merle Connection au périphérique et à l'ensemble du réseau autoroutier
Metro Métro B "Brotteaux" à 3 min
Tramway Tramway T1 et T4 station "Collège Bellecombe" au pied de l'immeuble
Bus Bus : C16 ou 27 arrêt "Collège Bellecombe" et C1, C2 et C16 ou 70 arrêt "Brotteaux" à 1 min
SNCF Gare TGV Lyon Part-Dieu à 3 min
Aeroport Aéroport Lyon St-Exupéry via RhonExpress à 35 min
Les informations sur les risques auxquels ce bien est exposé sont disponibles sur le site Géorisques : www.georisques.gouv.fr
Voir plus
Afficher les consommations énergétiques
Localisation et transport aux alentours
- Collège Bellecombe134m (2min à pied)14
- Charpennes331m (5min à pied)1
- Charpennes - Charles Hernu332m (5min à pied)AB4
- Brotteaux347m (5min à pied)B
- Thiers - Lafayette431m (6min à pied)14
- Le Tonkin746m (11min à pied)14
- Gare Part-Dieu - Villette782m (12min à pied)314
- Part-Dieu - Vivier Merle829m (12min à pied)1
- Gare Part-Dieu - Vivier Merle845m (13min à pied)B
- Masséna1.1km (17min à pied)A
- Condorcet1.2km (18min à pied)14
- Part-Dieu - Servient1.2km (19min à pied)1
- République - Villeurbanne1.3km (19min à pied)A
- Archives Départementales1.5km (22min à pied)4
Favoris
Exporter
Appeler
Contacter
Signaler cette annonce










