Nous sommes Immprove, une grande équipe de plus de 200 experts en immobilier d’entreprise, implantés localement avec plus de 20 agences sur tout le territoire.Depuis 2009, notre proximité, notre ét ...
En savoir plus

97 m²
Bureau à vendre - 97 m²
Viry-Châtillon (91170)
Dernière mise à jour : Il y a 10 jours
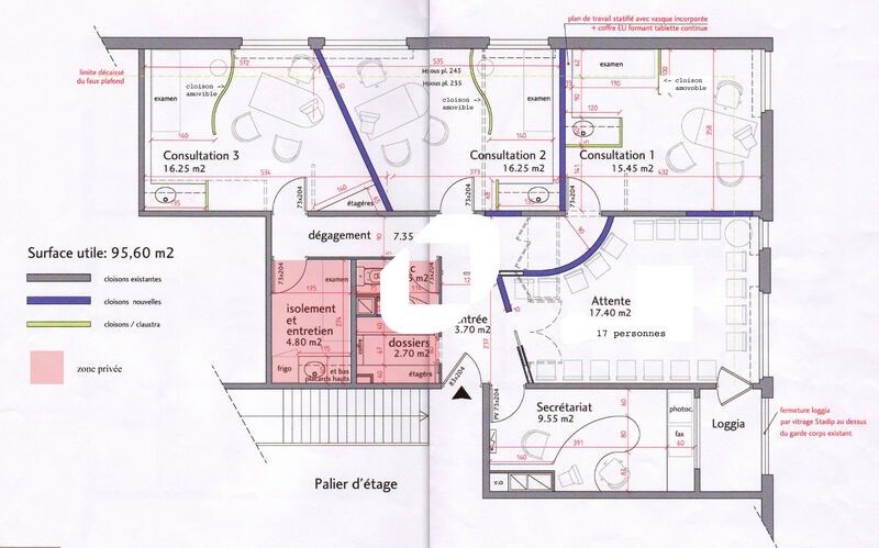
À vendre - Viry-Châtillon - Ancien cabinet médical de 97 m². IMMPROVE vous propose un ancien cabinet médical de 97 m², situé dans une copropriété calme à Viry-Châtillon.
Le local est organisé en salle d'attente, trois bureaux cloisonnés, ainsi que des espaces complémentaires
permettant une installation immédiate pour une activité médicale, paramédicale ou de bureaux.
Idéalement placé, il bénéficie d'un accès rapide au RER C et à l'autoroute A6, ainsi qu'aux commerces de proximité.
Impôt Foncier : 18,96 €//m²/an HT
Régime Fiscal : Droits d'enregistrement
Honoraires : 8 % à la charge de l'acquéreur
Prestations :
Accessibilité:
Bus Jean Morlet (4280), Lieutenant Colonel Bizeul (4518, 4223, 4524), Lucien Midol (4521, 4522, 4583)
RER Savigny-sur-Orge (C)
Tram Parc du Château (T12)
Autoroute A 6
Route N7
Les informations sur les risques auxquels ce bien est exposé sont disponibles sur le site Géorisques : www.georisques.gouv.fr
Le local est organisé en salle d'attente, trois bureaux cloisonnés, ainsi que des espaces complémentaires
permettant une installation immédiate pour une activité médicale, paramédicale ou de bureaux.
Idéalement placé, il bénéficie d'un accès rapide au RER C et à l'autoroute A6, ainsi qu'aux commerces de proximité.
| Étage | Type | Surfaces | Dispo | Prix(m²) | Charges | Honoraires | Fiscal |
|---|---|---|---|---|---|---|---|
| 1 | Bureaux | 97 | Immédiate | 1830 m² HD | 3,1 m²/an HT | 8 % à la charge de l'acquéreur | Droits d'enregistrement |
Impôt Foncier : 18,96 €//m²/an HT
Régime Fiscal : Droits d'enregistrement
Honoraires : 8 % à la charge de l'acquéreur
Prestations :
- Ascenseur
- Digicode
- Interphone
- Site clos
- Accès sécurisé par badge
- Climatisation réversible
- Bon état
- Accueil / Salle d'attente
- Bureaux cloisonnés
- Sanitaires privatifs
- Décloisonnement possible
- Archives
- Faux plafonds
- Sol PVC
- Câblage informatique et téléphonique
- Locaux E.R.P.
- Climatisation réversible
Accessibilité:
Bus Jean Morlet (4280), Lieutenant Colonel Bizeul (4518, 4223, 4524), Lucien Midol (4521, 4522, 4583)
RER Savigny-sur-Orge (C)
Tram Parc du Château (T12)
Autoroute A 6
Route N7
Les informations sur les risques auxquels ce bien est exposé sont disponibles sur le site Géorisques : www.georisques.gouv.fr
Voir plus
Afficher les consommations énergétiques
Favoris
Exporter
Appeler
Contacter
Signaler cette annonce
