CGI Real Estate, groupe spécialiste de l'immobilier d'entreprise fondé en 1994 par Emmanuel Peterle, regroupe plusieurs agences sur la Région Rhône-Alpes et notamment le sillon alpin: Lyon, Grenobl ...
En savoir plus

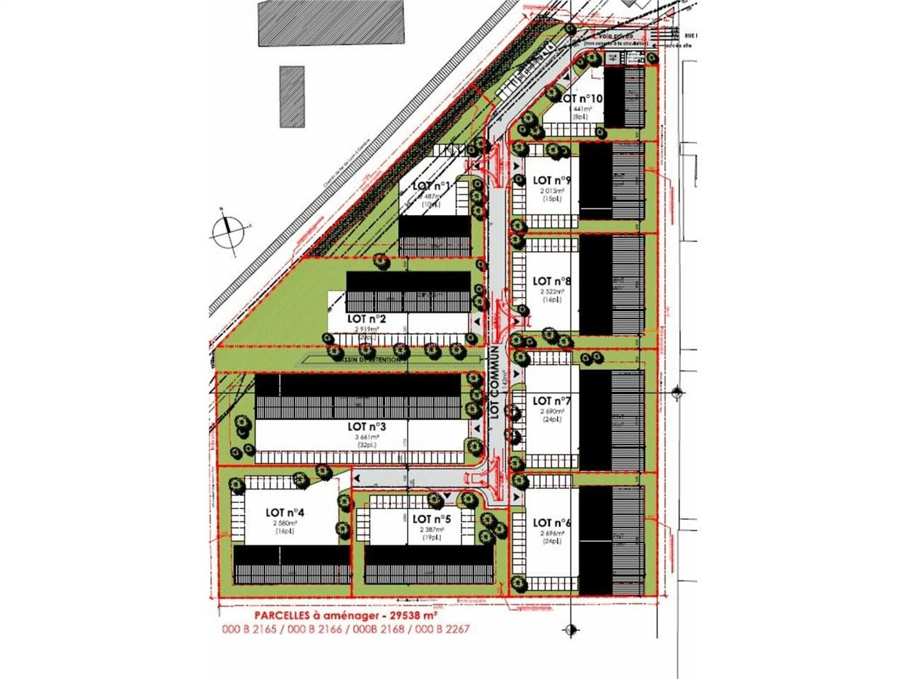
25 396 m² divisible dès 1 441 m²
Terrain à vendre - 25396 m²
Villieu-Loyes-Mollon (01800)
Dernière mise à jour : Il y a 1 mois
Terrain divisibles à vendre !
Les informations sur les risques auxquels ce bien est exposé sont disponibles sur le site Géorisques : www.georisques.gouv.fr
A42
Disponibilité : 2026
Prix de vente : 2793560 € HD HT
Honoraires à la charge de l'acquéreur : 5 % HT
CGI REAL ESTATE LYON vous propose un terrain d'environ 30 000 m², situé à VILLIEU LOYES MOLLON, entièrement divisible à partir de 1 441 m², idéal pour la construction de bâtiments d'activité.
Les surfaces des bâtiments disponibles varient entre 724 m² et 1 860 m², offrant une grande flexibilité pour répondre à vos besoins spécifiques.
N'hésitez pas à nous contacter pour plus d'informations ou pour discuter de votre projet !
Les informations sur les risques auxquels ce bien est exposé sont disponibles sur le site Géorisques : www.georisques.gouv.fr
A42
Disponibilité : 2026
Prix de vente : 2793560 € HD HT
Honoraires à la charge de l'acquéreur : 5 % HT
| batiment - lot | type | ces | superficie terrains | prix vente ht hd/m² | prix de vente ht hd | disponibilité |
| lot 1 | local d''activites | 416 m² | 2 487 m² | 110 € | 273 570,00 € | 2026 |
| lot 2 | local d''activites | 729 m² | 2 919 m² | 110 € | 321 090,00 € | 2026 |
| lot 3 | local d''activites | 1 360 m² | 3 661 m² | 110 € | 402 710,00 € | 2026 |
| lot 4 | local d''activites | 639 m² | 2 580 m² | 110 € | 283 800,00 € | 2026 |
| lot 5 | local d''activites | 698 m² | 2 387 m² | 110 € | 262 570,00 € | 2026 |
| lot 6 | local d''activites | 1 019 m² | 2 696 m² | 110 € | 296 560,00 € | 2026 |
| lot 7 | local d''activites | 944 m² | 2 690 m² | 110 € | 295 900,00 € | 2026 |
| lot 8 | local d''activites | 944 m² | 2 522 m² | 110 € | 277 420,00 € | 2026 |
| lot 9 | local d''activites | 724 m | 2 013 m² | 110 € | 221 430,00 € | sous option |
| lot 10 | local d''activites | 347 m² | 1 441 m² | 110 € | 158 510,00 € | 2026 |
| total | 7 820 m² | 25 396 m² | 110 € | 2 793 560,00 € | 2026 |
Voir plus
Afficher les consommations énergétiques
Localisation et transport aux alentours
Favoris
Exporter
Appeler
Contacter
Signaler cette annonce
