Evolis, votre partenaire en immobilier d’entreprise! Que vous soyez une entreprise, utilisateur de locaux professionnels, investisseur, ou propriétaire, Evolis met à votre service son expertise ...
En savoir plus

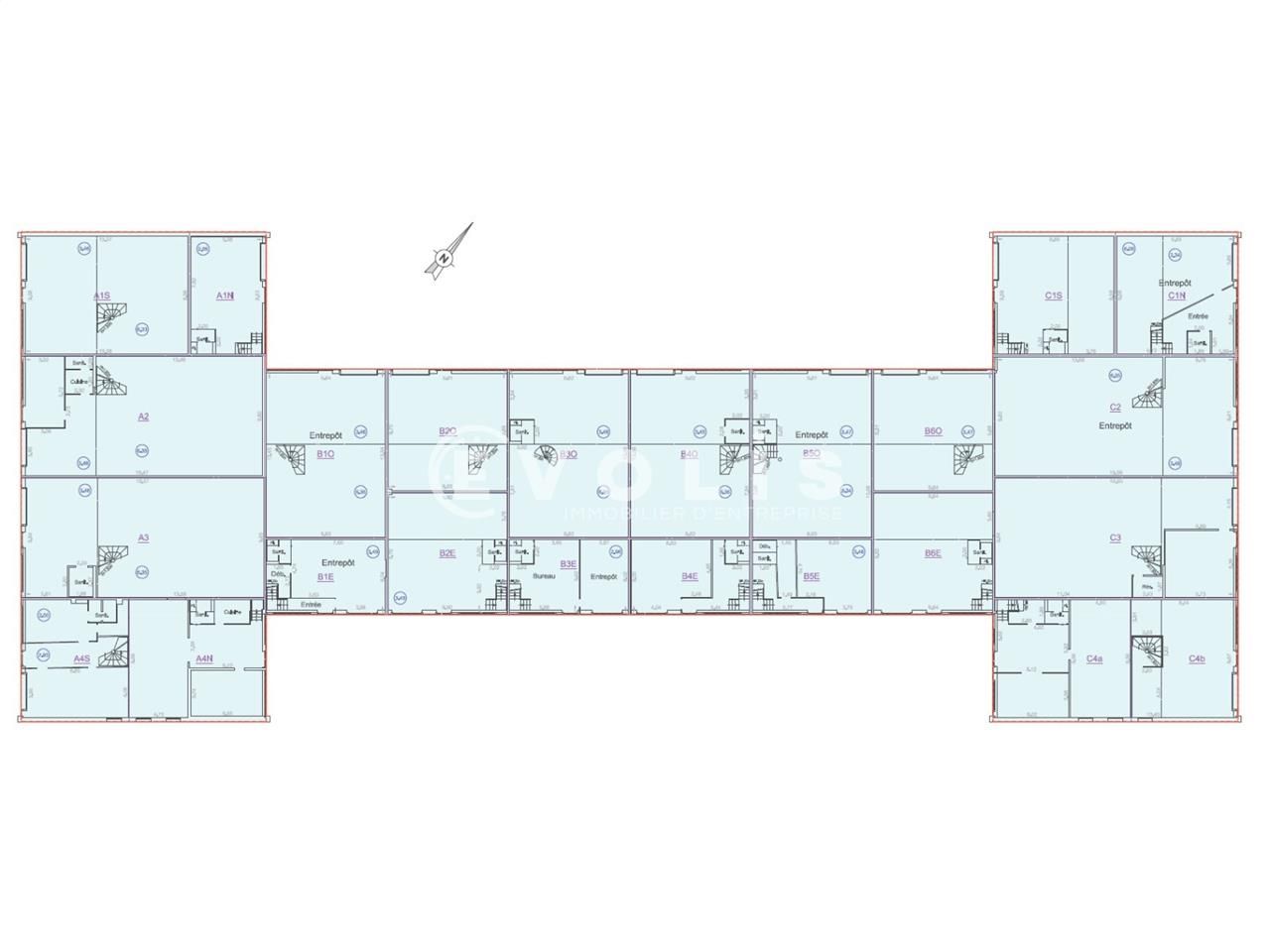
953 m² divisible dès 119 m²
HT HC
Location activité/entrepôt - 953 m²
Bondoufle (91070)
Dernière mise à jour : Il y a 25 jours
À Bondoufle, découvrez une opportunité exceptionnelle avec ces locaux d'activité de 953 m², divisibles à partir de 119 m², disponibles à la location. Proposée par EVOLIS, cette offre est idéale pour les entreprises à la recherche d'un espace adapté à leurs besoins. Ne manquez pas cette occasion unique de trouver le lieu parfait pour développer votre activité à Bondoufle.
Impôt Foncier : 15,48 €/m²/an
Régime Fiscal : T.V.A.
Dépôt de garantie : 3 mois de loyer HT HC
Honoraires : 15% du loyer annuel HT HC à la charge du preneur
Taxe Bureau : 11,87 €/m²/an
Prestations :
Accessibilité:
Bus Réseau TICE 414
RER RER D Evry Courcouronnes
Route N104
Autoroute A6
Les informations sur les risques auxquels ce bien est exposé sont disponibles sur le site Géorisques : www.georisques.gouv.fr
| Étage | Type | Surfaces | Dispo | Loyer | Charges | Type de bailRév. annuelle |
|---|---|---|---|---|---|---|
| 1 | Bureaux | 65 | ILAT Indice des Loyers des Activités Tertiaires | |||
| RDC | Activités | 194 | ILAT Indice des Loyers des Activités Tertiaires | |||
| Parkings | ILAT Indice des Loyers des Activités Tertiaires | |||||
| Total Cellule A2 | Activités | 259 | Immédiate | 95 m²/an/ HT/HC | 28 m²/an HT | Bail commercial 3-6-9 ansILAT Indice des Loyers des Activités Tertiaires |
| 1 | Bureaux | 58 | ILAT Indice des Loyers des Activités Tertiaires | |||
| RDC | Activités | 61 | ILAT Indice des Loyers des Activités Tertiaires | |||
| Parkings | ILAT Indice des Loyers des Activités Tertiaires | |||||
| Total Cellule B3E | Activités | 119 | Nous consulter | 95 m²/an/ HT/HC | 28 m²/an HT | Bail commercial 3-6-9 ansILAT Indice des Loyers des Activités Tertiaires |
| 1 | Bureaux | 64 | ILAT Indice des Loyers des Activités Tertiaires | |||
| RDC | Activités | 135 | ILAT Indice des Loyers des Activités Tertiaires | |||
| Parkings | ILAT Indice des Loyers des Activités Tertiaires | |||||
| Total Cellule B40 | Activités | 199 | Nous consulter | 95 m²/an/ HT/HC | 28 m²/an HT | Bail commercial 3-6-9 ansILAT Indice des Loyers des Activités Tertiaires |
| 1 | Bureaux | 59 | ILAT Indice des Loyers des Activités Tertiaires | |||
| RDC | Activités | 98 | ILAT Indice des Loyers des Activités Tertiaires | |||
| Parkings | ILAT Indice des Loyers des Activités Tertiaires | |||||
| Total Cellule B6E | Activités | 157 | 1er octobre 2025 | 95 m²/an/ HT/HC | 28 m²/an HT | Bail commercial 3-6-9 ansILAT Indice des Loyers des Activités Tertiaires |
| 1 | Bureaux | 107 | Immédiate | ILAT Indice des Loyers des Activités Tertiaires | ||
| RDC | Activités | 112 | Immédiate | ILAT Indice des Loyers des Activités Tertiaires | ||
| Parkings | ILAT Indice des Loyers des Activités Tertiaires | |||||
| Total Cellule C4A | Activités | 219 | Immédiate | 95 m²/an/ HT/HC | 28 m²/an HT | Bail commercial 3-6-9 ansILAT Indice des Loyers des Activités Tertiaires |
Impôt Foncier : 15,48 €/m²/an
Régime Fiscal : T.V.A.
Dépôt de garantie : 3 mois de loyer HT HC
Honoraires : 15% du loyer annuel HT HC à la charge du preneur
Taxe Bureau : 11,87 €/m²/an
Prestations :
- Divisible
- Accès plain-pied
- Hauteur sous plafond : 7 m
- Prestation bureaux :
- Faux plafond
- Parc d'activité PME/PMI :
- Site traversant avec entrée sur 2 rues
- Parking sur site
- Chauffage par convecteurs électriques
- Plinthes périphériques
- Surface RDC : 600 m²
Accessibilité:
Bus Réseau TICE 414
RER RER D Evry Courcouronnes
Route N104
Autoroute A6
Les informations sur les risques auxquels ce bien est exposé sont disponibles sur le site Géorisques : www.georisques.gouv.fr
Voir plus
Afficher les consommations énergétiques
Localisation et transport aux alentours
Favoris
Exporter
Appeler
Contacter
Signaler cette annonce
