A l’appui d’un réseau leader à l’international, I&L Solutions est une équipe de plus de 70 professionnels spécialisés en immobilier Logistique et Industriel au service des investisseurs, des propri ...
En savoir plus

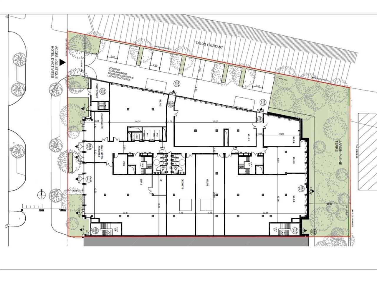
802 m² divisible dès 66 m²
HT HC
Location activité/entrepôt - 802 m²
La Plaine Saint-Denis (93210)
Dernière mise à jour : Il y a 9 mois
Rare sur le marché! CBRE vous propose à louer, des locaux d'activités neufs situé sur la commune de Saint-Denis dans le département de la Seine St Denis (93). A proximité des autoroutes A86, A1 et sur les lignes B et D du RER d'Ile-de-France. Belle surface totale de 802 m² divisibles en différents lots allant de 66 m² à 299 m². Location entrepôt idéal pour le développement de vos activités professionnelles. Bail commercial. Disponible immédiatement.
Si cet entrepôt/local d'activités à louer dans le 93 vous intéresse ou si vous souhaitez obtenir plus de renseignements, n'hésitez pas à me contacter aujourd'hui pour organiser une visite et bénéficier de toutes les informations nécessaires pour votreprojet immobilier.
En tant qu'expert en immobilier professionnel/industriel, je suis à votre disposition pour vous aider à trouver le bien adapté à vos activités professionnelles et à votre coeur de métier.
Régime Fiscal : T.V.A.
Dépôt de garantie : 3 mois de loyer HT/HC
Honoraires : 15% HT du loyer annuel HT/HC à la charge du preneur
Information sur le Bail :
Provision sur charges : 105 euros m²/an HT HC
Prestations :
Accessibilité:
RER Ligne (B), (D)
Metro Ligne (13)
Autoroute A86, A1
Bus Arrêt : Avenue du stade de France (239,353)
Les informations sur les risques auxquels ce bien est exposé sont disponibles sur le site Géorisques : www.georisques.gouv.fr
Si cet entrepôt/local d'activités à louer dans le 93 vous intéresse ou si vous souhaitez obtenir plus de renseignements, n'hésitez pas à me contacter aujourd'hui pour organiser une visite et bénéficier de toutes les informations nécessaires pour votreprojet immobilier.
En tant qu'expert en immobilier professionnel/industriel, je suis à votre disposition pour vous aider à trouver le bien adapté à vos activités professionnelles et à votre coeur de métier.
| Étage | Type | Surfaces | Dispo | Loyer | Charges | Type de bailRév. annuelle |
|---|---|---|---|---|---|---|
| RDC | Activités | 299 | Immédiate | 200 m²/an HT HC | 3-6-9 ansIndice ILAT | |
| RDC | Activités | 211 | Immédiate | 200 m²/an HT HC | 3-6-9 ansIndice ILAT | |
| RDC | Activités | 146 | Immédiate | 200 m²/an HT HC | 3-6-9 ansIndice ILAT | |
| RDC | Activités | 80 | Immédiate | 200 m²/an HT HC | 3-6-9 ansIndice ILAT | |
| RDC | Activités | 66 | Immédiate | 200 m²/an HT HC | 3-6-9 ansIndice ILAT |
Régime Fiscal : T.V.A.
Dépôt de garantie : 3 mois de loyer HT/HC
Honoraires : 15% HT du loyer annuel HT/HC à la charge du preneur
Information sur le Bail :
Provision sur charges : 105 euros m²/an HT HC
Prestations :
- Provision sur charges incluant :
- Énergie (Chauffage)
- Entretien des Parties Communes
- Ordures Ménagères Locaux Professionnels
- Prestations de service
- Taxe Foncière Locaux Professionnels
- Entretien des Espaces Extérieurs
- Taxe sur les Bureaux
- Sécurité
- Ascenseur
- Gardien
- Eau des services généraux
- Assurance
- Éclairage des parties communes
- Frais de compteur d'eau
- Gros entretien récupérable
- Téléphone récupérable
- Surface RDC : 802 m²
- Surface terrain : 0
- Accès bâtiment :
. Gros porteurs - Equipements entrepôts : . Vidéosurveillance
. Alarme
. Charges au sol RDC au 3ème étage : 500kg/m²
. ERP 5ème niveau au RDC
. Compteur individuelle ESF
. Charges d'exploitation : 500 kg/m² maximum
. Ventilation double flux
. Possibilité d'installer un compteur électrique triphasé - Ossature : Bois
Accessibilité:
RER Ligne (B), (D)
Metro Ligne (13)
Autoroute A86, A1
Bus Arrêt : Avenue du stade de France (239,353)
Les informations sur les risques auxquels ce bien est exposé sont disponibles sur le site Géorisques : www.georisques.gouv.fr
Voir plus
Afficher les consommations énergétiques
Favoris
Exporter
Appeler
Contacter
Signaler cette annonce










