LOCAUX COMMERCIAUX À LOUER
LOCALISATION1
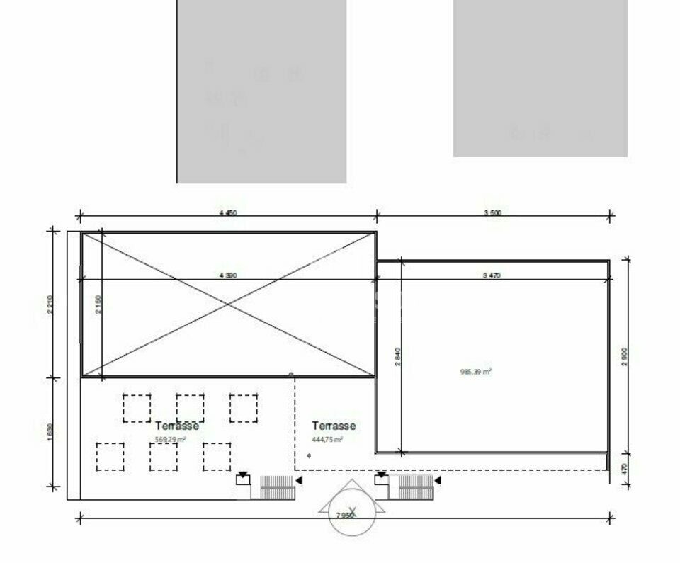
SURFACE
BUDGET
TRANSPORTS
CRITÈRES