MCarré Conseil est une agence spécialiste de l'immobilier d’entreprise du sud de l’Île-de-France (en Essonne et dans le sud de la Seine-et-Marne et du Val-De-Marne). Elle vous accompagne à chaque é ...
En savoir plus

6 300 m² divisible dès 2 000 m²
HT HC
Location activité/entrepôt - 6300 m²
Villebon-sur-Yvette (91140)
Dernière mise à jour : Il y a 4 mois
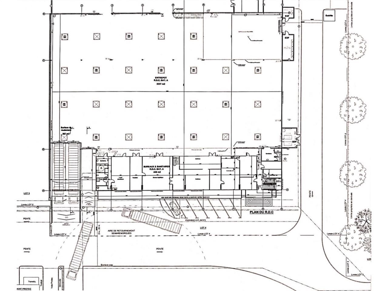
Dans un parc clos et sécurisé, nous vous proposons la location d'un bâtiment de 6 300 m² à usage d'entrepôt et bureaux d'accompagnement.
Foncier d'environ 12 500 m²
Divisibilité : nous consulter
Impôt Foncier : 5 €//HT/m²/an
Régime Fiscal : TVA
Dépôt de garantie : 3 mois de loyer HT/HC
Honoraires : 15% HT du loyer annuel HT HC
Information sur le Bail :
Loyer annuel : 472 500 euros HT/HC
Prestations :
Accessibilité:
Autoroute Autoroute A10
Route Nationale 20
Route Nationale 188
RER PALAISEAU-VILLEBON (RER B)
Bus École Île de France (BUS-M153)
Les informations sur les risques auxquels ce bien est exposé sont disponibles sur le site Géorisques : www.georisques.gouv.fr
Foncier d'environ 12 500 m²
Divisibilité : nous consulter
| Étage | Type | Surfaces | Dispo | Loyer | Charges | Type de bailRév. annuelle |
|---|---|---|---|---|---|---|
| R+1 | Bureaux | 1210 | Indice ILAT | |||
| Rdc | Entrepôts | 5090 | Indice ILAT | |||
| Total Cellule | Activités | 6300 | 15 avril 2025 | 75 m²/an HT HC | 8 HT/m²/an | 3/6/9 ansIndice ILAT |
Impôt Foncier : 5 €//HT/m²/an
Régime Fiscal : TVA
Dépôt de garantie : 3 mois de loyer HT/HC
Honoraires : 15% HT du loyer annuel HT HC
Information sur le Bail :
Loyer annuel : 472 500 euros HT/HC
Prestations :
- Locaux sociaux
- Surface RDC : 5090 m²
- Surface terrain : 12593
- Haut. libre max. ss poutre : 5,5 m
- Nbr de portes à quai : 2
- Equipements entrepôts : Accès secondaire pour déchargement latéral sur le côté du bâtiment
Façade principale ravalée en 2019
Chaudière gaz changée en 2022
Résine de l'entrepôt principal refaite en 2020 - Chauffage : Gaz
Accessibilité:
Autoroute Autoroute A10
Route Nationale 20
Route Nationale 188
RER PALAISEAU-VILLEBON (RER B)
Bus École Île de France (BUS-M153)
Les informations sur les risques auxquels ce bien est exposé sont disponibles sur le site Géorisques : www.georisques.gouv.fr
Voir plus
Afficher les consommations énergétiques
Localisation et transport aux alentours
Favoris
Exporter
Appeler
Contacter
Signaler cette annonce
