Conseil en immobilier d'entreprise, Cushman & Wakefield est un acteur incontournable au rayonnement international. Cushman & Wakefield offre des solutions dans toutes les étapes que comporte un p ...
En savoir plus



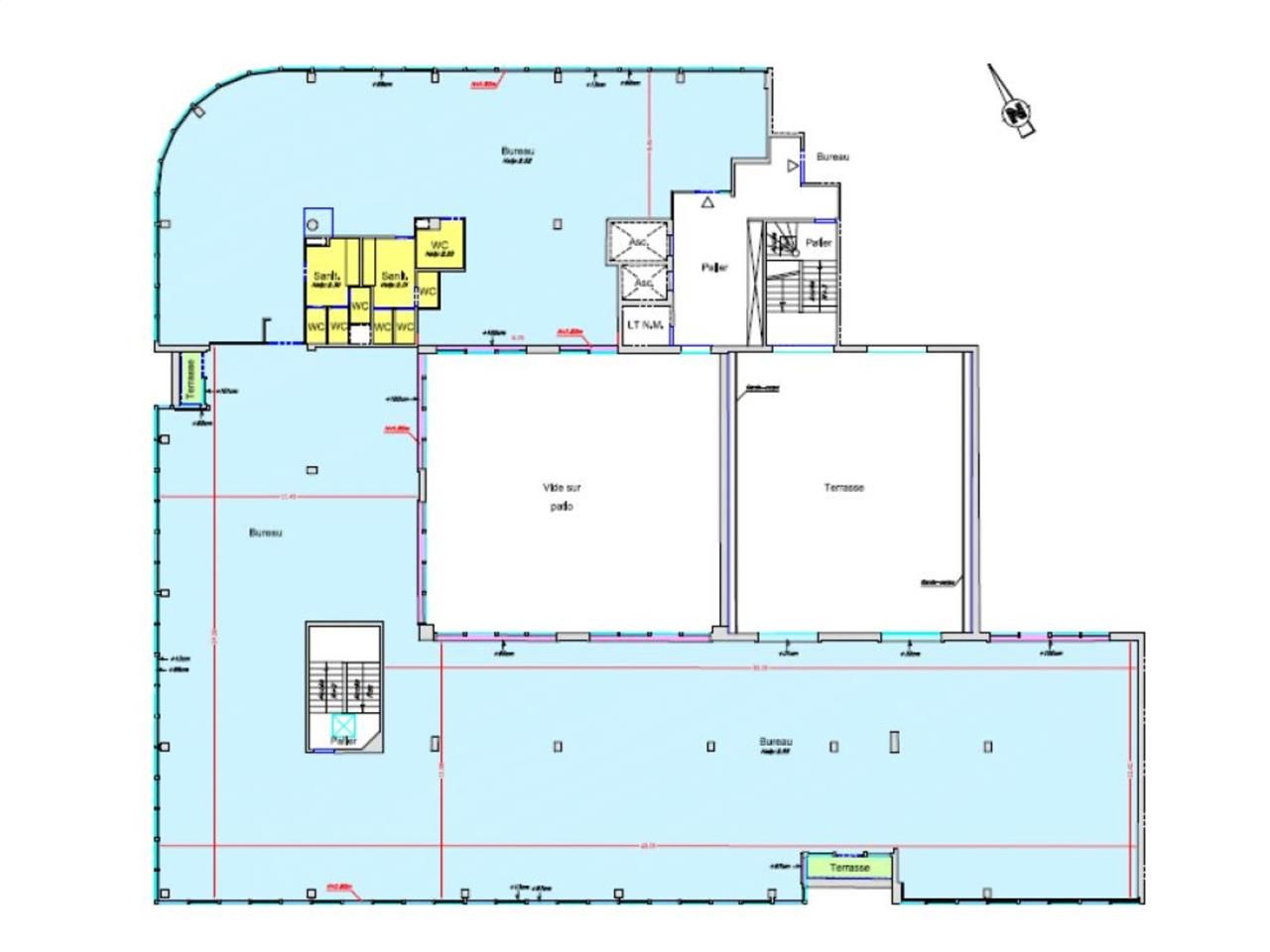
2 637 m² divisible dès 804 m²
HT HC
Location bureau - 2637 m²
Vélizy-Villacoublay (78140)
Dernière mise à jour : Il y a 9 mois
VELIZY VALLEY _ DAME ROSE
A louer, bureaux à Vélizy (78).
Au sein du pôle INOVEL Parc, environnement tertiaire dynamique, nous vous proposons 2 637 m² de bureaux à louer, divisibles à partir de 804 m².
L'immeuble Avenir propose des plateaux lumineux, climatisés, fibrés et fonctionnels, avec terrasse privative au 4ème étage. Le hall d'accueil va être entièrement rénové pour offrir un cadre plus contemporain. Le site, sécurisé avec PC sécurité, dispose d'un accès PMR et d'un restaurant interentreprises.
Situé à proximité immédiate du Tram T6 (Inovel Parc Nord), du RER C (Chaville-Vélizy), et des axes A86/N118, il bénéficie d'une excellente desserte. Egalement à toute proximité de la forêt domaniale de Meudon, vous pourrez profiter des nombreux sentiers forestiers pour vous détendre sur la pause déjeuner.
Une opportunité idéale pour les entreprises en quête de confort, d'accessibilité et de modularité dans un secteur en plein essor.
Impôt Foncier : 12 €//m²/an
Régime Fiscal : T.V.A.
Honoraires : 15 % HT du loyer annuel HT/HC à la charge du preneur.
Taxe Bureau : 11,87 €/m²/an
Information sur le Bail :
TASS : 2.60 euros/m² HT
Prestations :
Accessibilité:
Tram Inovel Parc Nord (T6)
Bus La Cheminée (6124, 60, 6140, 6145, 7807, 291, 6134), Résidence Les Bois (6123)
Accès routier A86, N118
Les informations sur les risques auxquels ce bien est exposé sont disponibles sur le site Géorisques : www.georisques.gouv.fr
A louer, bureaux à Vélizy (78).
Au sein du pôle INOVEL Parc, environnement tertiaire dynamique, nous vous proposons 2 637 m² de bureaux à louer, divisibles à partir de 804 m².
L'immeuble Avenir propose des plateaux lumineux, climatisés, fibrés et fonctionnels, avec terrasse privative au 4ème étage. Le hall d'accueil va être entièrement rénové pour offrir un cadre plus contemporain. Le site, sécurisé avec PC sécurité, dispose d'un accès PMR et d'un restaurant interentreprises.
Situé à proximité immédiate du Tram T6 (Inovel Parc Nord), du RER C (Chaville-Vélizy), et des axes A86/N118, il bénéficie d'une excellente desserte. Egalement à toute proximité de la forêt domaniale de Meudon, vous pourrez profiter des nombreux sentiers forestiers pour vous détendre sur la pause déjeuner.
Une opportunité idéale pour les entreprises en quête de confort, d'accessibilité et de modularité dans un secteur en plein essor.
| Étage | Type | Surfaces | Dispo | Loyer | Charges | Type de bailRév. annuelle |
|---|---|---|---|---|---|---|
| 4 | Bureaux | 843 | Immédiate | 150 HT/HC/m²/an | 50 HT/m²/an | 3-6-9 ansSur l'indice ILAT |
| 4 | Bureaux | 804 | Immédiate | 150 HT/HC/m²/an | 50 HT/m²/an | 3-6-9 ansSur l'indice ILAT |
| 1 | Bureaux | 990 | Immédiate | 150 HT/HC/m²/an | 50 HT/m²/an | 3-6-9 ansSur l'indice ILAT |
| Etage -2 | Arch./Reser. | 199 | Immédiate | 60 HT/HC/m²/an | 3-6-9 ansSur l'indice ILAT | |
| pkg Ext | Parkings | Immédiate | 300 HT/HC/U/an | 3-6-9 ansSur l'indice ILAT | ||
| SS | Parkings | Immédiate | 700 HT/HC/U/an | 3-6-9 ansSur l'indice ILAT |
Impôt Foncier : 12 €//m²/an
Régime Fiscal : T.V.A.
Honoraires : 15 % HT du loyer annuel HT/HC à la charge du preneur.
Taxe Bureau : 11,87 €/m²/an
Information sur le Bail :
TASS : 2.60 euros/m² HT
Prestations :
- Inovel Parc, est un des principaux pôles tertiaires de l'ouest parisien
- Il bénéficie d'une excellente accessibilité grâce au tramway T6, aux axes A86 et N118, ainsi qu'à la proximité immédiate du centre commercial Vélizy 2 et de nombreux sièges sociaux internationaux
- L'immeuble Vélizy Valley bénéficie d'un hall d'accueil, d'un PC sécurité, d'un restaurant Inter Entreprises et de 2 duplex d'ascenseurs
- Plateaux lumineux et fonctionnels
- Climatisation réversible
- Fibre optique
- Site sécurisé
- Terrasse privative au 4ème étage
- Accès PMR
Accessibilité:
Tram Inovel Parc Nord (T6)
Bus La Cheminée (6124, 60, 6140, 6145, 7807, 291, 6134), Résidence Les Bois (6123)
Accès routier A86, N118
Les informations sur les risques auxquels ce bien est exposé sont disponibles sur le site Géorisques : www.georisques.gouv.fr
95 Parking(s) intérieur(s) 5 Parking(s) extérieur(s)
Voir plus
Afficher les consommations énergétiques
Localisation et transport aux alentours
- Inovel Parc Nord378m (6min à pied)6
Favoris
Exporter
Appeler
Contacter
Signaler cette annonce










