Leader mondial des services dédiés à l'immobilier d'entreprise, Cushman & Wakefield accompagne ses clients dans la transformation de leurs modes de travail, de consommation et de vie. Nos 43 000 co ...
En savoir plus

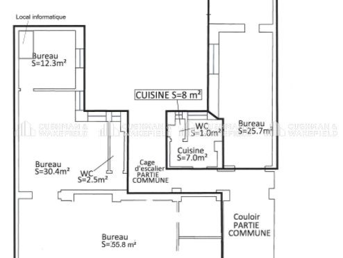
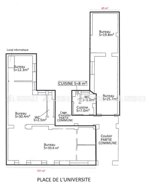
146 m² divisible dès 45 m²
HT HC
Location bureau - 146 m²
Strasbourg (67000)
Dernière mise à jour : Il y a 3 mois
Bureaux en trés bon état, disponibles au coeur du quartier de la Neustadt à proximité de la place de la République. Surface en rez-de-chaussée avec belle visibiité commerciale et accès direct depuis l'extérieur pour le lot de 101 m². Situé au coeur du quartier emblématique de la Neustadt, inscrit au patrimoine mondial de l''UNESCO, Ce bien bénéficie d''un environnement exceptionnel, à la fois prestigieux et fonctionnel. Face aux btiments historiques de l''Université de Strasbourg et à proximité immédiate du centre-ville, cet emplacement allie patrimoine architectural, dynamisme urbain et accessibilité optimale. Le secteur profite d''une excellente desserte en transports en commun : les lignes de tram C, E et F desservent directement les arrêts Université et Observatoire, à deux pas de l''immeuble. Plusieurs lignes de bus complètent ce maillage, tandis que la gare centrale est accessible en une quinzaine de minutes et l''aéroport international de Strasbourg-Entzheim en une vingtaine. L''environnement encourage également les mobilités douces grce à un vaste réseau cyclable et aux politiques urbaines favorisant les déplacements durables. Sur le plan économique, le quartier s''inscrit dans un écosystème tertiaire et universitaire dynamique. L''Université de Strasbourg, les Hôpitaux Universitaires et les nombreuses institutions de recherche et d''enseignement supérieur génèrent un flux constant d''étudiants, de chercheurs et de professionnels. La proximité du quartier européen (Parlement européen, Conseil de l''Europe, Cour européenne des droits de l''homme) renforce encore l''attractivité du secteur pour les entreprises à vocation internationale. L''immeuble, construit à la fin du XIX? siècle par Edouard et Andreas Ess, témoigne de l''architecture soignée de la Neustadt. Sa facade de caractère et sa visibilité sur un axe passant en font un emplacement de premier ordre pour des bureaux, cabinets ou sociétés de services souhaitant allier image de marque et cadre de travail agréable. Entouré de commerces, de restaurants et de services, le 10, place de l''Université offre un environnement à la fois prestigieux, central et convivial, idéal pour accueillir une activité professionnelle durable au coeur de Strasbourg. N'hésitez pas à nous contacter ! Cushman & Wakefield Strasbourg et plus particulièrement son département bureaux, est à votre entière disposition pour vous apporter plus de précisions concernant ces bureaux à louer . Sol : parquet . Murs peints . Faux plafonds avec luminaires encastrés . Chauffage collectif et climatisation par système réversible en splits muraux . Double vitrage . Sanitaires privatifs Cloisonnement : 101 m² : 3 bureaux - 1 open space - 1 local technique - 1 kitchenette - 1 cave en sous-sol 45 m² : 2 espaces - 1 localt kitchenette/sanitaire Bus : lignes 10, 15, 30, 72 et L6 arrêt Brant Université Tram : lignes C, E, F arrêt Gallia
Voir plus
Afficher les consommations énergétiques
Surfaces divisibles : 2
| Surface | LoyerHT/HC/m²/an | Étage / Batiment |
| 45 m² | 145 € | 0 |
| 101 m² | 250 € | 0 |
Localisation et transport aux alentours
Favoris
Exporter
Appeler
Contacter
Signaler cette annonce










