L’agence CBRE Nice-Sophia Antipolis conseille et accompagne les chefs d’entreprise dans leurs projets immobiliers quels que soient leur taille et leur secteur d’activité. Spécialistes de la transac ...
En savoir plus

302 m²
HT HC
Location bureau - 302 m²
Sophia Antipolis (06560)
Dernière mise à jour : Aujourd'hui
A louer bureaux cloisonnés - Les Bouillides Sophia Antipolis
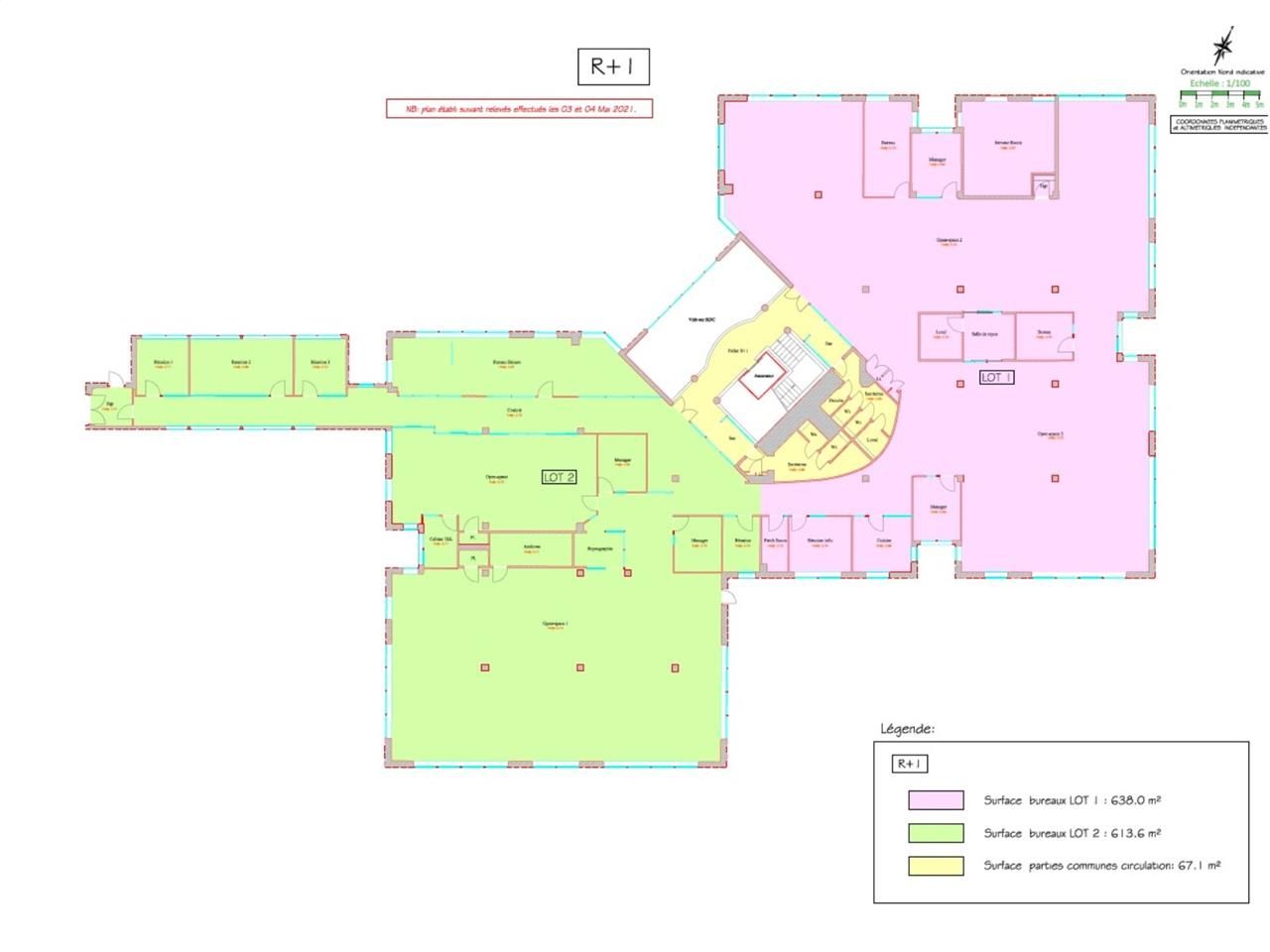
Situé sur la technopole de Sophia Antipolis (06560), CBRE vous propose à la location cet espace de bureaux d'environ 302 m². Aménagé cloisonné et climatisé, cet espace bénéficie également de parkings et est situé au 1er étage avec ascenseur. Disponibles immédiatement, ces bureaux représentent une excellente opportunité pour développer votre activité à Sophia Antipolis.
Nombreux services de proximité à moins de 5 mn : centre de vie de Garbejaire : bureau de poste, restaurants, snacks, centre médical, pharmacie, transports en commun. Il est également situé à proximité de la gare routière des Messugues.
Vous êtes intéressés par ces bureaux ? Contactez-nous dès maintenant pour organiser une visite personnalisée et obtenir toutes les informations essentielles à la réussite de votre projet immobilier.
Accessibilité :
Autoroute A8 à 10 mn (sortie 44)
Aéroport international de Nice à 20 mn
Bus : réseau interurbain ENVIBUS & ZOU - Bus-tram Antibes/Sophia
Gare routière des Messugues à 5 mn
Impôt Foncier : 26 €/HT/m²
Régime Fiscal : T.V.A.
Dépôt de garantie : 3 mois de loyer HT/HC
Paiement Loyer : trimestriel
Honoraires : 15% HT du loyer annuel HT/HC à la charge du preneur
Taxe Bureau : 0,94 €/m²/an
Prestations :
Accessibilité:
Bus Réseau interurbain
Autoroute A8 à 10 mn
Aeroport International Nice à 20 mn
La Poste Bureau de Garbejaire
Les informations sur les risques auxquels ce bien est exposé sont disponibles sur le site Géorisques : www.georisques.gouv.fr
Situé sur la technopole de Sophia Antipolis (06560), CBRE vous propose à la location cet espace de bureaux d'environ 302 m². Aménagé cloisonné et climatisé, cet espace bénéficie également de parkings et est situé au 1er étage avec ascenseur. Disponibles immédiatement, ces bureaux représentent une excellente opportunité pour développer votre activité à Sophia Antipolis.
Nombreux services de proximité à moins de 5 mn : centre de vie de Garbejaire : bureau de poste, restaurants, snacks, centre médical, pharmacie, transports en commun. Il est également situé à proximité de la gare routière des Messugues.
Vous êtes intéressés par ces bureaux ? Contactez-nous dès maintenant pour organiser une visite personnalisée et obtenir toutes les informations essentielles à la réussite de votre projet immobilier.
Accessibilité :
Autoroute A8 à 10 mn (sortie 44)
Aéroport international de Nice à 20 mn
Bus : réseau interurbain ENVIBUS & ZOU - Bus-tram Antibes/Sophia
Gare routière des Messugues à 5 mn
| Étage | Type | Surfaces | Dispo | Loyer | Charges | Type de bailRév. annuelle |
|---|---|---|---|---|---|---|
| 1 | Bureaux | 302 | Immédiate | 140 m²/an HT HC | 40 HT/m²/an | 3-6-9-12 ansIndice ILAT |
Impôt Foncier : 26 €/HT/m²
Régime Fiscal : T.V.A.
Dépôt de garantie : 3 mois de loyer HT/HC
Paiement Loyer : trimestriel
Honoraires : 15% HT du loyer annuel HT/HC à la charge du preneur
Taxe Bureau : 0,94 €/m²/an
Prestations :
- Bureaux aménagés cloisonnés
- Climatisation réversible pour des bureaux confortables, adaptés à toutes les saisons
- Éclairage encastré en faux-plafond, pour une ambiance lumineuse homogène
- Sol moquette
- Cuisine équipée
- Faux-plancher technique facilitant le passage des câblages et l'adaptabilité des postes de travail
- Avantages :
- Sanitaires privatifs
- Ascenseur
- Parkings extérieurs et s/sol
- Immeuble de bureaux en R+1 situé quartier LES BOUILLIDES
- Accessibilité facile pour vos collaborateurs et clients.
- L'environnement est dynamique et innovant, entouré de nombreuses entreprises de haute technologie, de centres de recherche et d'universités.
- Immeuble indépendant
Accessibilité:
Bus Réseau interurbain
Autoroute A8 à 10 mn
Aeroport International Nice à 20 mn
La Poste Bureau de Garbejaire
Les informations sur les risques auxquels ce bien est exposé sont disponibles sur le site Géorisques : www.georisques.gouv.fr
Voir plus
Afficher les consommations énergétiques
Favoris
Exporter
Appeler
Contacter
Signaler cette annonce
