Conseil en immobilier d'entreprise, Cushman & Wakefield est un acteur incontournable au rayonnement international. Cushman & Wakefield offre des solutions dans toutes les étapes que comporte un p ...
En savoir plus





1 023 m² divisible dès 327 m²
HT HC
CARNOT PLAZA - Location bureau - 1023 m²
Massy (91300)
Dernière mise à jour : Il y a 2 mois
CARNOT PLAZA
Immeuble CARNOT PLAZA
A louer, bureaux à Massy.
Nous vous proposons à la location deux surfaces de bureaux, idéalement situées au sein de Carnot Plaza, un ensemble immobilier récent de 8 400 m².
Situé sur l'artère principale de Massy, ce site bénéficie d'une excellente accessibilité grâce à sa proximité immédiate avec les gares RER B et C, le TGV de Massy, l'Aéroport d'Orly ainsi que les autoroutes A6 et A10.
Les bureaux, entièrement climatisés, offrent un cadre de travail optimal et des prestations de qualité. Le bâtiment est conçu pour répondre aux besoins des entreprises avec des équipements modernes incluant un faux-plancher technique, un ascenseur, un accès pour les personnes à mobilité réduite et un local vélo.
Le site bénéficie également de solutions de stationnement avec des parkings en sous-sol. Pour plus de flexibilité, les utilisateurs peuvent profiter des services de conciergerie digitale "Week'in", incluant pressing et cordonnerie.
Venez découvrir une opportunité d'implantation stratégique à Massy dans un environnement moderne et dynamique.
Pour toute demande d'information ou pour organiser une visite, contactez -nous !
Impôt Foncier : 28,67 €//m²/an
Régime Fiscal : T.V.A.
Dépôt de garantie : 3 mois de loyer HT/HC
Honoraires : 15 % HT du loyer annuel HT/HC à la charge du preneur.
Taxe Bureau : 11,87 €/m²/an
Information sur le Bail :
Les charges comprennent l'électricité y compris privative (pour 12,06 euros/m²/an HT) Prime assurance en sus = 1,41 euros HT/m²/an
Prestations :
Accessibilité:
RER Massy-Palaiseau (RER B - C)
SNCF Massy
Aéroport Aéroport d'Orly
Accès routier Autoroute A6, A10
Les informations sur les risques auxquels ce bien est exposé sont disponibles sur le site Géorisques : www.georisques.gouv.fr
Immeuble CARNOT PLAZA
A louer, bureaux à Massy.
Nous vous proposons à la location deux surfaces de bureaux, idéalement situées au sein de Carnot Plaza, un ensemble immobilier récent de 8 400 m².
Situé sur l'artère principale de Massy, ce site bénéficie d'une excellente accessibilité grâce à sa proximité immédiate avec les gares RER B et C, le TGV de Massy, l'Aéroport d'Orly ainsi que les autoroutes A6 et A10.
Les bureaux, entièrement climatisés, offrent un cadre de travail optimal et des prestations de qualité. Le bâtiment est conçu pour répondre aux besoins des entreprises avec des équipements modernes incluant un faux-plancher technique, un ascenseur, un accès pour les personnes à mobilité réduite et un local vélo.
Le site bénéficie également de solutions de stationnement avec des parkings en sous-sol. Pour plus de flexibilité, les utilisateurs peuvent profiter des services de conciergerie digitale "Week'in", incluant pressing et cordonnerie.
Venez découvrir une opportunité d'implantation stratégique à Massy dans un environnement moderne et dynamique.
Pour toute demande d'information ou pour organiser une visite, contactez -nous !
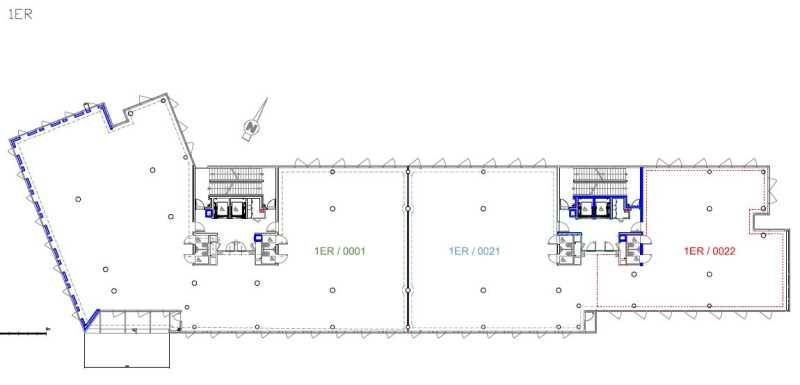
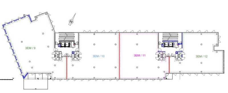
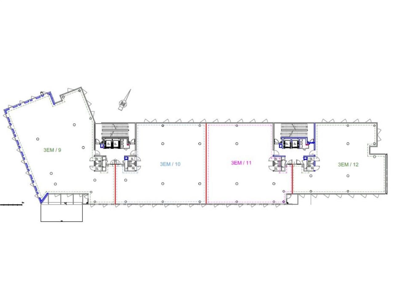
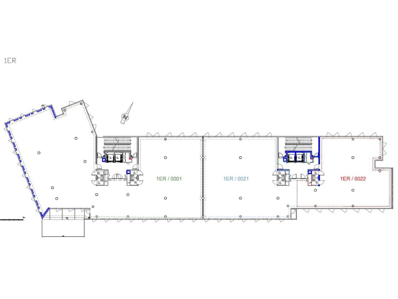
| Étage | Type | Surfaces | Dispo | Loyer | Charges | Type de bailRév. annuelle |
|---|---|---|---|---|---|---|
| 3 | Bureaux | 327 | Immédiate | 195 HT/HC/m²/an | 58,22 HT/m²/an | 3-6-9 ansSur l'indice ILAT |
| 1 | Bureaux | 696 | Immédiate | 195 HT/HC/m²/an | 58,22 HT/m²/an | 3-6-9 ansSur l'indice ILAT |
| SS | Parkings | Immédiate | 1500 HT/HC/U/an | 3-6-9 ansSur l'indice ILAT | ||
| SS | Parkings | Immédiate | 1500 HT/HC/U/an | 3-6-9 ansSur l'indice ILAT | ||
| SS | Parkings | Immédiate | 1500 HT/HC/U/an | 3-6-9 ansSur l'indice ILAT |
Impôt Foncier : 28,67 €//m²/an
Régime Fiscal : T.V.A.
Dépôt de garantie : 3 mois de loyer HT/HC
Honoraires : 15 % HT du loyer annuel HT/HC à la charge du preneur.
Taxe Bureau : 11,87 €/m²/an
Information sur le Bail :
Les charges comprennent l'électricité y compris privative (pour 12,06 euros/m²/an HT) Prime assurance en sus = 1,41 euros HT/m²/an
Prestations :
- Carnot Plaza est un ensemble immobilier de 8 400 m² situé sur l'artère principale de Massy qui mène directement aux gares RER & TGV
- Immeuble récent
- Parking public à proximité "Parcotrain" 800 places
- Accès Pers. Mobilité Réduite
- Ascenseur
- Accueil : Espace d'attente
- Restaurant Inter-Entreprises
- Cafétéria
- Parking public à proximité "Parcotrain" 800 places
- Les bureaux sont climatisés (climatisation neuve)
- Chaque étage d'env. 1 300 m² peut être divisé en 3 ou 4 lots
- Faux-plancher technique
- Parkings en sous-sol
- Local vélo
- Conciergerie digitale "Week'in" (pressing, cordonnerie ...)
- site internet : www.carnotplaza.fr
- https://wellcome.la-francaise.com/produit/bureaux-carnot-plaza/
Accessibilité:
RER Massy-Palaiseau (RER B - C)
SNCF Massy
Aéroport Aéroport d'Orly
Accès routier Autoroute A6, A10
Les informations sur les risques auxquels ce bien est exposé sont disponibles sur le site Géorisques : www.georisques.gouv.fr
25 Parking(s) en sous-sol 22 Parking(s) en sous-sol
Voir plus
Afficher les consommations énergétiques
Localisation et transport aux alentours
Favoris
Exporter
Appeler
Contacter
Signaler cette annonce










