MCarré Conseil est une agence spécialiste de l'immobilier d’entreprise du sud de l’Île-de-France (en Essonne et dans le sud de la Seine-et-Marne et du Val-De-Marne). Elle vous accompagne à chaque é ...
En savoir plus

268 m²
HT HC
Location bureau - 268 m²
Massy (91300)
Dernière mise à jour : Hier
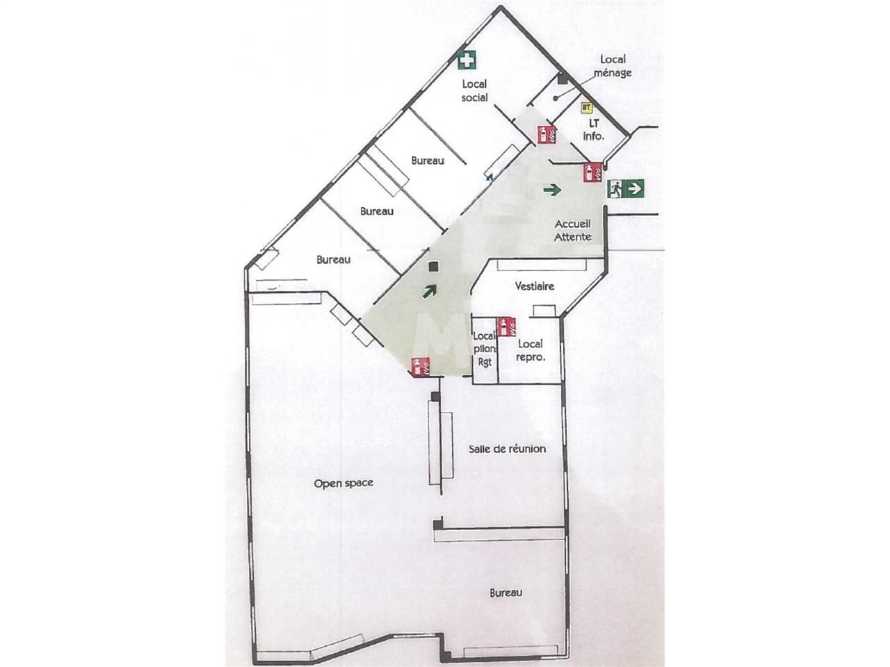
Proche de l'autoroute A10 et de la Nationale 20, dans le Parc du Moulin de Massy, nous vous proposons à la location un lot à usage de bureaux développant 268 m² environ.
Impôt Foncier : 18,78 €/HT/m²/an
Régime Fiscal : TVA
Dépôt de garantie : 3 mois de loyer HT/HC
Honoraires : 15% HT du loyer annuel HT HC
Taxe Bureau : 7,08 €/m²/an
Information sur le Bail :
Loyer annuel : 34 840 euros HT/HC Les charges comprennent l'assurance, l'entretien de l'immeuble et des parties communes, entretien désenfumage, l'eau, l'électricité commune, charges et travaux divers
Prestations :
Accessibilité:
Autoroute Autoroute A10
Autoroute Autoroute A6
Route Nationale 20
Tgv TGV Gare de Massy
RER RER B & C : Massy-Palaiseau
Bus Zac du Moulin (Ligne 2)
Aeroport Aéroport d'Orly
Les informations sur les risques auxquels ce bien est exposé sont disponibles sur le site Géorisques : www.georisques.gouv.fr
| Étage | Type | Surfaces | Dispo | Loyer | Charges | Type de bailRév. annuelle |
|---|---|---|---|---|---|---|
| 1 | Bureaux | 268 | Immédiate | 130 m²/an HT HC | 42,4 HT/m²/an | 3/6/9 ansIndice ILAT |
| Parkings | Indice ILAT |
Impôt Foncier : 18,78 €/HT/m²/an
Régime Fiscal : TVA
Dépôt de garantie : 3 mois de loyer HT/HC
Honoraires : 15% HT du loyer annuel HT HC
Taxe Bureau : 7,08 €/m²/an
Information sur le Bail :
Loyer annuel : 34 840 euros HT/HC Les charges comprennent l'assurance, l'entretien de l'immeuble et des parties communes, entretien désenfumage, l'eau, l'électricité commune, charges et travaux divers
Prestations :
- Sécurité : Interphone - visiophone
- RIE sur le parc
- Bureaux en bon état général
- Climatisation réversible
- Chauffage urbain
- Fibre optique
- Courant fort / faible
- Baie de brassage
- Plinthes périphériques RJ45
- Cloisonnement vitré toute hauteur
- Eclairage LED - Détecteur de présence
- Possibilité de kitchenette
- Sanitaires H/F en parties communes
Accessibilité:
Autoroute Autoroute A10
Autoroute Autoroute A6
Route Nationale 20
Tgv TGV Gare de Massy
RER RER B & C : Massy-Palaiseau
Bus Zac du Moulin (Ligne 2)
Aeroport Aéroport d'Orly
Les informations sur les risques auxquels ce bien est exposé sont disponibles sur le site Géorisques : www.georisques.gouv.fr
Voir plus
Afficher les consommations énergétiques
Localisation et transport aux alentours
Favoris
Exporter
Appeler
Contacter
Signaler cette annonce
