Conseil en immobilier d'entreprise, Cushman & Wakefield est un acteur incontournable au rayonnement international. Cushman & Wakefield offre des solutions dans toutes les étapes que comporte un p ...
En savoir plus



608 m²
HT HC
Location bureau - 608 m²
Lyon 8 (69008)
Dernière mise à jour : Il y a 3 jours
Bureaux atypique à louer Lyon 8ème!
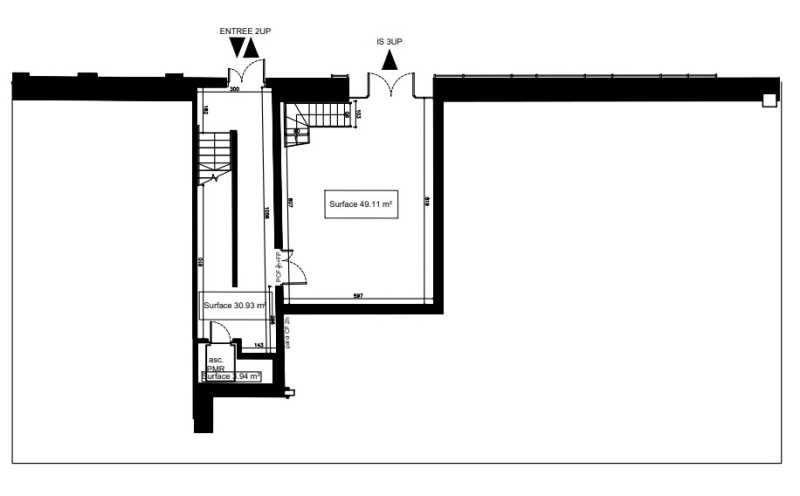
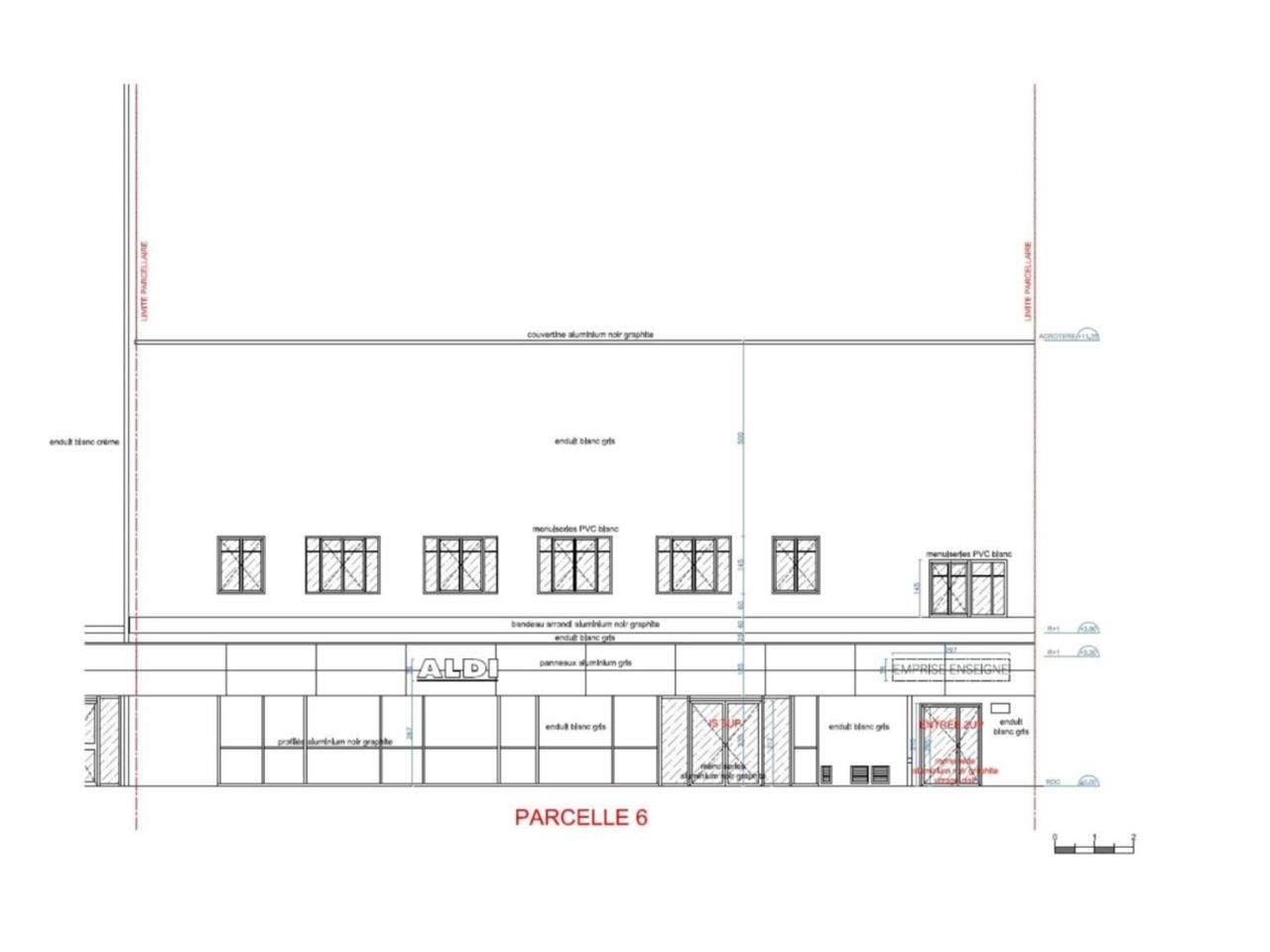
Cushman & Wakefield vous propose à la location ou à la vente des bureaux qui ont été entièrement rénovées, d'une surface totale de 739,81 m², répartis sur deux niveaux : 83,98 m² au rez-de-chaussée et 655,83 m² eu premier étage relié par un escalier intérieur. Idéalement situés Avenue Berthelot, au coeur d'un quartier dynamique en plein essor, ces bureaux séduisent par leur architecture atypique et leur belle hauteur sous plafond, offrant un cadre de travail lumineux et spacieux.
Pensés pour allier modernité et fonctionnalité, ces espaces sont conçus pour optimiser le confort et la productivité de vos équipes. L'immeuble bénéficie d'une excellente desserte en transports et d'un environnement riche en services et commodités, facilitant ainsi le quotidien des collaborateurs.
Ne manquez pas cette opportunité unique d'implanter votre activité dans un cadre de qualité, au sein d'un quartier attractif et en pleine transformation. Contactez-nous dès maintenant pour organiser une visite et découvrir tout le potentiel de ces bureaux.
Impôt Foncier : 5379,84 €// an
Honoraires : 15 % HT du loyer annuel HT/HC à la charge du preneur.
Prestations :
Accessibilité:
Bus Lignes C16 - C25 - 26-34 à proximité
Tram T2-T4-T6
Accès routier Avenue Berthelot
Accès routier Avenue Jean Mermoz
Accès routier Avenue Paul Santy
Accès routier Bd des Etats-Unis
Accès routier A43
Les informations sur les risques auxquels ce bien est exposé sont disponibles sur le site Géorisques : www.georisques.gouv.fr
Cushman & Wakefield vous propose à la location ou à la vente des bureaux qui ont été entièrement rénovées, d'une surface totale de 739,81 m², répartis sur deux niveaux : 83,98 m² au rez-de-chaussée et 655,83 m² eu premier étage relié par un escalier intérieur. Idéalement situés Avenue Berthelot, au coeur d'un quartier dynamique en plein essor, ces bureaux séduisent par leur architecture atypique et leur belle hauteur sous plafond, offrant un cadre de travail lumineux et spacieux.
Pensés pour allier modernité et fonctionnalité, ces espaces sont conçus pour optimiser le confort et la productivité de vos équipes. L'immeuble bénéficie d'une excellente desserte en transports et d'un environnement riche en services et commodités, facilitant ainsi le quotidien des collaborateurs.
Ne manquez pas cette opportunité unique d'implanter votre activité dans un cadre de qualité, au sein d'un quartier attractif et en pleine transformation. Contactez-nous dès maintenant pour organiser une visite et découvrir tout le potentiel de ces bureaux.
| Étage | Type | Surfaces | Dispo | Loyer | Charges | Type de bailRév. annuelle |
|---|---|---|---|---|---|---|
| R+1 | Bureaux | 531,22 | 170 HT/HC/m²/an | |||
| RdC | Bureaux | 76,98 | 170 HT/HC/m²/an | |||
| pkg Ext | Parkings |
Impôt Foncier : 5379,84 €// an
Honoraires : 15 % HT du loyer annuel HT/HC à la charge du preneur.
Prestations :
- Ascenseur existant non fonctionnel
- Plinthes périphériques
- Bureaux entièrement rénovés
- Belle hauteur sous plafond
- Sol PVC imitation parquet
- Climatisation réversible
- Quelques travaux d'aménagement à prévoir :
- Surface carrez : 608,20 m²
- Surface au sol " 678,80 m²
- Surface RDC : 76,98 m²
Accessibilité:
Bus Lignes C16 - C25 - 26-34 à proximité
Tram T2-T4-T6
Accès routier Avenue Berthelot
Accès routier Avenue Jean Mermoz
Accès routier Avenue Paul Santy
Accès routier Bd des Etats-Unis
Accès routier A43
Les informations sur les risques auxquels ce bien est exposé sont disponibles sur le site Géorisques : www.georisques.gouv.fr
Voir plus
Afficher les consommations énergétiques
Localisation et transport aux alentours
Favoris
Exporter
Appeler
Contacter
Signaler cette annonce










