Besoin d'un conseil en immobilier ? Nous sommes une équipe dédiée à 100% à nos clients utilisateurs avec des services variés (stratégie immobilière, recherche immobilière, renégociation de bail, dé ...
En savoir plus

780 m² divisible dès 181 m²
HT HC
LES TOPAZES - Location bureau - 780 m²
Lyon 6 (69006)
Dernière mise à jour : Il y a 11 jours
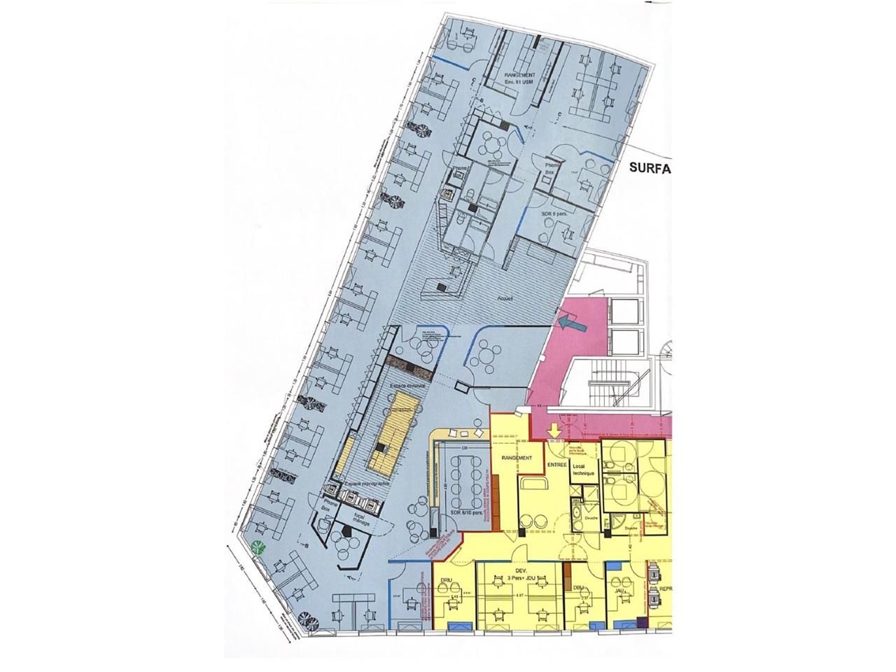
Bureaux aménagés à deux pas des Brotteaux
Immeuble LES TOPAZES
Savills vous propose à la location des bureaux aménagés à deux pas des Brotteaux.
Ces bureaux "prêts à l'emploi" offrent une adresse au coeur du 6e arrondissement, à 5 minutes du métro B, ainsi que 8 places de parking, dont certains électrifiés.
Contacter dès à présent notre consultant pour plus d'informations.
Régime Fiscal : T.V.A.
Dépôt de garantie : 3 mois de loyer HT HC
Honoraires : 15 % HT du loyer annuel HT HC à la charge du preneur
Information sur le Bail :
Impôt foncier compris dans les charges Possibilité de bail professionnel (6 ans)
Prestations :
Accessibilité:
Bus Bus N°C1 et N°C6 "Vitton - Belges"
Bus Bus N°C2, N°C16, N°C17, N°27, N°37, N°70, N°PL1 "Charpennes"
Métro Métro A et Métro B "Charpennes "
Tramway Tramway T1 et T4 "Charpennes"
Les informations sur les risques auxquels ce bien est exposé sont disponibles sur le site Géorisques : www.georisques.gouv.fr
Immeuble LES TOPAZES
Savills vous propose à la location des bureaux aménagés à deux pas des Brotteaux.
Ces bureaux "prêts à l'emploi" offrent une adresse au coeur du 6e arrondissement, à 5 minutes du métro B, ainsi que 8 places de parking, dont certains électrifiés.
Contacter dès à présent notre consultant pour plus d'informations.
| Étage | Type | Surfaces | Dispo | Loyer | Charges | Type de bailRév. annuelle |
|---|---|---|---|---|---|---|
| 5 | Bureaux | 181,3 | Immédiate | 210 m²/an/HT-HC | 66,18 m²/an HT | 3-6-9 ansILAT Indice des Loyers des Activités Tertiaires |
| RDC | Bureaux | 599 | Immédiate | 210 m²/an/HT-HC | 65,94 m²/an HT | 3-6-9 ansILAT Indice des Loyers des Activités Tertiaires |
| Parkings | Immédiate | 1500 place/an/HT-HC | 3-6-9 ansILAT Indice des Loyers des Activités Tertiaires |
Régime Fiscal : T.V.A.
Dépôt de garantie : 3 mois de loyer HT HC
Honoraires : 15 % HT du loyer annuel HT HC à la charge du preneur
Information sur le Bail :
Impôt foncier compris dans les charges Possibilité de bail professionnel (6 ans)
Prestations :
- Situation privilégiée au coeur du quartier des Brotteaux, dans le 6ème arrondissement de Lyon, avec de nombreux services au pied de l'immeuble
- Immeuble de standing
- Parties communes de bon standing
- Contrôle d'accès
- Interphone
- Climatisation réversible
- Fibre optique
- Bon état d'usage
- Faux plafond pavé led
- Sol Moquette
- Cloison vitrée toute hauteur
- Lot de 181 m²
- 1 open space
- 4 bureaux
- Sanitaires privatifs
- Lot rdc de 599 m²
- Accueil
- Bureaux cloisonnés
- Espace reprographie
- Local technique
- Sanitaires privatifs
- Faux plafonds pavé LED
- câblage informatique
- Surface RDC : 599 m²
Accessibilité:
Bus Bus N°C1 et N°C6 "Vitton - Belges"
Bus Bus N°C2, N°C16, N°C17, N°27, N°37, N°70, N°PL1 "Charpennes"
Métro Métro A et Métro B "Charpennes "
Tramway Tramway T1 et T4 "Charpennes"
Les informations sur les risques auxquels ce bien est exposé sont disponibles sur le site Géorisques : www.georisques.gouv.fr
Voir plus
Afficher les consommations énergétiques
Localisation et transport aux alentours
- Brotteaux345m (5min à pied)B
- Charpennes - Charles Hernu351m (5min à pied)AB4
- Charpennes374m (6min à pied)1
- Collège Bellecombe433m (6min à pied)14
Favoris
Exporter
Appeler
Contacter
Signaler cette annonce
