Besoin d'un conseil en immobilier ? Nous sommes une équipe dédiée à 100% à nos clients utilisateurs avec des services variés (stratégie immobilière, recherche immobilière, renégociation de bail, dé ...
En savoir plus

162 m²
HT HC
Location bureau - 162 m²
Lyon 3 (69003)
Dernière mise à jour : Il y a 3 jours
À louer - Bureaux rénovés de standing au coeur du quartier Préfecture - Lyon
Rare sur le marché : Savills Lyon vous propose à la location de superbes bureaux rénovés de 160 m², idéalement situés au coeur du quartier recherché de la Préfecture.
Ces locaux, implantés dans un immeuble de caractère avec une cour intérieure, offrent des prestations de qualité : parquet massif, belle hauteur sous plafond, et une luminosité naturelle très agréable.
À proximité immédiate des transports en commun (métro D, tram T1) et à deux pas du Quai Augagneur, cet emplacement bénéficie d'un excellent environnement de travail.
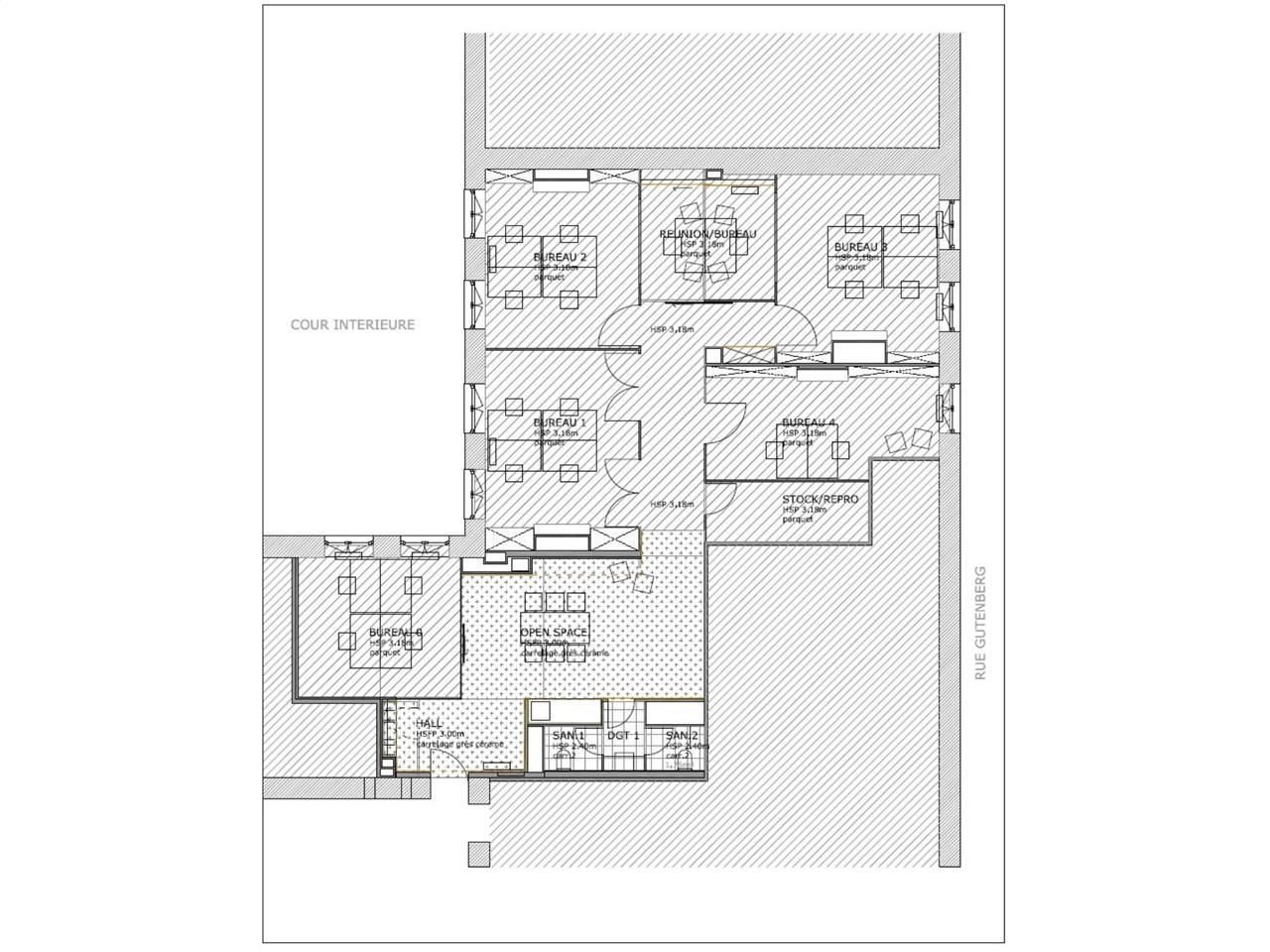
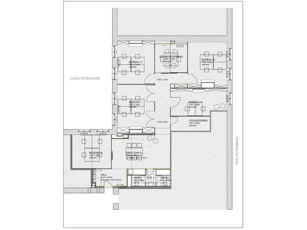
Les bureaux se composent de plusieurs espaces modulables ainsi qu'une grande cuisine aménagée.
Impôt Foncier : 15,39 €/m²/an
Régime Fiscal : T.V.A.
Dépôt de garantie : 3 mois de loyer HT HC
Honoraires : 20 % HT du loyer annuel HT HC à la charge du preneur
Prestations :
Accessibilité:
Tramway T1 " Liberté" à 3 min à pied
Métro Ligne B et D " Saxe - Gambetta" à 7 min à pied
Métro Ligne A "Bellecour" à 12 min à pied
Bus N°C9, N°C12 " Guillotière Gabriel Péri" à 4 min à pied
Bus N°C5 et N°C14 "Saxe - Paul Bert" à 5 min à pied
Velo Vélo'V "Quai Augagneur"
Les informations sur les risques auxquels ce bien est exposé sont disponibles sur le site Géorisques : www.georisques.gouv.fr
Rare sur le marché : Savills Lyon vous propose à la location de superbes bureaux rénovés de 160 m², idéalement situés au coeur du quartier recherché de la Préfecture.
Ces locaux, implantés dans un immeuble de caractère avec une cour intérieure, offrent des prestations de qualité : parquet massif, belle hauteur sous plafond, et une luminosité naturelle très agréable.
À proximité immédiate des transports en commun (métro D, tram T1) et à deux pas du Quai Augagneur, cet emplacement bénéficie d'un excellent environnement de travail.
Les bureaux se composent de plusieurs espaces modulables ainsi qu'une grande cuisine aménagée.
| Étage | Type | Surfaces | Dispo | Loyer | Charges | Type de bailRév. annuelle |
|---|---|---|---|---|---|---|
| 3 | Bureaux | 162,4 | Immédiate | 220 HT HC /m²/an | 9,23 HT/m²/an | 3-6-9 ansILAT Indice des Loyers des Activités Tertiaires |
Impôt Foncier : 15,39 €/m²/an
Régime Fiscal : T.V.A.
Dépôt de garantie : 3 mois de loyer HT HC
Honoraires : 20 % HT du loyer annuel HT HC à la charge du preneur
Prestations :
- Au coeur du quartier de la Préfecture, cet immeuble bénéficie d'une localisation stratégique, à seulement quelques pas du Quai Augagneur.
- Parfaitement connecté, le site est desservi par le tramway T1, ainsi que par les lignes de métro B et D accessibles en quelques minutes à pied. Plusieurs lignes de bus complètent cette accessibilité.
- Cour intérieure
- Ascenseur
- Pas d'accès PMR
- Fibre Optique
- Belle hauteur sous plafond
- Pavés LED
- 2 sanitaires privatifs non PMR
- Grande cuisine, espace détente
- Multiples placards de rangement
- Sol : parquet massif et carrelage
- 6 grands bureaux avec plusieurs postes (2 à 6 collaborateurs)
- Un espace de stockage, baie de brassage, call box
- RJ45 dans chaque espace
- Stores électriques dans chaque bureaux
- Gaz et chaudière individuelle, eau individuelle
- Possibilité de bénéficier d'une partie archive de 5 m²
- Parking LPA Fosse aux Ours à 1 min à pied
Accessibilité:
Tramway T1 " Liberté" à 3 min à pied
Métro Ligne B et D " Saxe - Gambetta" à 7 min à pied
Métro Ligne A "Bellecour" à 12 min à pied
Bus N°C9, N°C12 " Guillotière Gabriel Péri" à 4 min à pied
Bus N°C5 et N°C14 "Saxe - Paul Bert" à 5 min à pied
Velo Vélo'V "Quai Augagneur"
Les informations sur les risques auxquels ce bien est exposé sont disponibles sur le site Géorisques : www.georisques.gouv.fr
Voir plus
Afficher les consommations énergétiques
Localisation et transport aux alentours
Favoris
Exporter
Appeler
Contacter
Signaler cette annonce










