L’agence CBRE Lyon conseille et accompagne les chefs d’entreprise dans leurs projets immobiliers quels que soient leur taille et leur secteur d’activité. Spécialistes de la transaction de bureaux, ...
En savoir plus

1 564 m² divisible dès 209 m²
HT HC
Location bureau - 1564 m²
Lyon 3 (69003)
Dernière mise à jour : Il y a 2 mois
Immeuble ELIXIR
CBRE vous propose de belles surfaces de bureaux situées dans un immeuble neuf sur l'un des axes les plus importants de la Part-Dieu, à proximité de la gare SNCF, des transports en commun et de toutes les commodités. Ce bâtiment ERP offre 1 564 m² de bureaux avec terrasses et espaces extérieurs
à chaque étage.
Situé Avenue Lacassagne, l'un des axes les plus importants du 3ème arrondissements de Lyon desservant celui-ci quasiment d'est en ouest. Le quartier regroupe à la fois de nombreux bâtiments résidentiels mais également des sièges d'entreprises, des bureaux et de nombreux commerces. Le quartier est particulièrement bien desservi par les transports en commun, assurant une très bonne connectivité avec les quartiers stratégiques de Lyon et notamment le quartier de La Part-Dieu, qu'il est possible de rejoindre en quelques minutes à pied.
Régime Fiscal : T.V.A.
Dépôt de garantie : 3 mois de loyer HT/HC
Paiement Loyer : trimestriel
Honoraires : 15% HT du loyer annuel HT/HC à la charge du preneur
Information sur le Bail :
Loyer parking: 1 700 euros/unité/HT/an
Prestations :
Accessibilité:
Bus C13, C26, 25 et 69 à 1 min
Metro Ligne B - Direction Charpennes - Gare d'Oullins à 10 min
Tramway T 3 - Direction Part-Dieu/Meyzieu à 1 min
SNCF Gare Part-Dieu - Porte Villette à 15 min à pied
Aeroport Rhône Express - Arrêt Lyon Part-Dieu Liaison avec l'aéroport Saint Exupéry en 30 min à 15 min
Autoroute Boulevard Périphérique Laurent Bonnevay à 15 min
Les informations sur les risques auxquels ce bien est exposé sont disponibles sur le site Géorisques : www.georisques.gouv.fr
CBRE vous propose de belles surfaces de bureaux situées dans un immeuble neuf sur l'un des axes les plus importants de la Part-Dieu, à proximité de la gare SNCF, des transports en commun et de toutes les commodités. Ce bâtiment ERP offre 1 564 m² de bureaux avec terrasses et espaces extérieurs
à chaque étage.
Situé Avenue Lacassagne, l'un des axes les plus importants du 3ème arrondissements de Lyon desservant celui-ci quasiment d'est en ouest. Le quartier regroupe à la fois de nombreux bâtiments résidentiels mais également des sièges d'entreprises, des bureaux et de nombreux commerces. Le quartier est particulièrement bien desservi par les transports en commun, assurant une très bonne connectivité avec les quartiers stratégiques de Lyon et notamment le quartier de La Part-Dieu, qu'il est possible de rejoindre en quelques minutes à pied.
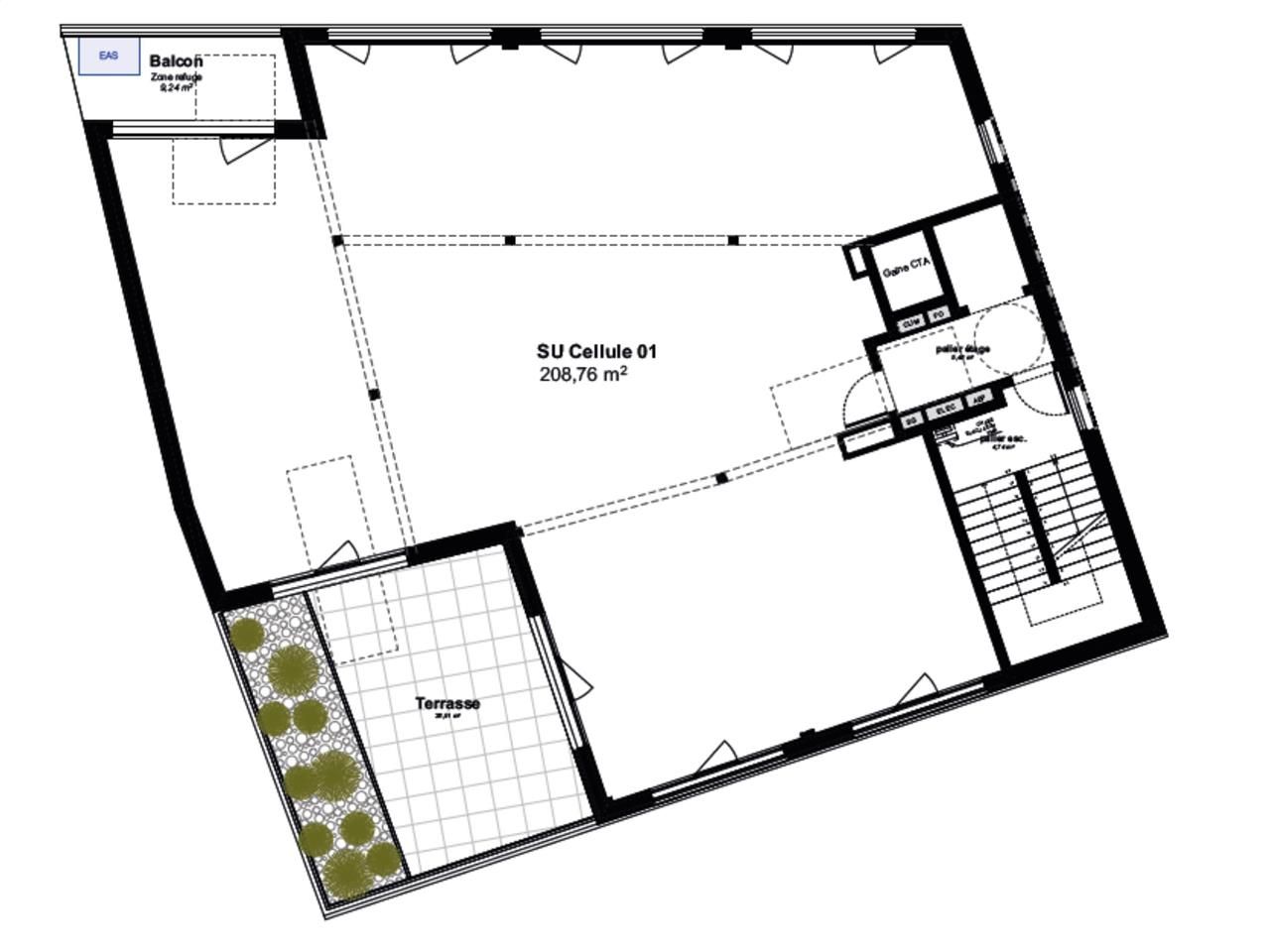
| Étage | Type | Surfaces | Dispo | Loyer | Charges | Type de bailRév. annuelle |
|---|---|---|---|---|---|---|
| RDC | Bureaux | 209,33 | 18 mois ap. déb. trx | 260 m²/an HT HC | 3-6-9 ansIndice ILAT | |
| 1 | Bureaux | 251,59 | 18 mois ap. déb. trx | 260 m²/an HT HC | 3-6-9 ansIndice ILAT | |
| 2 | Bureaux | 242,17 | 18 mois ap. déb. trx | 260 m²/an HT HC | 3-6-9 ansIndice ILAT | |
| 3 | Bureaux | 242,17 | 18 mois ap. déb. trx | 260 m²/an HT HC | 3-6-9 ansIndice ILAT | |
| 4 | Bureaux | 242,33 | 18 mois ap. déb. trx | 260 m²/an HT HC | 3-6-9 ansIndice ILAT | |
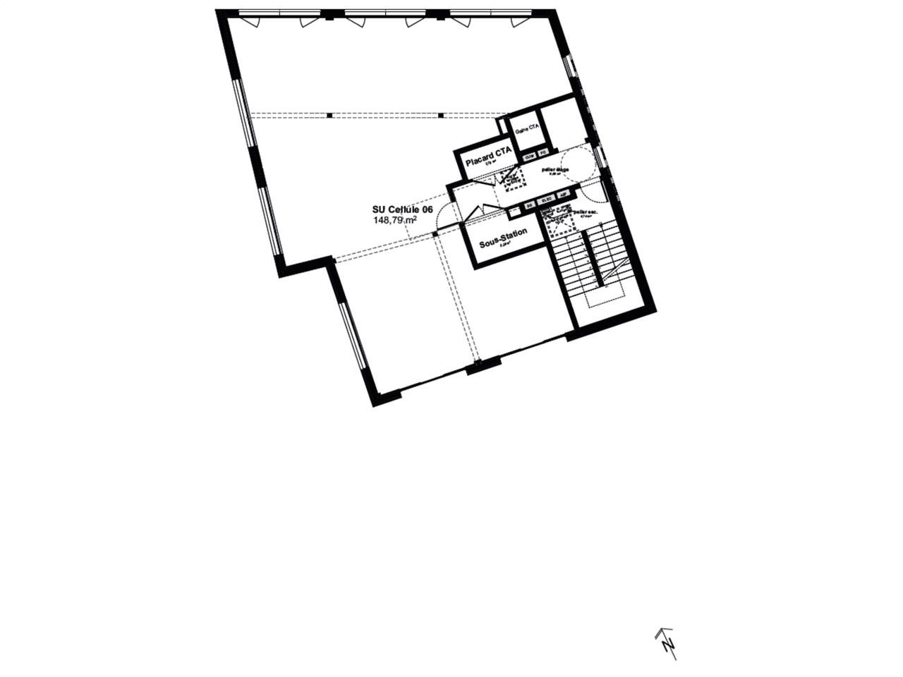
| 5 | Bureaux | 199,37 | 18 mois ap. déb. trx | 260 m²/an HT HC | 3-6-9 ansIndice ILAT | |
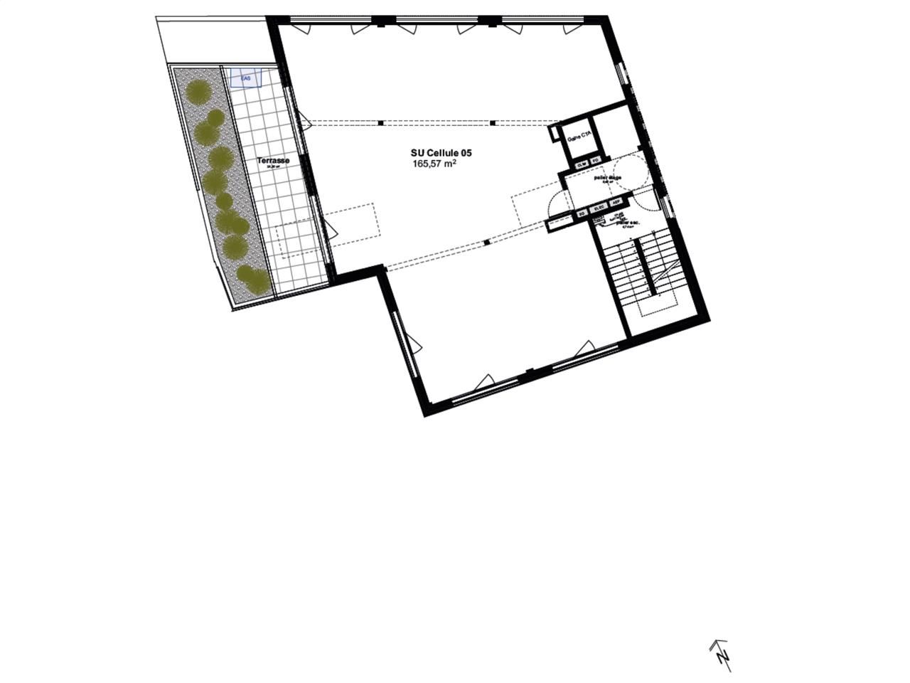
| 6 | Bureaux | 177,17 | 18 mois ap. déb. trx | 260 m²/an HT HC | 3-6-9 ansIndice ILAT |
Régime Fiscal : T.V.A.
Dépôt de garantie : 3 mois de loyer HT/HC
Paiement Loyer : trimestriel
Honoraires : 15% HT du loyer annuel HT/HC à la charge du preneur
Information sur le Bail :
Loyer parking: 1 700 euros/unité/HT/an
Prestations :
- Certifications visées: BREEAM Very Good,
- RE 2020
- Bâtiment ERP type W 5ème catégorie
- dans les étages
- Local RdC indépendant ERP
- type W 5ème catégorie
- Sanitaires hommes et femmes à
- chaque étage
- Fermeture extérieure par BSO électrique
- Chauffage/Rafraîchissement réversible
- Possibilité de sécuriser et de rendre
- indépendant chacun des étages
- Terrasses et espaces extérieurs
- à chaque étage suf au R+6
- 125 m² de balcons et terrasses
- Possibilité de créer un duplex aux 5ème et 6ème étage
- Local vélo
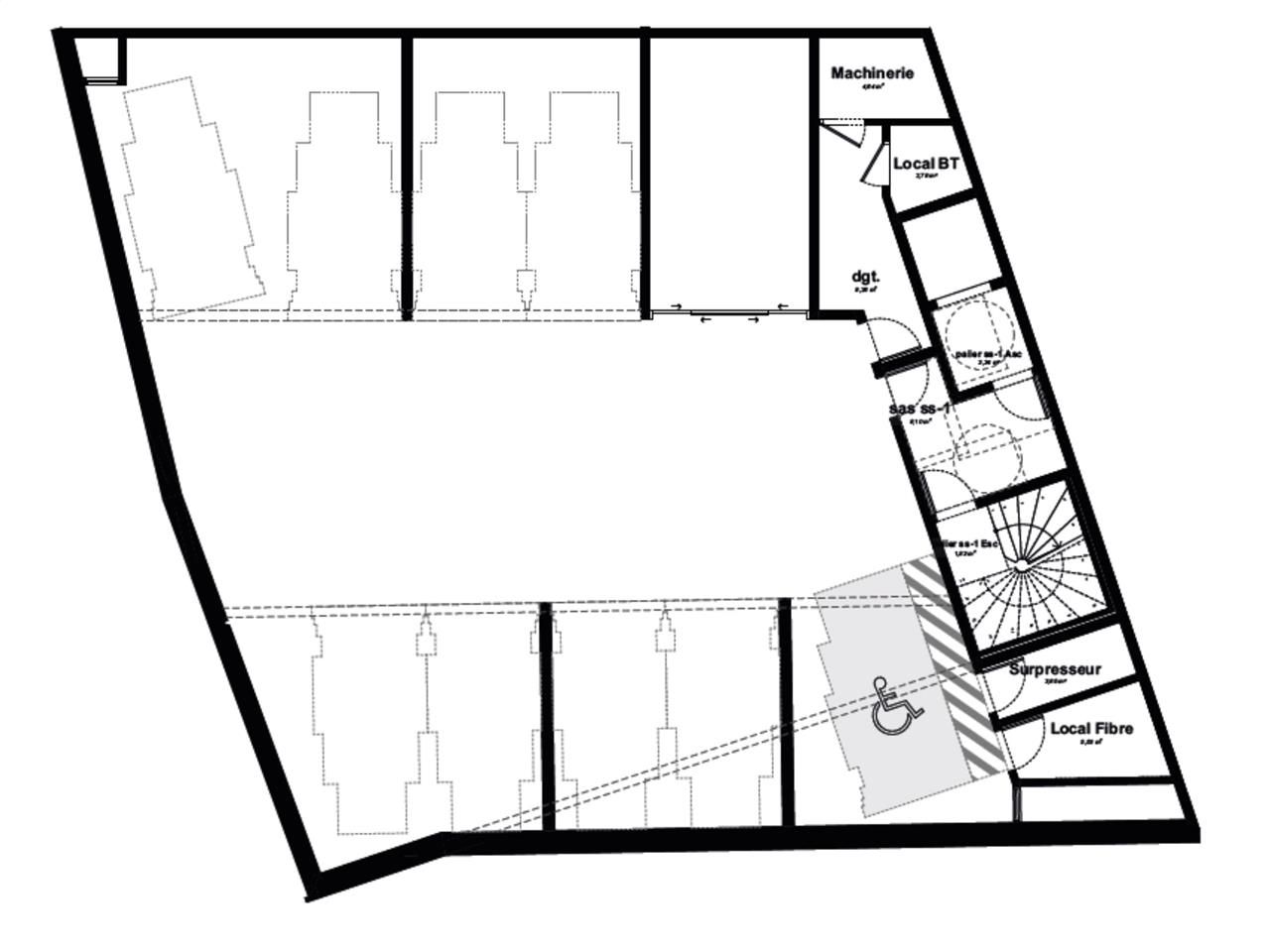
- 9 places de stationnement
- au sous-sol
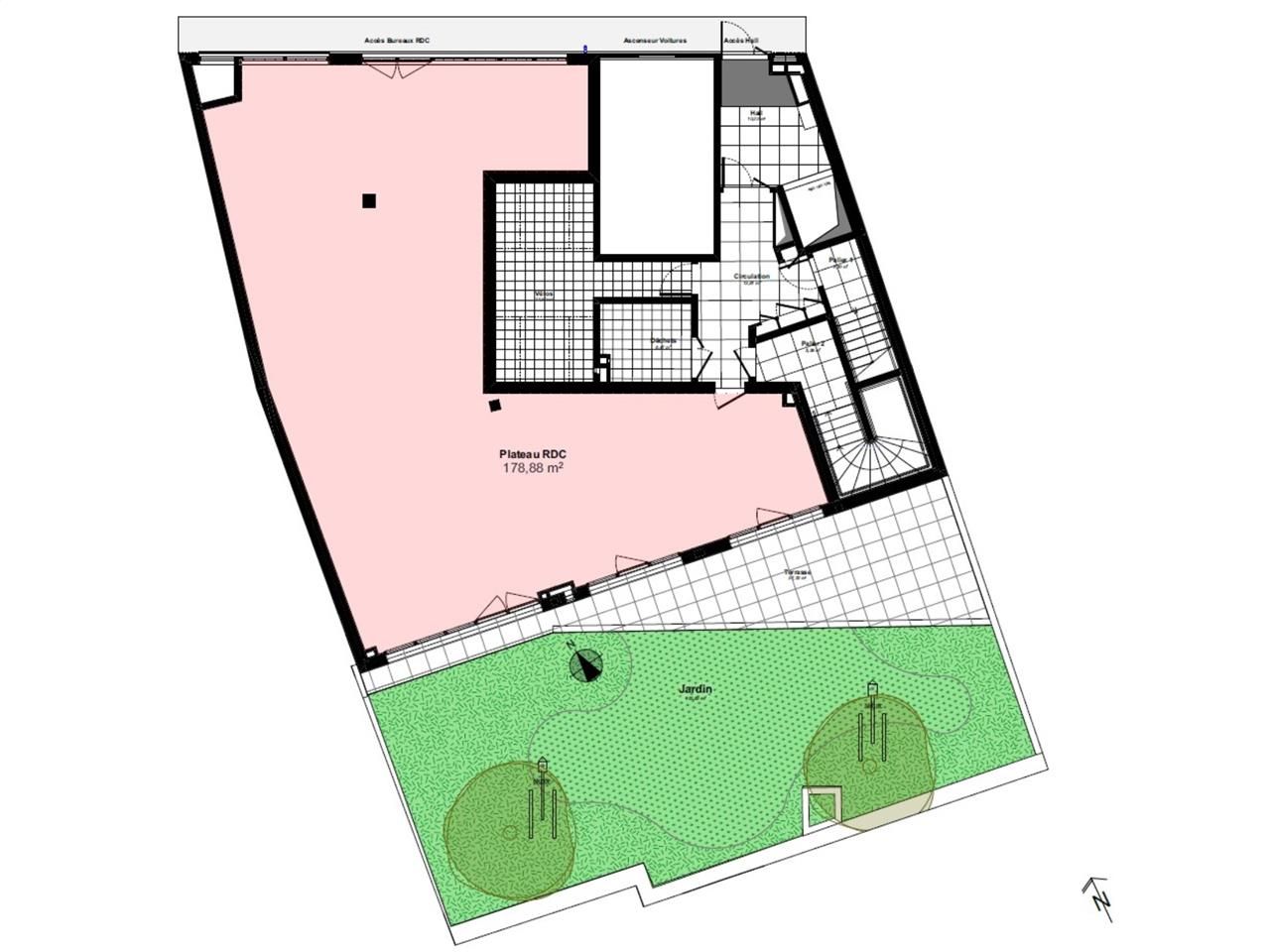
- Surface RDC : 209,33 m²
Accessibilité:
Bus C13, C26, 25 et 69 à 1 min
Metro Ligne B - Direction Charpennes - Gare d'Oullins à 10 min
Tramway T 3 - Direction Part-Dieu/Meyzieu à 1 min
SNCF Gare Part-Dieu - Porte Villette à 15 min à pied
Aeroport Rhône Express - Arrêt Lyon Part-Dieu Liaison avec l'aéroport Saint Exupéry en 30 min à 15 min
Autoroute Boulevard Périphérique Laurent Bonnevay à 15 min
Les informations sur les risques auxquels ce bien est exposé sont disponibles sur le site Géorisques : www.georisques.gouv.fr
Voir plus
Afficher les consommations énergétiques
Localisation et transport aux alentours
- Dauphiné-Lacassagne153m (2min à pied)3
- Archives Départementales613m (9min à pied)4
- Sans Souci770m (12min à pied)D
- Monplaisir-Lumière773m (12min à pied)D
- Manufacture - Montluc1.1km (17min à pied)4
- Gare Part-Dieu - Villette1.3km (19min à pied)314
- Grange Blanche1.4km (21min à pied)D25
- Jean XXIII Maryse Bastié1.4km (22min à pied)2
- Lycée Colbert1.5km (22min à pied)4
Favoris
Exporter
Appeler
Contacter
Signaler cette annonce
