Besoin d'un conseil en immobilier ? Nous sommes une équipe dédiée à 100% à nos clients utilisateurs avec des services variés (stratégie immobilière, recherche immobilière, renégociation de bail, dé ...
En savoir plus

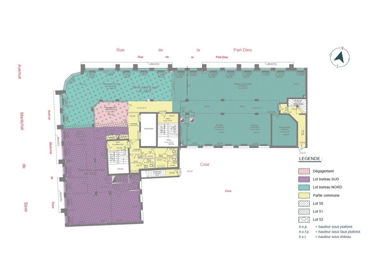
380 m² divisible dès 137 m²
HT HC
LE MARECHAL - Location bureau - 380 m²
Lyon 3 (69003)
Dernière mise à jour : Il y a 21 jours
Opportunité Rare : Bureaux à louer dans le quartier de Préfecture, entre Part Dieu et Presqu'ile, 380 m² divisibles à partir de 137 m²
Immeuble LE MARECHAL
Savills Lyon vous propose une nouvelle surface de bureaux lumineux et déjà aménagée, au coeur du quartier Préfecture.
Bénéficiez d'un emplacement stratégique avec un accès immédiat au métro B Place Guichard et au tram T1 Préfecture.
D'une surface totale de 380 m² divisibles à partir de 137 m², ces bureaux offrent un environnement de travail fonctionnel au sein d'un secteur dynamique, riche en commerces et restaurants à proximité immédiate de l'immeuble.
Parking en sous-sol et local vélos sécurisé.
Impôt Foncier : 23 €/HT/m²/an
Régime Fiscal : T.V.A.
Dépôt de garantie : 3 mois de loyer HT HC
Honoraires : 15% HT du loyer annuel HT HC à la charge du preneur
Information sur le Bail :
Honoraires de gestion technique : 2,12 % HT du loyer HT
Prestations :
Accessibilité:
Bus n° C4, C14 " Saxe Préfecture" à 50 m et C9 à 150 m
Tramway T1 "Saxe - Préfecture" à 150 m
Métro Ligne B "Place Guichard Bourse du Travail" à 200 m
SNCF Gare de Part Dieu à 5 min via ligne de métro B
Les informations sur les risques auxquels ce bien est exposé sont disponibles sur le site Géorisques : www.georisques.gouv.fr
Immeuble LE MARECHAL
Savills Lyon vous propose une nouvelle surface de bureaux lumineux et déjà aménagée, au coeur du quartier Préfecture.
Bénéficiez d'un emplacement stratégique avec un accès immédiat au métro B Place Guichard et au tram T1 Préfecture.
D'une surface totale de 380 m² divisibles à partir de 137 m², ces bureaux offrent un environnement de travail fonctionnel au sein d'un secteur dynamique, riche en commerces et restaurants à proximité immédiate de l'immeuble.
Parking en sous-sol et local vélos sécurisé.
| Étage | Type | Surfaces | Dispo | Loyer | Charges | Type de bailRév. annuelle |
|---|---|---|---|---|---|---|
| 2 | Bureaux | 242,6 | 03/03/2026 | 200 m²/an/HT-HC | 56 m²/an HT | 3-6-9 ansILAT Indice des Loyers des Activités Tertiaires |
| 2 | Bureaux | 136,9 | 03/03/2026 | 200 m²/an/HT-HC | 56 m²/an HT | 3-6-9 ansILAT Indice des Loyers des Activités Tertiaires |
| Parkings | 03/03/2026 | 2100 place/an/HT-HC | 3-6-9 ansILAT Indice des Loyers des Activités Tertiaires | |||
| Parkings | 03/03/2026 | 1600 place/an/HT-HC | 3-6-9 ansILAT Indice des Loyers des Activités Tertiaires |
Impôt Foncier : 23 €/HT/m²/an
Régime Fiscal : T.V.A.
Dépôt de garantie : 3 mois de loyer HT HC
Honoraires : 15% HT du loyer annuel HT HC à la charge du preneur
Information sur le Bail :
Honoraires de gestion technique : 2,12 % HT du loyer HT
Prestations :
- LE MARECHAL est un immeuble de bureaux en plein coeur du quartier prisé de la préfecture, à proximité immédiate des transports en commun.
- Livré fin des années 80
- Accès PMR
- 2 ascenseurs
- Interphone et digicode
- Rénovation du hall prévue en 2026
- Plateau aménagé et câblé en état d'usage classique
- Cloisons vitrées
- Faux plafond
- Sol : moquette
- Eclairage LED
- Plinthes périphériques
- Fibre optique
- Sanitaires en parties communes
- Plusieurs Open Space
- Call box
- Bureaux fermés
- Création de 2 douches au RDC prévue en 2026
- Remplacement CTA et CVC effectué fin 2024
- Sanitaires rénovés en parties communes
Accessibilité:
Bus n° C4, C14 " Saxe Préfecture" à 50 m et C9 à 150 m
Tramway T1 "Saxe - Préfecture" à 150 m
Métro Ligne B "Place Guichard Bourse du Travail" à 200 m
SNCF Gare de Part Dieu à 5 min via ligne de métro B
Les informations sur les risques auxquels ce bien est exposé sont disponibles sur le site Géorisques : www.georisques.gouv.fr
Voir plus
Afficher les consommations énergétiques
Localisation et transport aux alentours
- Place Guichard65m (1min à pied)B
- Saxe - Préfecture147m (2min à pied)1
- Palais de Justice - Mairie du 3ème285m (4min à pied)1
- Liberté418m (6min à pied)1
Favoris
Exporter
Appeler
Contacter
Signaler cette annonce










