L’agence CBRE Lyon conseille et accompagne les chefs d’entreprise dans leurs projets immobiliers quels que soient leur taille et leur secteur d’activité. Spécialistes de la transaction de bureaux, ...
En savoir plus

1 101 m² divisible dès 51 m²
HT HC
Location bureau - 1101 m²
Lyon 3 (69003)
Dernière mise à jour : Il y a 9 jours
Immeuble offrant un très bon rapport qualité/prix grâce à sa façade moderne, son hall d'entrée impressionnant et sa situation géographique à moins de 10 minutes à pied de la gare Part-Dieu
Le secteur de Lyon Part-Dieu est l'une des plus importantes zones d'affaires de l'agglomération lyonnaise et la seconde en France, avec ses 2 200 établissements implantés et ses 55 000 emplois. L'implantation de nombreux sièges sociaux nationaux et internationaux positionne le quartier comme site majeur de décisions stratégiques. Le secteur bénéficie d'une desserte idéale grâce à son pôle multimodal. De plus le quartier s'inscrit dans une démarche de rénovation urbaine de par la restructuration de sa gare et son centre commercial.
Impôt Foncier : 25 €/HT/m²/an
Régime Fiscal : T.V.A.
Dépôt de garantie : 3 mois de loyer HT/HC
Paiement Loyer : trimestriel
Honoraires : 15% HT du loyer annuel HT/HC à la charge du preneur
Information sur le Bail :
Bail de courte durée avec fin de bail prévue au 31/12/2027. Honoraires de gestion administrative, comptable et financière : . Bureaux = 8 euros/m²/an HT . Parking simples = 50 euros/U/an HT . Parking doubles = 75 euros/U/an HT
Prestations :
Accessibilité:
Tramway Gare Part-Dieu - Villette (Tramways)
Transilien Lyon-Part-Dieu (SNCF)
Metro Ligne B à 646 m
Les informations sur les risques auxquels ce bien est exposé sont disponibles sur le site Géorisques : www.georisques.gouv.fr
Le secteur de Lyon Part-Dieu est l'une des plus importantes zones d'affaires de l'agglomération lyonnaise et la seconde en France, avec ses 2 200 établissements implantés et ses 55 000 emplois. L'implantation de nombreux sièges sociaux nationaux et internationaux positionne le quartier comme site majeur de décisions stratégiques. Le secteur bénéficie d'une desserte idéale grâce à son pôle multimodal. De plus le quartier s'inscrit dans une démarche de rénovation urbaine de par la restructuration de sa gare et son centre commercial.
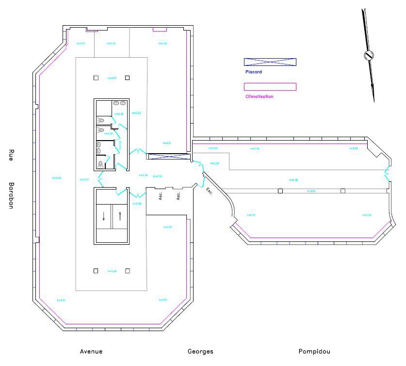
| Étage | Type | Surfaces | Dispo | Loyer | Charges | Type de bailRév. annuelle |
|---|---|---|---|---|---|---|
| RDC | Bureaux | 195,33 | Immédiate | 120 m²/an HT HC | 42 m²/an HT | PrécaireIndice ILAT |
| RDC | Activités | 176,08 | Immédiate | 80 m²/an HT HC | 42 m²/an HT | PrécaireIndice ILAT |
| 1 | Bureaux | 73,29 | Immédiate | 120 m²/an HT HC | 42 HT/m²/an | PrécaireIndice ILAT |
| 4 | Bureaux | 128 | Immédiate | 120 m²/an HT HC | 42 HT/m²/an | PrécaireIndice ILAT |
| 4 | Bureaux | 65 | Immédiate | 120 m²/an HT HC | 42 HT/m²/an | PrécaireIndice ILAT |
| 4 | Bureaux | 50,7 | Immédiate | 120 m²/an HT HC | 42 HT/m²/an | PrécaireIndice ILAT |
| 1 | Bureaux | 73,29 | Immédiate | 120 m²/an HT HC | 42 HT/m²/an | PrécaireIndice ILAT |
| 7 | Bureaux | 339 | Immédiate | 120 m²/an HT HC | 42 HT/m²/an | PrécaireIndice ILAT |
| 2SS | Parkings | Immédiate | 2000 U/an HT HC | PrécaireIndice ILAT | ||
| 1SS | Parkings | Immédiate | 2000 U/an HT HC | PrécaireIndice ILAT | ||
| SS | Parkings | Immédiate | 1500 U/an HT HC | PrécaireIndice ILAT |
Impôt Foncier : 25 €/HT/m²/an
Régime Fiscal : T.V.A.
Dépôt de garantie : 3 mois de loyer HT/HC
Paiement Loyer : trimestriel
Honoraires : 15% HT du loyer annuel HT/HC à la charge du preneur
Information sur le Bail :
Bail de courte durée avec fin de bail prévue au 31/12/2027. Honoraires de gestion administrative, comptable et financière : . Bureaux = 8 euros/m²/an HT . Parking simples = 50 euros/U/an HT . Parking doubles = 75 euros/U/an HT
Prestations :
- Plateau cloisonné
- Chauffage et rafraichissement d'air par ventilo-convecteurs en allège
- Faux plafond avec luminaires encastrés
- Moquette
- Courant fort et faible
- Stores extérieurs
- Sanitaires en parties communes
- Contrôle d'accès
- Ascenseurs
- Accès PMR
- Le lot 74 dispose de 3 garages doubles à 2000 euros HT/HC/box double/an
- Surface RDC : 371,41 m²
Accessibilité:
Tramway Gare Part-Dieu - Villette (Tramways)
Transilien Lyon-Part-Dieu (SNCF)
Metro Ligne B à 646 m
Les informations sur les risques auxquels ce bien est exposé sont disponibles sur le site Géorisques : www.georisques.gouv.fr
2 Parkings int. 1 Parkings int. 3 Parkings int.
Voir plus
Afficher les consommations énergétiques
Favoris
Exporter
Appeler
Contacter
Signaler cette annonce
