MALSH Realty accompagne les entreprises dans leurs projets immobiliers, qu’il s’agisse de locaux d’activités, de bureaux, de commerces, d’entrepôts ou de terrains. L’agence intervient aussi bien au ...
En savoir plus

252 m²
HT HC
Location bureau - 252 m²
Lyon 3 (69003)
Dernière mise à jour : Hier
Bureaux - A louer - 252 m² - Lyon Part-Dieu (69003)
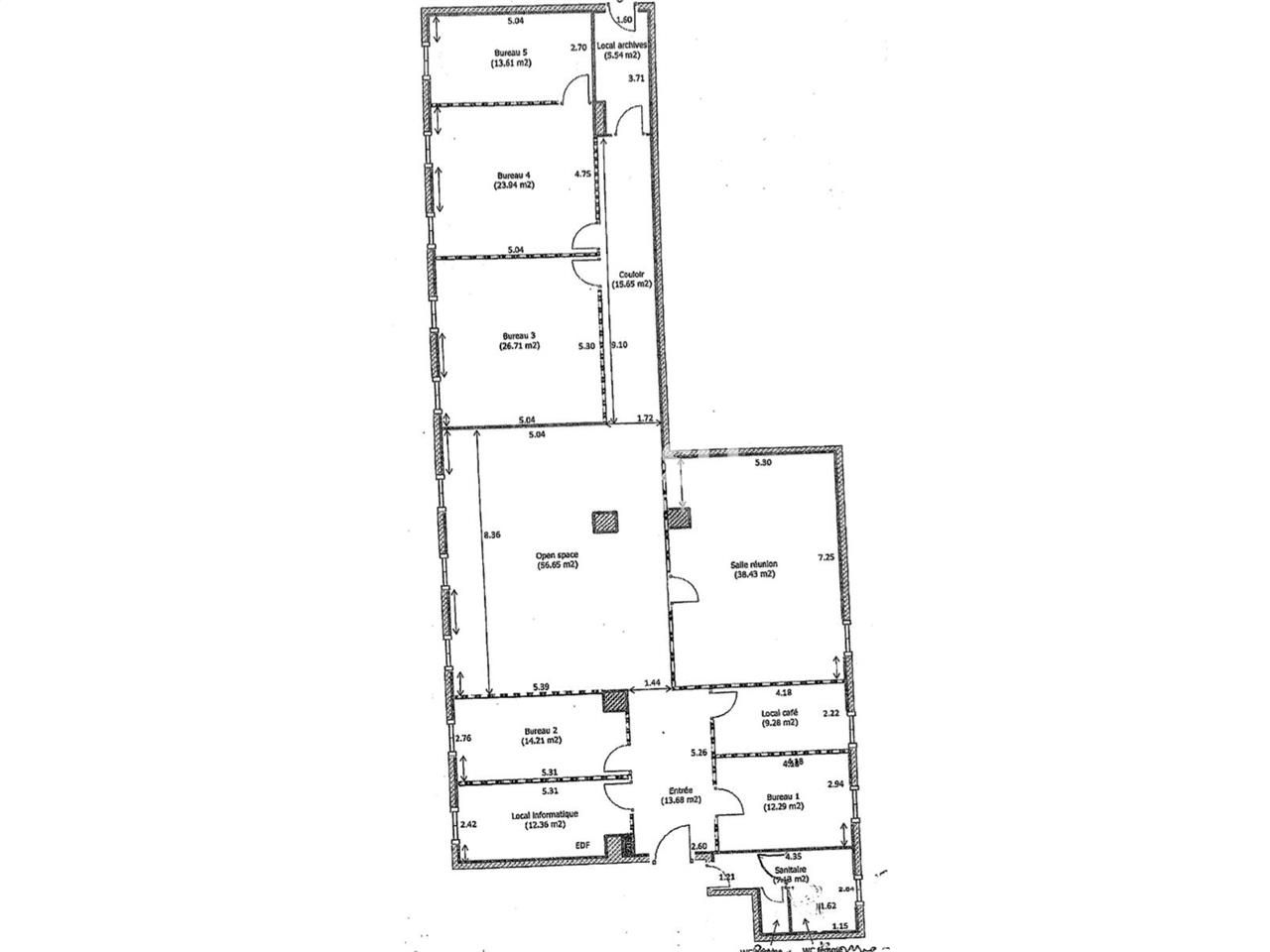
Nous vous proposons à la location, à proximité immédiate de la Gare Part-Dieu, des bureaux cloisonnés et climatisés d'une surface totale d'environ 252 m² au 2ème étage.
Ce bien dispose de deux places de stationnement en sous-sol et 2 en extérieur.
Bureaux - A louer - 252 m² - Lyon Part-Dieu (69003)
Impôt Foncier : 6700 €/HT/An
Régime Fiscal : T.V.A. (20%)
Dépôt de garantie : 3 mois de loyer HT/HC
Honoraires : 15% HT d'un an de loyer HT à la charge du preneur, payables à la signature du bail
Prestations :
Accessibilité:
Métro Ligne B
Tram Lignes T1 , T3 et T4
Bus Lignes 25, 38 et 70
SNCF Lyon-Part-Dieu (Gare SNCF)
Aéroport St Exupéry via Rhôn'Express
Les informations sur les risques auxquels ce bien est exposé sont disponibles sur le site Géorisques : www.georisques.gouv.fr
Nous vous proposons à la location, à proximité immédiate de la Gare Part-Dieu, des bureaux cloisonnés et climatisés d'une surface totale d'environ 252 m² au 2ème étage.
Ce bien dispose de deux places de stationnement en sous-sol et 2 en extérieur.
Bureaux - A louer - 252 m² - Lyon Part-Dieu (69003)
| Étage | Type | Surfaces | Dispo | Loyer | Charges | Type de bailRév. annuelle |
|---|---|---|---|---|---|---|
| 2 | Bureaux | 252 | Immédiate | ILAT Indice des Loyers des Activités Tertiaires | ||
| Parkings | Immédiate | ILAT Indice des Loyers des Activités Tertiaires | ||||
| Sous-Sol | Parkings | Immédiate | ILAT Indice des Loyers des Activités Tertiaires | |||
| Total Cellule | Bureaux | 252 | Immédiate | 204,37 HT/HC/m²/an | 15000 /an HT | commercial 3-6-9 ansILAT Indice des Loyers des Activités Tertiaires |
Impôt Foncier : 6700 €/HT/An
Régime Fiscal : T.V.A. (20%)
Dépôt de garantie : 3 mois de loyer HT/HC
Honoraires : 15% HT d'un an de loyer HT à la charge du preneur, payables à la signature du bail
Prestations :
- Composition :
- 6 Grands bureaux
- 2 Bureaux individuels
- 1 Salle de réunion
- 1 Coin cuisine
- 1 Local d'archive
- Sanitaires privatifs sur le palier
- Prestations :
- Immeuble tertiaire sécurisé
- Ascenseur
- Climatisation réversible
- Faux plafond
- Pavés LED encastrés
- Fenêtres doubles vitrages et stores
- Dalles carrelage ou moquette au sol
- Cloisons amovibles
- Câblage RJ45 et fibre optique
- Baie de brassage
- Kitchenette
- Interphone
- Accessibilité PMR
Accessibilité:
Métro Ligne B
Tram Lignes T1 , T3 et T4
Bus Lignes 25, 38 et 70
SNCF Lyon-Part-Dieu (Gare SNCF)
Aéroport St Exupéry via Rhôn'Express
Les informations sur les risques auxquels ce bien est exposé sont disponibles sur le site Géorisques : www.georisques.gouv.fr
Voir plus
Afficher les consommations énergétiques
Localisation et transport aux alentours
Favoris
Exporter
Appeler
Contacter
Signaler cette annonce










