Conseil en immobilier d'entreprise, Cushman & Wakefield est un acteur incontournable au rayonnement international. Cushman & Wakefield offre des solutions dans toutes les étapes que comporte un p ...
En savoir plus



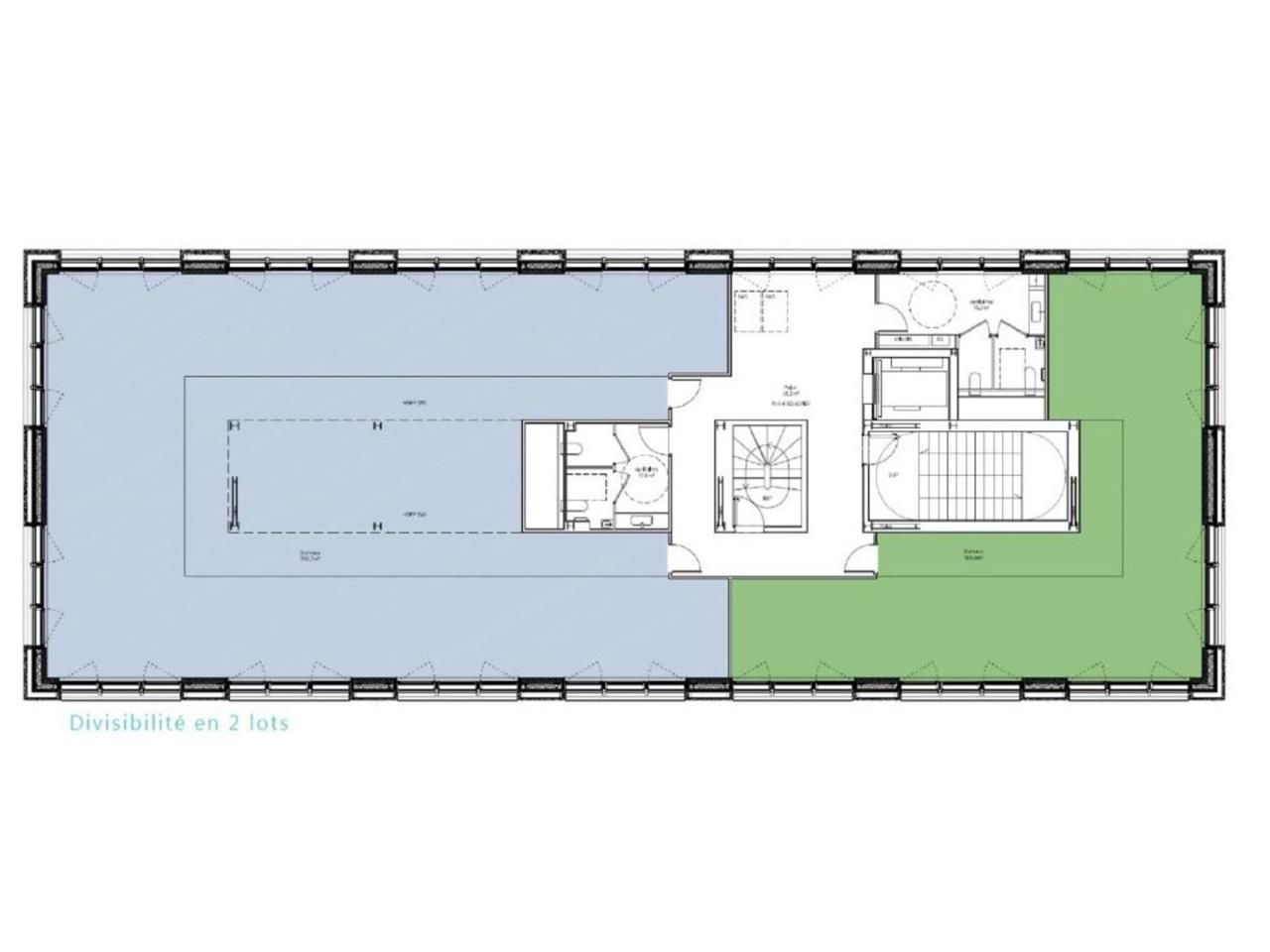
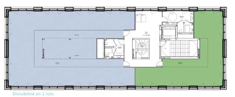
1 304 m² divisible dès 149 m²
HT HC
WORK#2 - Location bureau - 1304 m²
Lyon 2 (69002)
Dernière mise à jour : Il y a 24 jours
Bureaux neufs à louer en plein coeur de Confluence
Immeuble WORK#2
Cushman & Wakefield vous propose plusieurs surfaces de bureaux à la location au sein de l'immeuble Work#2, programme tertiaire neuf situé dans le quartier très recherché de la Confluence, dans le 2ème arrondissement de Lyon. Ce bâtiment moderne et performant développe une surface totale disponible de 1 304 m², divisible à partir de 149 m², permettant ainsi de répondre aussi bien aux besoins des petites structures qu'aux entreprises de taille plus importante.
Les plateaux, livrés nus, bénéficient de prestations techniques de grande qualité, répondant aux exigences actuelles en matière de confort, de performance énergétique et de modularité : faux plancher technique pour une flexibilité d'aménagement, production de froid par pompe à chaleur, panneaux rayonnants pour une diffusion thermique homogène, éclairage LED pour une meilleure efficacité énergétique. Ces équipements garantissent un environnement de travail à la fois fonctionnel, durable et agréable.
Idéalement implanté au coeur de la Confluence, à proximité immédiate des transports en commun, des axes autoroutiers, des commerces et des services, l'immeuble offre à ses utilisateurs un cadre de travail privilégié dans un quartier en pleine expansion. C'est l'opportunité idéale pour les entreprises soucieuses d'installer leurs équipes dans un environnement moderne, attractif et propice à la performance comme à l'épanouissement professionnel.
Impôt Foncier : 29,7 €/HT/m²/an
Régime Fiscal : T.V.A.
Dépôt de garantie : 3 mois de loyer HT/HC
Paiement Loyer : Trimestriel
Honoraires : 15 % HT du loyer annuel HT/HC à la charge du preneur.
Information sur le Bail :
Consommations - fluide (eau/EDF) : 13,6 euros HT/m²/an Assurances : 1,1 euros HT/m²/an
Prestations :
Accessibilité:
Métro Perrache ou Bellecour ( ligne A)
Bus Lignes 8-31-46-55-60-63-C19-C21-C22
Tram T1-T2
SNCF Perrache à proximité
Les informations sur les risques auxquels ce bien est exposé sont disponibles sur le site Géorisques : www.georisques.gouv.fr
Immeuble WORK#2
Cushman & Wakefield vous propose plusieurs surfaces de bureaux à la location au sein de l'immeuble Work#2, programme tertiaire neuf situé dans le quartier très recherché de la Confluence, dans le 2ème arrondissement de Lyon. Ce bâtiment moderne et performant développe une surface totale disponible de 1 304 m², divisible à partir de 149 m², permettant ainsi de répondre aussi bien aux besoins des petites structures qu'aux entreprises de taille plus importante.
Les plateaux, livrés nus, bénéficient de prestations techniques de grande qualité, répondant aux exigences actuelles en matière de confort, de performance énergétique et de modularité : faux plancher technique pour une flexibilité d'aménagement, production de froid par pompe à chaleur, panneaux rayonnants pour une diffusion thermique homogène, éclairage LED pour une meilleure efficacité énergétique. Ces équipements garantissent un environnement de travail à la fois fonctionnel, durable et agréable.
Idéalement implanté au coeur de la Confluence, à proximité immédiate des transports en commun, des axes autoroutiers, des commerces et des services, l'immeuble offre à ses utilisateurs un cadre de travail privilégié dans un quartier en pleine expansion. C'est l'opportunité idéale pour les entreprises soucieuses d'installer leurs équipes dans un environnement moderne, attractif et propice à la performance comme à l'épanouissement professionnel.
| Étage | Type | Surfaces | Dispo | Loyer | Charges | Type de bailRév. annuelle |
|---|---|---|---|---|---|---|
| R+1 | Bureaux | 327,8 | Immédiate | 250 HT/HC/m²/an | 53,1 HT/m²/an | 3-6-9 ansSur l'indice ILAT |
| R+2 | Bureaux | 149 | 9 octobre 2026 | 250 HT/HC/m²/an | 53,1 HT/m²/an | 3-6-9 ansSur l'indice ILAT |
| R+3 | Bureaux | 331,2 | Immédiate | 250 HT/HC/m²/an | 53,1 HT/m²/an | 3-6-9 ansSur l'indice ILAT |
| R+4 | Bureaux | 330,4 | Immédiate | 250 HT/HC/m²/an | 53,1 HT/m²/an | 3-6-9 ansSur l'indice ILAT |
| R+4 | Bureaux | 165,8 | 250 HT/HC/m²/an | 53,1 HT/m²/an | 3-6-9 ansSur l'indice ILAT | |
| Parkings | 1600 HT/HC/U/an | 3-6-9 ansSur l'indice ILAT |
Impôt Foncier : 29,7 €/HT/m²/an
Régime Fiscal : T.V.A.
Dépôt de garantie : 3 mois de loyer HT/HC
Paiement Loyer : Trimestriel
Honoraires : 15 % HT du loyer annuel HT/HC à la charge du preneur.
Information sur le Bail :
Consommations - fluide (eau/EDF) : 13,6 euros HT/m²/an Assurances : 1,1 euros HT/m²/an
Prestations :
- Label BREAM Excellent / Wirescored
- Certification E+C- niveau E1
- Panneaux photovoltaïques en toiture
- Hall d'entrée
- Ascenseur desservant tous les niveaux
- Contrôle d'accès extérieur
- Un Open Space
- Alarme
- Cuisine
- Capacitaire : 200 personnes soit environ 40 personnes/étage
- Parkings en amodiation
- Local à vélo privatif
- Production chaud panneau rayonnant
- Production froid par PAC, distribution 2 tubes
- Panneaux rayonnants
- Eclairage LED
- Faux plancher
- Moquette au sol
- Douche au RDC
- Contrôle d'accès par badge, visiophone
- Ascenseur
- Espaces verts communs au coeur de l'îlot
- Parkings en amodiation
- Local à vélo privatif
Accessibilité:
Métro Perrache ou Bellecour ( ligne A)
Bus Lignes 8-31-46-55-60-63-C19-C21-C22
Tram T1-T2
SNCF Perrache à proximité
Les informations sur les risques auxquels ce bien est exposé sont disponibles sur le site Géorisques : www.georisques.gouv.fr
Emplacement(s) de Parking: 12 places
Voir plus
Afficher les consommations énergétiques
Localisation et transport aux alentours
- Sainte-Blandine290m (4min à pied)1
- Montrochet478m (7min à pied)1
Favoris
Exporter
Appeler
Contacter
Signaler cette annonce










