Nous sommes Immprove, une grande équipe de plus de 200 experts en immobilier d’entreprise, implantés localement avec plus de 20 agences sur tout le territoire.Depuis 2009, notre proximité, notre ét ...
En savoir plus

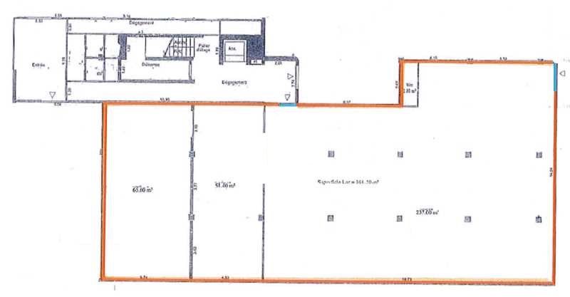
919 m² divisible dès 128 m²
HT HC
Location bureau - 919 m²
Le Chesnay (78150)
Dernière mise à jour : Il y a 10 jours
PRODUIT RARE
LE CHESNAY - Immprove vous propose à la location des surfaces de bureaux ou de stockage au sein d'un immeuble de bureaux, le tout à proximité immédiate du centre commercial de Parly II et des grands axes. Au sein d'un immeuble sécurisé et accessible depuis un ascenseur PMR, vous profiterez de surfaces de bureaux lumineuses en étage, bénéficiant de sanitaires privatifs, d'un espace cuisine avec arrivée d'eau pour certains bureaux. Places de parkings en extérieur. Pour de plus amples informations ou demande de visite, contactez-nous.
Régime Fiscal : T.V.A. (20%)
Dépôt de garantie : 3 mois de loyer HT HC
Honoraires : 15% HT du loyer annuel HT HC à la charge du preneur
Information sur le Bail :
Les charges comprennent : Taxe foncière, taxe bureaux, chauffage, ascenseur, vidéosurveillance et charges générales d'entretiens. Reste à la charge du preneur : électricité et réseau. En option supplémentaire : place de parking disponibles en extérieur au prix de 600 euros/U/an HT
Prestations :
Accessibilité:
Bus Bus nombreuses lignes - Arrêt Centre Commercial Parly 2
Autoroute Autoroute A13
Les informations sur les risques auxquels ce bien est exposé sont disponibles sur le site Géorisques : www.georisques.gouv.fr
LE CHESNAY - Immprove vous propose à la location des surfaces de bureaux ou de stockage au sein d'un immeuble de bureaux, le tout à proximité immédiate du centre commercial de Parly II et des grands axes. Au sein d'un immeuble sécurisé et accessible depuis un ascenseur PMR, vous profiterez de surfaces de bureaux lumineuses en étage, bénéficiant de sanitaires privatifs, d'un espace cuisine avec arrivée d'eau pour certains bureaux. Places de parkings en extérieur. Pour de plus amples informations ou demande de visite, contactez-nous.
| Étage | Type | Surfaces | Dispo | Loyer | Charges | Type de bailRév. annuelle |
|---|---|---|---|---|---|---|
| 2 | Bureaux | 128 | Immédiate | 215 m²/an HT HC | 70 m²/an HT | Bail Commercial 3-6-9 ansselon l'indice des loyers des activités tertiaires (ILAT) |
| 1 | Bureaux | 429 | 1er janvier 2026 | 215 m²/an HT HC | 70 m²/an HT | Bail Commercial 3-6-9 ansselon l'indice des loyers des activités tertiaires (ILAT) |
| SS | Activités | 362 | Immédiate | 150 m²/an HT HC | 36 m²/an HT | Bail Commercial 3-6-9 ansselon l'indice des loyers des activités tertiaires (ILAT) |
Régime Fiscal : T.V.A. (20%)
Dépôt de garantie : 3 mois de loyer HT HC
Honoraires : 15% HT du loyer annuel HT HC à la charge du preneur
Information sur le Bail :
Les charges comprennent : Taxe foncière, taxe bureaux, chauffage, ascenseur, vidéosurveillance et charges générales d'entretiens. Reste à la charge du preneur : électricité et réseau. En option supplémentaire : place de parking disponibles en extérieur au prix de 600 euros/U/an HT
Prestations :
- Immeuble moderne
- Façade mur rideau
- Accès véhicules légers
- Contrôle d'accès
- Vidéosurveillance
- Ascenseur PMR
- Fibre
- Locaux en bon état et lumineux
- Cloisonnements amovibles
- Ascenseur PMR
- Sanitaires Privatifs
- Parking en extérieur
Accessibilité:
Bus Bus nombreuses lignes - Arrêt Centre Commercial Parly 2
Autoroute Autoroute A13
Les informations sur les risques auxquels ce bien est exposé sont disponibles sur le site Géorisques : www.georisques.gouv.fr
Voir plus
Afficher les consommations énergétiques
Localisation et transport aux alentours
Favoris
Exporter
Appeler
Contacter
Signaler cette annonce
