Nous sommes Immprove, une grande équipe de plus de 200 experts en immobilier d’entreprise, implantés localement avec plus de 20 agences sur tout le territoire.Depuis 2009, notre proximité, notre ét ...
En savoir plus

130 m²
HT HC
Location bureau - 130 m²
Haute-Goulaine (44115)
Dernière mise à jour : Il y a 10 jours
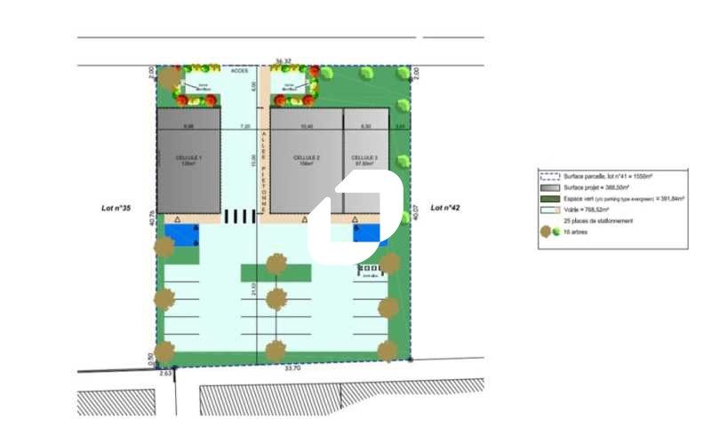
IMMPROVE vous propose à la location un bâtiment de bureaux indépendant d'environ 130m² composé de deux bureaux fermés, une cuisine équipée, une salle de réunion, un open space lumineux. 8 places de parking complètent le bien.
Impôt Foncier : 1465 €/an HT
Régime Fiscal : T.V.A. (20%)
Dépôt de garantie : 2 mois de loyer HT/HC
Honoraires : 25 % HT du loyer annuel HT HC
Prestations :
Accessibilité:
Route D149 / N249
Les informations sur les risques auxquels ce bien est exposé sont disponibles sur le site Géorisques : www.georisques.gouv.fr
| Étage | Type | Surfaces | Dispo | Loyer | Charges | Type de bailRév. annuelle |
|---|---|---|---|---|---|---|
| RDC | Bureaux | 130 | Immédiate | 180 m²/an HT HC | 3,54 /m²/an HT | Bail Commercial 3-6-9 ansselon l'indice des loyers des activités tertiaires (ILAT) |
Impôt Foncier : 1465 €/an HT
Régime Fiscal : T.V.A. (20%)
Dépôt de garantie : 2 mois de loyer HT/HC
Honoraires : 25 % HT du loyer annuel HT HC
Prestations :
- Bureaux cloisonnés
- Salle de réunion
- Espace détente
- Local technique
- Cuisine
- Sanitaires privatifs
- Câblage informatique et téléphonique
- Pré-câblage informatique et téléphonique
- Prises RJ45
- Possibilité de normes E.R.P.
- Climatisation réversible
- Surface RDC : 130 m²
Accessibilité:
Route D149 / N249
Les informations sur les risques auxquels ce bien est exposé sont disponibles sur le site Géorisques : www.georisques.gouv.fr
Voir plus
Afficher les consommations énergétiques
Favoris
Exporter
Appeler
Contacter
Signaler cette annonce
