Etablie à Lyon depuis 1999, la Société Lyonnaise de Développement Immobilier,(SLDI) est l'un des principaux acteurs indépendants du Conseil en immobilier d’entreprise. Que vous soyez industriel, co ...
En savoir plus

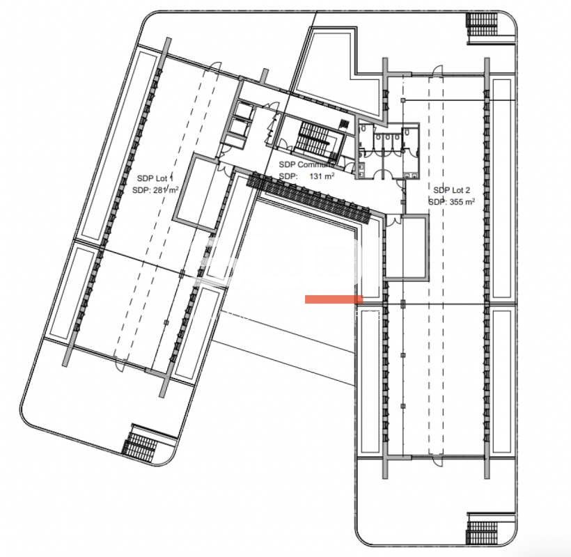
10 187 m² divisible dès 266 m²
HT HC
PARC EVEREST 3 - Location bureau - 10187 m²
Genas (69740)
Dernière mise à jour : Il y a 7 jours
Immeuble PARC EVEREST 3
Nous vous proposons des bureaux neufs louer à Genas, bureaux d'exception dans un immeuble labellisé BREEM VERY GOOD, offrant 4186 m² d'espace divisibles à partir de 262m². Ces bureaux de standing sont dotés de prestations haut de gamme incluant un amphithéâtre, une salle de sport et une restauration rapide sur place. Idéalement situés à proximité des axes routiers, ces locaux offrent un cadre de travail idéal pour les entreprises en quête de confort et de fonctionnalité. Ne manquez pas cette opportunité unique d'installer votre activité dans un environnement professionnel de qualité à Genas.
Régime Fiscal : T.V.A.
Dépôt de garantie : 3 mois de loyer HT/HC
Honoraires : 15% du loyer annuel HT HC à la charge du preneur.
Information sur le Bail :
Loyer cloisonné câblé : 145 euros/HT/m²/an Loyer plateau nu : 135 euros/HT/m²/an Parking extérieur : 250 euros/HT/unité Parking intérieur : .450 euros/HT/l'unité/an (+100 euros pour une place avec borne de recharge) Frais de rédaction de bail : 750 euros HT
Prestations :
Accessibilité:
Autoroute A 43 A 46
Route ROCADE EST
Aéroport ST EXUPERY
SNCF TGV PART DIEU 25 mns
Les informations sur les risques auxquels ce bien est exposé sont disponibles sur le site Géorisques : www.georisques.gouv.fr
Nous vous proposons des bureaux neufs louer à Genas, bureaux d'exception dans un immeuble labellisé BREEM VERY GOOD, offrant 4186 m² d'espace divisibles à partir de 262m². Ces bureaux de standing sont dotés de prestations haut de gamme incluant un amphithéâtre, une salle de sport et une restauration rapide sur place. Idéalement situés à proximité des axes routiers, ces locaux offrent un cadre de travail idéal pour les entreprises en quête de confort et de fonctionnalité. Ne manquez pas cette opportunité unique d'installer votre activité dans un environnement professionnel de qualité à Genas.
| Étage | Type | Surfaces | Dispo | Loyer | Charges | Type de bailRév. annuelle |
|---|---|---|---|---|---|---|
| 3 | Bureaux | 421 | Immédiate | 135 HT/HC/m²/an | 27 m²/an HT | 3-6-9 ansILAT Indice des Loyers des Activités Tertiaires |
| 1 | Bureaux | 616 | Immédiate | 135 HT/HC/m²/an | 27 m²/an HT | 3-6-9 ansILAT Indice des Loyers des Activités Tertiaires |
| 1 | Bureaux | 510 | Immédiate | 135 HT/HC/m²/an | 27 m²/an HT | 3-6-9 ansILAT Indice des Loyers des Activités Tertiaires |
| 1 | Bureaux | 317 | Immédiate | 135 HT/HC/m²/an | 27 m²/an HT | 3-6-9 ansILAT Indice des Loyers des Activités Tertiaires |
| 1 | Bureaux | 266 | Immédiate | 135 HT/HC/m²/an | 27 m²/an HT | 3-6-9 ansILAT Indice des Loyers des Activités Tertiaires |
| RDC | Bureaux | 6577 | Immédiate | 135 HT/HC/m²/an | 27 m²/an HT | 3-6-9 ansILAT Indice des Loyers des Activités Tertiaires |
| RDC | Bureaux | 743 | Immédiate | 135 HT/HC/m²/an | 27 m²/an HT | 3-6-9 ansILAT Indice des Loyers des Activités Tertiaires |
| RDC | Bureaux | 275 | Immédiate | 135 HT/HC/m²/an | 27 m²/an HT | 3-6-9 ansILAT Indice des Loyers des Activités Tertiaires |
| 1 | Bureaux | 462 | Immédiate | 135 HT/HC/m²/an | 27 m²/an HT | 3-6-9 ansILAT Indice des Loyers des Activités Tertiaires |
Régime Fiscal : T.V.A.
Dépôt de garantie : 3 mois de loyer HT/HC
Honoraires : 15% du loyer annuel HT HC à la charge du preneur.
Information sur le Bail :
Loyer cloisonné câblé : 145 euros/HT/m²/an Loyer plateau nu : 135 euros/HT/m²/an Parking extérieur : 250 euros/HT/unité Parking intérieur : .450 euros/HT/l'unité/an (+100 euros pour une place avec borne de recharge) Frais de rédaction de bail : 750 euros HT
Prestations :
- LABÉLISATION BREEAM VERY GOOD
- Amphithéâtre pouvant accueillir jusqu'à 162 personnes
- Service de restauration rapide
- Salle de sport sur le site
- Locaux en premiers jour.
- Présence d'une centrale solaire sur site
- Installation d'équipements sanitaires économes en eau
- Performance Energétique améliorée
- Bornes de recharge pour véhicules électriques
- Surface RDC : 7595 m²
Accessibilité:
Autoroute A 43 A 46
Route ROCADE EST
Aéroport ST EXUPERY
SNCF TGV PART DIEU 25 mns
Les informations sur les risques auxquels ce bien est exposé sont disponibles sur le site Géorisques : www.georisques.gouv.fr
Voir plus
Afficher les consommations énergétiques
Localisation et transport aux alentours
Favoris
Exporter
Appeler
Contacter
Signaler cette annonce










