Evolis, votre partenaire en immobilier d’entreprise! Que vous soyez une entreprise, utilisateur de locaux professionnels, investisseur, ou propriétaire, Evolis met à votre service son expertise ...
En savoir plus

2 348 m²
HT HC
Location activité/entrepôt - 2348 m²
Morangis (91420)
Dernière mise à jour : Il y a 23 jours
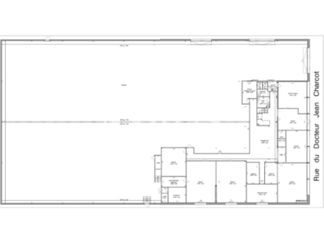
Dans la zone d'activité de Morangis, idéalement située entre l'autoroute A6 et la nationale N7, EVOLIS vous propose à la location un bâtiment d'activité indépendant d'une superficie d'environ 2 348 m², sur une parcelle de terrain de 3 425 m².
Ce bien dispose de deux portes à quai et d'une porte sectionnelle, facilitant ainsi les opérations logistiques. Les bureaux sont en bon état et l'entrepôt sera entièrement rénové avant la location, garantissant un espace de travail fonctionnel et moderne. Ne manquez pas cette opportunité d'établir votre activité dans un cadre optimal !
Impôt Foncier : 13,41 €/m²/an
Régime Fiscal : T.V.A.
Dépôt de garantie : 3 mois de loyer HT HC
Honoraires : 15% du loyer annuel HT HC à la charge du preneur
Taxe Bureau : 6,78 €/m²/an
Prestations :
Accessibilité:
Bus 492, 292, 4280
Tram Gravigny-Balizy (12)
RER Chilly-Mazarin (C)
Autoroute A6
Les informations sur les risques auxquels ce bien est exposé sont disponibles sur le site Géorisques : www.georisques.gouv.fr
Ce bien dispose de deux portes à quai et d'une porte sectionnelle, facilitant ainsi les opérations logistiques. Les bureaux sont en bon état et l'entrepôt sera entièrement rénové avant la location, garantissant un espace de travail fonctionnel et moderne. Ne manquez pas cette opportunité d'établir votre activité dans un cadre optimal !
| Étage | Type | Surfaces | Dispo | Loyer | Charges | Type de bailRév. annuelle |
|---|---|---|---|---|---|---|
| 1 | Bureaux | 912 | Immédiate | Bail commercial 3-6-9 ansILAT Indice des Loyers des Activités Tertiaires | ||
| RDC | Activités | 1436 | Immédiate | Bail commercial 3-6-9 ansILAT Indice des Loyers des Activités Tertiaires | ||
| Total Cellule | Activités | 2348 | Immédiate | 125,21 m²/an/ HT/HC | 2,76 m²/an HT | Bail commercial 3-6-9 ansILAT Indice des Loyers des Activités Tertiaires |
Impôt Foncier : 13,41 €/m²/an
Régime Fiscal : T.V.A.
Dépôt de garantie : 3 mois de loyer HT HC
Honoraires : 15% du loyer annuel HT HC à la charge du preneur
Taxe Bureau : 6,78 €/m²/an
Prestations :
- Ossature métallique
- Murs périmétriques en parpaing
- Couverture bac acier
- Façade en bardage
- Double accès
- Parties communes rénovées récemment
- Site clos
- Fibre optique
- Accueil
- Espace détente
- Cuisine
- Faux plafonds
- Moquette
- Bureaux cloisonnés décloisonnement possible
- Plinthes périphériques
- Câblage informatique et téléphonique
- Prises RJ45
- Chauffage par climatisation réversible
- Résistance sol : 3 Tonnes/m²
- Accès bâtiment : Accès poids lourds
- 1 porte sectionnelle : 5 x 4 mètres
- 2 portes à quai, dont une aire de déchargement latéral : 3,7 x 3,2 mètres
- Hauteur libre dans l'entrepôt : entre 5,5 et 7,1 mètres
- Sanitaires privatifs
- Immeuble indépendant
- Surface RDC : 1436 m²
Accessibilité:
Bus 492, 292, 4280
Tram Gravigny-Balizy (12)
RER Chilly-Mazarin (C)
Autoroute A6
Les informations sur les risques auxquels ce bien est exposé sont disponibles sur le site Géorisques : www.georisques.gouv.fr
Voir plus
Afficher les consommations énergétiques
Localisation et transport aux alentours
Favoris
Exporter
Appeler
Contacter
Signaler cette annonce
