MCarré Conseil est une agence spécialiste de l'immobilier d’entreprise du sud de l’Île-de-France (en Essonne et dans le sud de la Seine-et-Marne et du Val-De-Marne). Elle vous accompagne à chaque é ...
En savoir plus



365 m²
HT HC
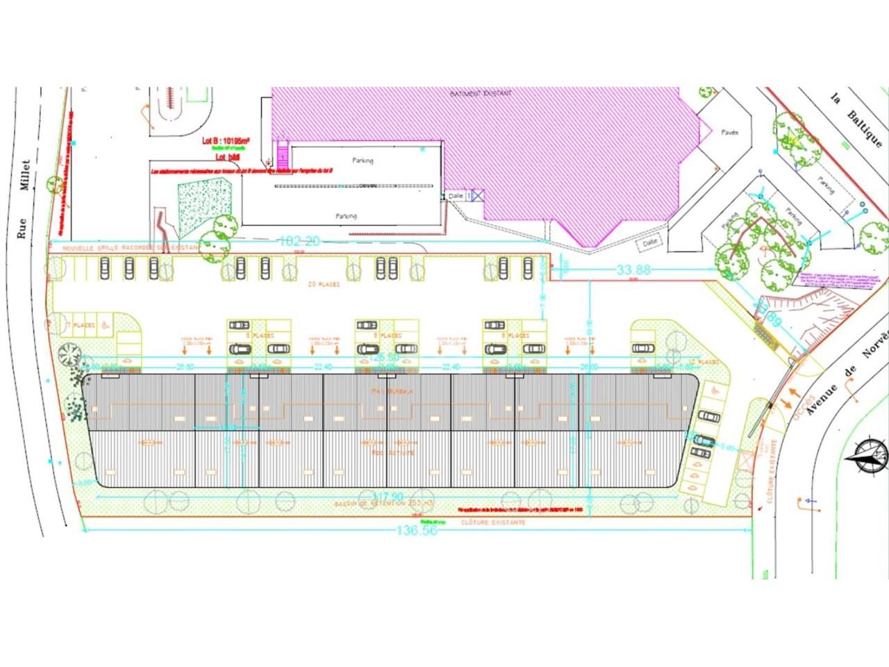
Location activité/entrepôt - 365 m²
Villebon-sur-Yvette (91140)
Dernière mise à jour : Hier
Dans un programme neuf, nous vous proposons un lot de 365 m² à usage d'activité et bureaux d'accompagnement bénéficiant d'un accès indépendant.
Site clos et sécurisé
Régime Fiscal : TVA
Dépôt de garantie : 3 mois de loyer HT/HC
Honoraires : 15% HT du loyer annuel HT HC
Information sur le Bail :
Loyer annuel : 40 150 euros HT/C Les provisions pour charges incluent la fiscalité et l'assurance bailleur mais pas les provisions pour fluides
Prestations :
Accessibilité:
Autoroute Autoroute A10 (sortie 9)
Route Nationale 118
Bus Croisement (Ligne 22, Ligne 21), Sterne (Ligne 91-02)
Les informations sur les risques auxquels ce bien est exposé sont disponibles sur le site Géorisques : www.georisques.gouv.fr
Site clos et sécurisé
| Étage | Type | Surfaces | Dispo | Loyer | Charges | Type de bailRév. annuelle |
|---|---|---|---|---|---|---|
| 1 | Bureaux | 80 | Indice ILAT | |||
| Rdc | Activités | 272 | Indice ILAT | |||
| Rdc | Bureaux | 13 | Indice ILAT | |||
| Total Cellule LOT A4 | Activités | 365 | Immédiate | 110 m²/an HT HC | 37,16 HT/m²/an | 3/6/9/12 ansIndice ILAT |
| Parkings | Indice ILAT |
Régime Fiscal : TVA
Dépôt de garantie : 3 mois de loyer HT/HC
Honoraires : 15% HT du loyer annuel HT HC
Information sur le Bail :
Loyer annuel : 40 150 euros HT/C Les provisions pour charges incluent la fiscalité et l'assurance bailleur mais pas les provisions pour fluides
Prestations :
- Sécurisation du site par clôture et portail électrique sur horloge
- Voirie lourde pour circulations et accès livraisons
- Espaces verts paysagés
- Éclairages extérieurs par spot en façade des bâtiments
- Parking commun de 25 places à l'entrée du site
- Bureaux livrés en open space
- Système de chauffage et rafraîchissement VRV
- 2 WC dont 1 PMR en RDC
- Surface RDC : 285 m²
- Surface terrain : 0
- Haut. libre max. ss poutre : 7 m
- Résistance sol : 3 T/m²
- Equipements entrepôts : Hauteur sous mezzanine : 4,20 m
Contre bardage intérieur blanc en périphérie
Compteurs individuels électriques
Cour camion: aire de manoeuvre en béton de 19 à 24 m - Chauffage : Aérothermes gaz
- Ossature : Métallique
- Murs périmétriques : Parpaing
- Couverture : Bac acier
Accessibilité:
Autoroute Autoroute A10 (sortie 9)
Route Nationale 118
Bus Croisement (Ligne 22, Ligne 21), Sterne (Ligne 91-02)
Les informations sur les risques auxquels ce bien est exposé sont disponibles sur le site Géorisques : www.georisques.gouv.fr
Emplacement(s) de Parking: 4 extérieur(s)
Voir plus
Afficher les consommations énergétiques
Localisation et transport aux alentours
Favoris
Exporter
Appeler
Contacter
Signaler cette annonce
