Depuis 2003, KEOPS Toulouse accompagne les entreprises dans leurs projets immobiliers sur toute l’aire urbaine toulousaine.Notre équipe de professionnels passionnés met à votre service sa connaissa ...
En savoir plus

180 m²
HT HC
Location activité/entrepôt - 180 m²
Toulouse (31000)
Dernière mise à jour : Hier
Local d'activités neuf à louer, idéalement situé au nord de Toulouse, à proximité immédiate du périphérique et de l'A62
Accès : par périphérique sorties n° 12 et n° 33 Bus A proximité de l'A62
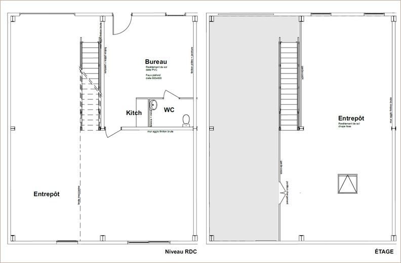
Dans un ensemble immobilier, local d'activités neuf à louer, avec de belles prestations, et idéalement situéUne partie bureaux de 30 m² climatisée, éclairage LEDSanitaires et coin kitchenetteUne partie dépôt de 90 m² avec portes sectionnelle électriqueElectricité en triphaséDalle bétonEclairage LEDUne mezzanine de 60 m²Bac acier + dalle bétonTrappes de désenfumage
Accès : par périphérique sorties n° 12 et n° 33 Bus A proximité de l'A62
Dans un ensemble immobilier, local d'activités neuf à louer, avec de belles prestations, et idéalement situéUne partie bureaux de 30 m² climatisée, éclairage LEDSanitaires et coin kitchenetteUne partie dépôt de 90 m² avec portes sectionnelle électriqueElectricité en triphaséDalle bétonEclairage LEDUne mezzanine de 60 m²Bac acier + dalle bétonTrappes de désenfumage
Voir plus
Afficher les consommations énergétiques
Localisation et transport aux alentours
Favoris
Exporter
Appeler
Contacter
Signaler cette annonce
