L’agence CBRE Bordeaux conseille et accompagne les chefs d’entreprise dans leurs projets immobiliers quels que soient leur taille et leur secteur d’activité. Spécialistes de la transaction de burea ...
En savoir plus

890 m² divisible dès 210 m²
HT HC
Location activité/entrepôt - 890 m²
Saint-Jean-d'Illac (33127)
Dernière mise à jour : Il y a 4 mois
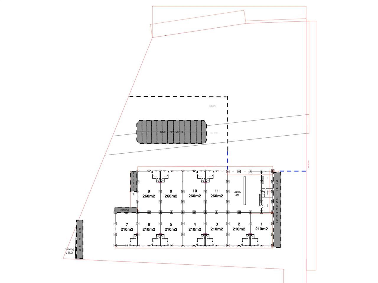
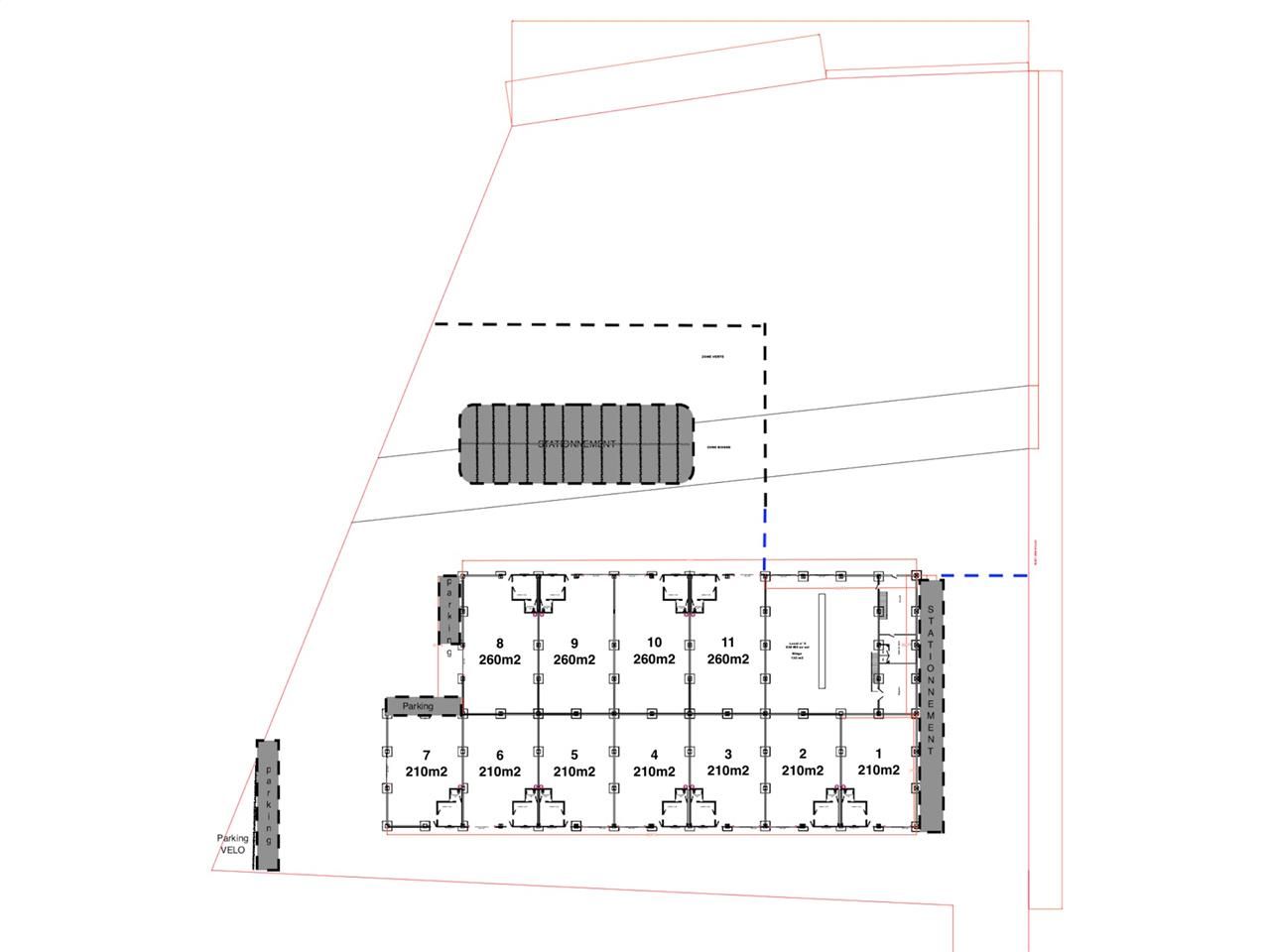
CBRE Bordeaux vous propose à la location 4 cellules d'activités à partir de 210 m² avec un bureau et sanitaires dans chaque lot sur la commune de ST JEAN D'ILLAC. Vous disposerez de places de parking privatives associées sur ce site sécurisé et clos.
Les cellules 3, 4 et 5 peuvent être regroupées permettant une surface totale de 630 m².
Pour plus de renseignements ou pour organiser une visite, n'hésitez pas à me contacter : Anaïs JUDAS
07.63.74.33.75 - [email protected] »
Régime Fiscal : T.V.A.
Dépôt de garantie : 3 mois de loyer HT/HC
Honoraires : 20 % HT du loyer annuel HT HC à la charge du preneur.
Prestations :
Accessibilité:
Aeroport Aéroport de Bordeaux Mérignac à 7,8 km
Route Rocade sortie n° 12 à 7 km
Bus Car régional 412
Les informations sur les risques auxquels ce bien est exposé sont disponibles sur le site Géorisques : www.georisques.gouv.fr
Les cellules 3, 4 et 5 peuvent être regroupées permettant une surface totale de 630 m².
Pour plus de renseignements ou pour organiser une visite, n'hésitez pas à me contacter : Anaïs JUDAS
07.63.74.33.75 - [email protected] »
| Étage | Type | Surfaces | Dispo | Loyer | Charges | Type de bailRév. annuelle |
|---|---|---|---|---|---|---|
| RDC | Activités | 260 | Immédiate | 90 m²/an HT HC | 3-6-9 ansIndice INSEE du Coût de la Construction | |
| RDC | Activités | 210 | Immédiate | 90 m²/an HT HC | 3-6-9 ansIndice INSEE du Coût de la Construction | |
| RDC | Activités | 210 | Immédiate | 90 m²/an HT HC | 3-6-9 ansIndice INSEE du Coût de la Construction | |
| RDC | Activités | 210 | Immédiate | 90 m²/an HT HC | 3-6-9 ansIndice INSEE du Coût de la Construction |
Régime Fiscal : T.V.A.
Dépôt de garantie : 3 mois de loyer HT/HC
Honoraires : 20 % HT du loyer annuel HT HC à la charge du preneur.
Prestations :
- Dalle quartz
- Puissance électrique : 36 KW/H
- Bureaux et sanitaires dans chaque cellule
- Places de parking
- Portes sectionnelles : L:4,19 x H: 4,47m
- Triphasé
- Possibilité de stockage extérieur
- Surface RDC : 890 m²
- Haut. libre max. ss poutre : 6 m
- Résistance sol : 2 T/m²
- Accès bâtiment : gros porteurs
- Ossature : Métallique
- Couverture : Bac acier
Accessibilité:
Aeroport Aéroport de Bordeaux Mérignac à 7,8 km
Route Rocade sortie n° 12 à 7 km
Bus Car régional 412
Les informations sur les risques auxquels ce bien est exposé sont disponibles sur le site Géorisques : www.georisques.gouv.fr
Voir plus
Afficher les consommations énergétiques
Favoris
Exporter
Appeler
Contacter
Signaler cette annonce










