FAIR-RE se positionne en tant que cabinet de conseil indépendant spécialisé dans l'Immobilier d'Entreprise.Notre mission demeure constante : accompagner les entreprises, qu'elles soient privées ou ...
En savoir plus

5 587 m² divisible dès 391 m²
Loyer sur demande
Location activité/entrepôt - 5587 m²
Saint-Jean-d'Illac (33127)
Dernière mise à jour : Il y a 11 mois
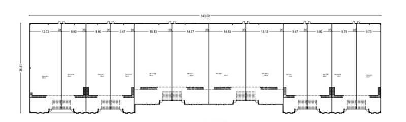
CELLULES NEUVES À ST JEAN D'ILLAC
À ST JEAN D'ILLAC, situé sur la Zone d'Activités Péronette, proche de la rocade de Bordeaux, FAIR-RE vous propose des cellules mixtes de locaux d'activités et de bureaux au sein d'un ensemble immobilier neuf.
Livraison 4 mois après accord.
Prestations :
Les informations sur les risques auxquels ce bien est exposé sont disponibles sur le site Géorisques : www.georisques.gouv.fr
À ST JEAN D'ILLAC, situé sur la Zone d'Activités Péronette, proche de la rocade de Bordeaux, FAIR-RE vous propose des cellules mixtes de locaux d'activités et de bureaux au sein d'un ensemble immobilier neuf.
Livraison 4 mois après accord.
| Étage | Type | Surfaces | Dispo | Loyer | Charges | Type de bailRév. annuelle |
|---|---|---|---|---|---|---|
| Mezzanine | Bureaux | 62 | 120 HT/HC/m²/an | |||
| RDC | Activités | 457 | 80 HT/HC/m²/an | |||
| Total Cellule A | Activités | 519 | ||||
| Mezzanine | Bureaux | 49 | 120 HT/HC/m²/an | |||
| RDC | Activités | 355 | 80 HT/HC/m²/an | |||
| Total Cellule B | Activités | 404 | 3-6-9 ans | |||
| Mezzanine | Bureaux | 49 | 120 HT/HC/m²/an | |||
| RDC | Activités | 355 | 80 HT/HC/m²/an | |||
| Total Cellule C | Activités | 404 | 3-6-9 ans | |||
| Mezzanine | Bureaux | 47 | 120 HT/HC/m²/an | |||
| RDC | Activités | 344 | 80 HT/HC/m²/an | |||
| Total Cellule D | Activités | 391 | 3-6-9 ans | |||
| Mezzanine | Bureaux | 76 | 120 HT/HC/m²/an | |||
| RDC | Activités | 498 | 80 HT/HC/m²/an | |||
| Total Cellule E | Activités | 574 | 3-6-9 ans | |||
| Mezzanine | Bureaux | 75 | 120 HT/HC/m²/an | |||
| RDC | Activités | 487 | 80 HT/HC/m²/an | |||
| Total Cellule F | Activités | 562 | 3-6-9 ans | |||
| Mezzanine | Bureaux | 75 | 120 HT/HC/m²/an | |||
| RDC | Activités | 487 | 80 HT/HC/m²/an | |||
| Total Cellule G | Activités | 562 | 3-6-9 ans | |||
| Mezzanine | Bureaux | 76 | 120 HT/HC/m²/an | |||
| RDC | Activités | 498 | 80 HT/HC/m²/an | |||
| Total Cellule H | Activités | 574 | 3-6-9 ans | |||
| Mezzanine | Bureaux | 47 | 120 HT/HC/m²/an | |||
| RDC | Activités | 344 | 80 HT/HC/m²/an | |||
| Total Cellule I | Activités | 391 | 3-6-9 ans | |||
| Mezzanine | Bureaux | 49 | 120 HT/HC/m²/an | |||
| RDC | Activités | 355 | 80 HT/HC/m²/an | |||
| Total Cellule J | Activités | 404 | 3-6-9 ans | |||
| Mezzanine | Bureaux | 49 | 120 HT/HC/m²/an | |||
| RDC | Activités | 355 | 80 HT/HC/m²/an | |||
| Total Cellule K | Activités | 404 | 3-6-9 ans | |||
| Mezzanine | Bureaux | 48 | 120 HT/HC/m²/an | |||
| RDC | Activités | 350 | 80 HT/HC/m²/an | |||
| Total Cellule L | Activités | 398 | 3-6-9 ans |
Prestations :
- 72 places de stationnement dont 4 places handicapés : 6 places de stationnement par cellule.
- 112 places de cycles soit 13 m2 dédiés à chaque cellule.
- Surface RDC : 4885 m²
Les informations sur les risques auxquels ce bien est exposé sont disponibles sur le site Géorisques : www.georisques.gouv.fr
Voir plus
Afficher les consommations énergétiques
Localisation et transport aux alentours
Favoris
Exporter
Appeler
Contacter
Signaler cette annonce










