EVOLIS, votre partenaire en immobilier d’entreprise! Que vous soyez une entreprise, utilisateur de locaux professionnels, investisseur, ou propriétaire, EVOLIS met à votre service son expertise ...
En savoir plus

1 217 m²
HT HC
Location activité/entrepôt - 1217 m²
Lyon 7 (69007)
Dernière mise à jour : Il y a 3 jours
1 217m² en plein coeur du 7ème arrondissement !
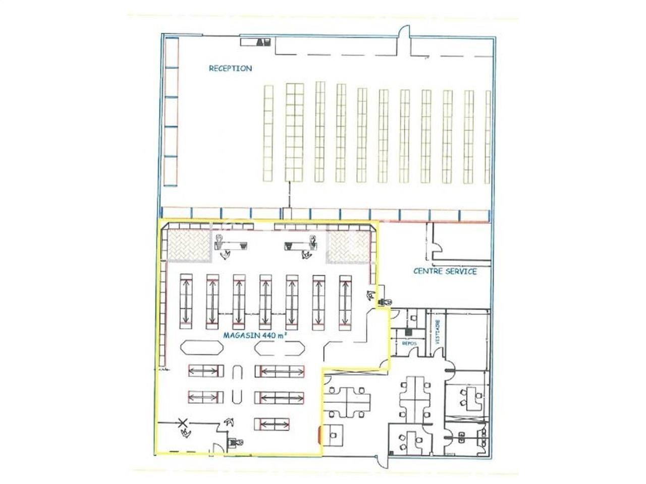
EVOLIS vous propose à la location un local d'activité de 1 217 m², disponible immédiatement, idéalement situé au coeur du 7eme arrondissement de Lyon, dans le Parc Gerland.
Ce bien bénéficie d'une belle surface répartie en trois espaces distincts : une zone d'accueil, une zone de bureaux et une zone de stockage. Doté d'un accès poids lourd sur rue, il permet la réception de marchandises en toute facilité. Bail dérogatoire de 36 mois uniquement. Contactez nous pour toute information complémentaire ou pour organiser une visite !
Impôt Foncier : 8895 €/an
Régime Fiscal : T.V.A.
Dépôt de garantie : 3 mois de loyer HT HC
Honoraires : 20% HT du loyer annuel HT HC à la charge du preneur
Information sur le Bail :
Dérogatoire 36mois
Prestations :
Accessibilité:
SNCF Lyon-Guillotière (Gare SNCF)
Bus Lortet (Ligne C7, Ligne 64)
Métro Place Jean Jaurès (Ligne B)
Tram Jean Macé (Ligne T2)
Les informations sur les risques auxquels ce bien est exposé sont disponibles sur le site Géorisques : www.georisques.gouv.fr
EVOLIS vous propose à la location un local d'activité de 1 217 m², disponible immédiatement, idéalement situé au coeur du 7eme arrondissement de Lyon, dans le Parc Gerland.
Ce bien bénéficie d'une belle surface répartie en trois espaces distincts : une zone d'accueil, une zone de bureaux et une zone de stockage. Doté d'un accès poids lourd sur rue, il permet la réception de marchandises en toute facilité. Bail dérogatoire de 36 mois uniquement. Contactez nous pour toute information complémentaire ou pour organiser une visite !
| Étage | Type | Surfaces | Dispo | Loyer | Charges | Type de bailRév. annuelle |
|---|---|---|---|---|---|---|
| RDC | Activités | 1217 | Immédiate | 73,95 m²/an HT HC | 3930 an HT | Bail dérogatoireILAT Indice des Loyers des Activités Tertiaires |
Impôt Foncier : 8895 €/an
Régime Fiscal : T.V.A.
Dépôt de garantie : 3 mois de loyer HT HC
Honoraires : 20% HT du loyer annuel HT HC à la charge du preneur
Information sur le Bail :
Dérogatoire 36mois
Prestations :
- Façade en bardage
- Toiture bac acier
- Charpente métallique
- Accès véhicules légers
- Accès poids lourds
- Climatisation réversible
- Fibre optique
- Accueil
- Espace ouvert
- Bureaux cloisonnés
- Cloisons sèches
- Charge au sol : 2 tonnes / m²
- Porte sectionnelle motorisée
- Hauteur libre : 14 m
- Tarif bleu
- 11 places de parking privatives
- Showroom
- Comptoir pro
- Surface RDC : 1217 m²
Accessibilité:
SNCF Lyon-Guillotière (Gare SNCF)
Bus Lortet (Ligne C7, Ligne 64)
Métro Place Jean Jaurès (Ligne B)
Tram Jean Macé (Ligne T2)
Les informations sur les risques auxquels ce bien est exposé sont disponibles sur le site Géorisques : www.georisques.gouv.fr
Voir plus
Afficher les consommations énergétiques
Localisation et transport aux alentours
Favoris
Exporter
Appeler
Contacter
Signaler cette annonce










