Leader mondial des services dédiés à l'immobilier d'entreprise, Cushman & Wakefield accompagne ses clients dans la transformation de leurs modes de travail, de consommation et de vie. Nos 43 000 co ...
En savoir plus

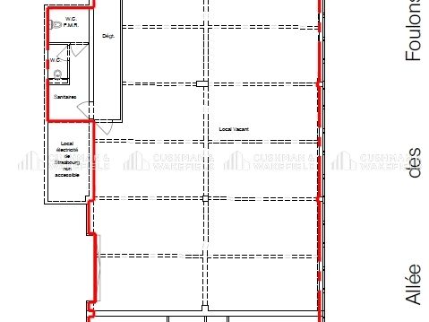
431 m²
HT HC
Location activité/entrepôt - 431 m²
Lingolsheim (67380)
Dernière mise à jour : Il y a 2 jours
Btiment de plain-pied disponible à la location au sein d'un parc verdoyant au coeur de Lingolsheim, à proximité de l'A35, avec accès privatif pour les bureaux et porte sectionnelle pour les lots activité. Parkings extérieurs sur site. Véritable poumon vert à l''entrée de la ville de Strasbourg, le Parc des Tanneries, bénéficie d''une bonne accessibilité et d''un cadre apaisé avec de nombreux espaces paysagers aménagés pour le bien-être des usagers. Ce parc représente un ensemble composé de 20 btiments indépendants construits au milieu de la verdure. A proximité du GCO et des axes autoroutiers, il offre également de nombreuses solutions en transport en commun (bus, tram, TER). Vous bénéficierez, dans ce parc, d''un cadre de travail idéal avec toutes les commodités et services de proximité. Btiment de plain-pied disponible à la location au sein d'un parc verdoyant au coeur de Lingolsheim, à proximité de l'A35, avec accès privatif pour les bureaux et porte sectionnelle pour les lots activité. Parkings extérieurs sur site. Le département Activité & Logistique de Cushman & Wakefield Strasbourg est à votre entière disposition pour visiter ces locaux d''activité à louer au sein du Parc des Tanneries à Lingolsheim. N'hésitez plus, contactez-nous ! ACTIVITE-DEPOT . Ossature et charpente béton . Sol dallage béton traité anti-poussière . Couverture par bac acier avec isolation multicouche remise à neuf . Hauteur : 3.5 m . Facades par panneaux isolés béton finition gravillon lavé . Chauffage électrique par cbles chauffants dans la dalle et aérotherme électrique . Eclairage zénithal par lanterneaux . Accès par 1 porte sectionnelle BUREAUX . Sol souple de type parquet . Faux plafond en dalles minérales avec cadrettes lumineuses LED . Plinthes périphériques permettant le passage des courants faibles et forts . Chauffage par convecteurs électriques neufs . Sanitaires privatifs dont PMR refaits à neuf . Accès indépendant de plain pied Bus : Lignes 15 et 50\tTram : Lignes B et C Accès routier : A35 sortie Eckbolsheim ou Montagne Verte Arrêt gare TER (ligne Strasbourg Molsheim), Strasbourg Roethig à 5 min à pied du Parc
Voir plus
Afficher les consommations énergétiques
Localisation et transport aux alentours
Favoris
Exporter
Appeler
Contacter
Signaler cette annonce









