MCarré Conseil est une agence spécialiste de l'immobilier d’entreprise du sud de l’Île-de-France (en Essonne et dans le sud de la Seine-et-Marne et du Val-De-Marne). Elle vous accompagne à chaque é ...
En savoir plus

1 668 m²
HT HC
Location activité/entrepôt - 1668 m²
Linas (91310)
Dernière mise à jour : Hier
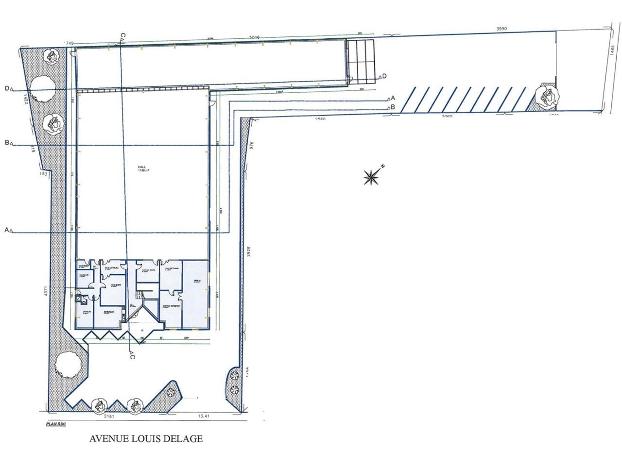
Dans une zone d'activité idéalement située à la croisée de la N20 et de la Francilienne, nous vous proposons à la commercialisation un bâtiment indépendant à usage d'activité et de bureaux édifié sur un foncier clôturé de 3 365 m², disposant de deux accès indépendants.
Impôt Foncier : 13800 €//HT/an
Régime Fiscal : TVA
Dépôt de garantie : 3 mois de loyer HT/HC
Honoraires : 15% HT du loyer annuel HT HC
Information sur le Bail :
Loyer annuel : 151 000 euros HT/HC
Prestations :
Accessibilité:
Route Nationale 104 Francilienne
Route Nationale 20
Bus Chateau d'Eau (lignes 9503- 9114 et 9115)
Les informations sur les risques auxquels ce bien est exposé sont disponibles sur le site Géorisques : www.georisques.gouv.fr
| Étage | Type | Surfaces | Dispo | Loyer | Charges | Type de bailRév. annuelle |
|---|---|---|---|---|---|---|
| 1 | Bureaux | 270 | Indice ILAT | |||
| Rdc | Activités | 1148 | Indice ILAT | |||
| Rdc | Bureaux | 250 | Indice ILAT | |||
| Total Cellule | Activités | 1668 | Immédiate | 90,53 m²/an HT HC | 3/6/9 ansIndice ILAT | |
| Parkings | Indice ILAT |
Impôt Foncier : 13800 €//HT/an
Régime Fiscal : TVA
Dépôt de garantie : 3 mois de loyer HT/HC
Honoraires : 15% HT du loyer annuel HT HC
Information sur le Bail :
Loyer annuel : 151 000 euros HT/HC
Prestations :
- Site clos bénéficiant de 2 accès indépendants : 1 par portail autoportant motorisé et 1 par portail double-battant non motorisé
- Bureaux :
- Hall d'accueil
- Fibre optique
- Bureaux cloisonnés
- Salle de réunion
- Locaux sociaux (vestiaires, douches, sanitaires, réfectoire)
- Sanitaires H/F
- Sécurité : vidéosurveillance
- Immeuble indépendant
- Surface RDC : 1398 m²
- Surface terrain : 3365
- Haut. libre min. ss poutre : 7,2 m
- Haut. libre max. ss poutre : 9,2 m
- Résistance sol : 3 T/m²
- Equipements entrepôts : Accès PL
Cour en enrobé
Pont roulant 20 tonnes
Tarif jaune 240 kVa
Local extracteur
Extracteur d'échappement + 2 tourelles d'aération
Réseau air comprimé - Chauffage : Radiants gaz
- Ossature : Métallique
- Murs périmétriques : Double bardage
- Couverture : Bac acier
Accessibilité:
Route Nationale 104 Francilienne
Route Nationale 20
Bus Chateau d'Eau (lignes 9503- 9114 et 9115)
Les informations sur les risques auxquels ce bien est exposé sont disponibles sur le site Géorisques : www.georisques.gouv.fr
Voir plus
Afficher les consommations énergétiques
Localisation et transport aux alentours
Favoris
Exporter
Appeler
Contacter
Signaler cette annonce
