Depuis 2003, KEOPS Toulouse accompagne les entreprises dans leurs projets immobiliers sur toute l’aire urbaine toulousaine.Notre équipe de professionnels passionnés met à votre service sa connaissa ...
En savoir plus

303 m²
HT HC
Location activité/entrepôt - 303 m²
L'Union (31240)
Dernière mise à jour : Hier
Local d'activités à louer, idéalement situé à l'est de Toulouse
Accès : par périphérique sortie n° 13 "Borderouge" et 14 "L'Union" Bus
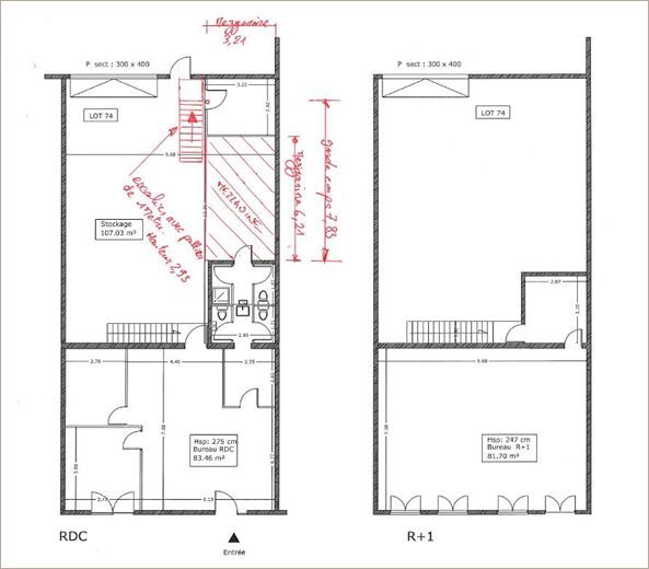
Dans un ensemble immobilier, local d'activités d'une surface de 303 m² à louerUne partie bureaux de 168 m²Climatisation réversibleOpen space, bureaux individuelsSanitaires, douche, kitchenette avec four et plaque de cuissonUne partie dépôt de 107 m²Dalle bétonPorte sectionnelle électriqueUne mezzanine de 28 m²Bâtiment type structure métallique, remplissage briqueToiture isolée
Accès : par périphérique sortie n° 13 "Borderouge" et 14 "L'Union" Bus
Dans un ensemble immobilier, local d'activités d'une surface de 303 m² à louerUne partie bureaux de 168 m²Climatisation réversibleOpen space, bureaux individuelsSanitaires, douche, kitchenette avec four et plaque de cuissonUne partie dépôt de 107 m²Dalle bétonPorte sectionnelle électriqueUne mezzanine de 28 m²Bâtiment type structure métallique, remplissage briqueToiture isolée
Voir plus
Afficher les consommations énergétiques
Localisation et transport aux alentours
Favoris
Exporter
Appeler
Contacter
Signaler cette annonce
