Depuis 2003, KEOPS Toulouse accompagne les entreprises dans leurs projets immobiliers sur toute l’aire urbaine toulousaine.Notre équipe de professionnels passionnés met à votre service sa connaissa ...
En savoir plus

572 m²
HT HC
Location activité/entrepôt - 572 m²
Colomiers (31770)
Dernière mise à jour : Hier
Local d'activités et commercial neuf à louer, idéalement situé au cœur de la ZI En Jacca
Accès : par RN124 sortie n° 6 "Colomiers"
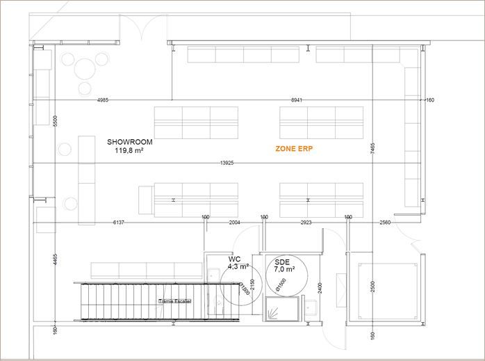
Sur un site très qualitatif, local d'activités et commercial neuf à louerUne partie showroom ERP de 119 m² avec sanitairesUne partie entrepôt de 315 m² avec porte sectionnelle électrique, dalle béton quartzHauteur à 7mUne partie bureaux au R+1 de 138 m² avec salle de réunion, 3 bureaux, sanitaires, salle de pause...Bâtiment type structure métallique, bardage double peauSite clôturé avec portail électrique, activités BtoB déjà installées sur site
Accès : par RN124 sortie n° 6 "Colomiers"
Sur un site très qualitatif, local d'activités et commercial neuf à louerUne partie showroom ERP de 119 m² avec sanitairesUne partie entrepôt de 315 m² avec porte sectionnelle électrique, dalle béton quartzHauteur à 7mUne partie bureaux au R+1 de 138 m² avec salle de réunion, 3 bureaux, sanitaires, salle de pause...Bâtiment type structure métallique, bardage double peauSite clôturé avec portail électrique, activités BtoB déjà installées sur site
Voir plus
Afficher les consommations énergétiques
Localisation et transport aux alentours
Favoris
Exporter
Appeler
Contacter
Signaler cette annonce
