Notre équipe est aujourd’hui formée de 20 collaborateurs, composés de consultants, tous spécialisés dans leurs métiers, bureaux, commerces, locaux d’activités, investissement et de nos assistantes. ...
En savoir plus

634 m²
Bureau à vendre - 634 m²
Mèze (34140)
Dernière mise à jour : Il y a 2 jours
Bureaux neufs à vendre ou à louer - Ensemble immobilier divisible à Mèze sur axe stratégique RD613
À Mèze, sur l'axe RD613 reliant Pézenas et Sète, découvrez un programme immobilier neuf en VEFA et BEFA proposant des bureaux divisibles.
Bénéficiant d'une excellente visibilité, d'une accessibilité optimale et de stationnements en nombre, cet ensemble R+2 avec ascenseurs et accès PMR s'adapte aux besoins des entreprises souhaitant s'implanter dans un secteur en fort développement économique.
Cet ensemble immobilier neuf à Mèze se distingue par sa localisation stratégique le long de la RD613, axe majeur entre Pézenas et Sète, garantissant visibilité et flux importants. Le projet, implanté à proximité immédiate d'une moyenne surface alimentaire, s'inscrit dans un environnement dynamique, marqué par la croissance démographique et économique du Bassin de Thau.
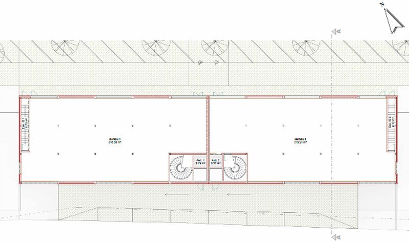
Le bâtiment en R+2 proposera des commerces et des bureaux pour une surface totale de plus de 2 000 m2. Les espaces de bureaux sont dès aujourd'hui proposés en VEFA et en BEFA, vendus bruts, avec la possibilité d'un aménagement partiel selon les besoins des utilisateurs. Les prestations incluent une hauteur sous plafond de 2,80 m, deux ascenseurs monte-charges, des accès PMR et la personnalisation des espaces.
Le stationnement est facilité par 47 places dont certaines couvertes. Cet ensemble offre aux investisseurs, professions libérales et enseignes commerciales une opportunité d'implantation sur un secteur en pleine expansion, alliant visibilité, confort et adaptabilité.
Honoraires : 6 % HT du prix de vente HT/HD à la charge de l'acquéreur
Prestations :
Accessibilité:
Autoroute A9 (12 mins)
Centre-Ville de Mèze (3 mins)
SNCF Gare de Sète (25 mins)
Aéroport Béziers Montpellier Méditerranée (30 mins)
Bus Ligne Mobilité Agglopole n°20 (6 mins à pied)
Les informations sur les risques auxquels ce bien est exposé sont disponibles sur le site Géorisques : www.georisques.gouv.fr
À Mèze, sur l'axe RD613 reliant Pézenas et Sète, découvrez un programme immobilier neuf en VEFA et BEFA proposant des bureaux divisibles.
Bénéficiant d'une excellente visibilité, d'une accessibilité optimale et de stationnements en nombre, cet ensemble R+2 avec ascenseurs et accès PMR s'adapte aux besoins des entreprises souhaitant s'implanter dans un secteur en fort développement économique.
Cet ensemble immobilier neuf à Mèze se distingue par sa localisation stratégique le long de la RD613, axe majeur entre Pézenas et Sète, garantissant visibilité et flux importants. Le projet, implanté à proximité immédiate d'une moyenne surface alimentaire, s'inscrit dans un environnement dynamique, marqué par la croissance démographique et économique du Bassin de Thau.
Le bâtiment en R+2 proposera des commerces et des bureaux pour une surface totale de plus de 2 000 m2. Les espaces de bureaux sont dès aujourd'hui proposés en VEFA et en BEFA, vendus bruts, avec la possibilité d'un aménagement partiel selon les besoins des utilisateurs. Les prestations incluent une hauteur sous plafond de 2,80 m, deux ascenseurs monte-charges, des accès PMR et la personnalisation des espaces.
Le stationnement est facilité par 47 places dont certaines couvertes. Cet ensemble offre aux investisseurs, professions libérales et enseignes commerciales une opportunité d'implantation sur un secteur en pleine expansion, alliant visibilité, confort et adaptabilité.
| Étage | Type | Surfaces | Dispo | Prix(m²) | Charges | Honoraires | Fiscal |
|---|---|---|---|---|---|---|---|
| 1 | Bureaux | 634 | Nous consulter | 1600 m² HD | n.c. | 6 % HT du prix de vente HT/HD à la charge de l'acquéreur |
Honoraires : 6 % HT du prix de vente HT/HD à la charge de l'acquéreur
Prestations :
- En VEFA ou BEFA
- Visibilité et accessibilité depuis la RD613 (axe Mèze-Pezenas)
- Proximité immédiate d'une moyenne surface alimentaire
- Ensemble immobilier en R+2 accessible PMR
- Toiture plate en membrane étanche
- 2 ascenseurs monte-charges
- Bureaux en R+1 de 634 m2 divisibles
- Personnalisation et adaptabilité des espaces
- Loués brut ou aménagés non cloisonnés (carrelage, isolation périphérique blanchie, climatisation, fluides et évacuations en attente)
- HSP 2,8m
- Places de stationnement couvertes numérotées en Rez-de-Chaussée bas (1 place/50 m2 pour les bureaux en R+1), stationnements en foisonnement pour la clientèle
- Des places supplémentaires peuvent être acquises (12 000 euros HT la place)
- 47 places de stationnements sur l'ensemble immobilier
Accessibilité:
Autoroute A9 (12 mins)
Centre-Ville de Mèze (3 mins)
SNCF Gare de Sète (25 mins)
Aéroport Béziers Montpellier Méditerranée (30 mins)
Bus Ligne Mobilité Agglopole n°20 (6 mins à pied)
Les informations sur les risques auxquels ce bien est exposé sont disponibles sur le site Géorisques : www.georisques.gouv.fr
Voir plus
Afficher les consommations énergétiques
Favoris
Exporter
Appeler
Contacter
Signaler cette annonce
