Conseil en immobilier d'entreprise, Cushman & Wakefield est un acteur incontournable au rayonnement international. Cushman & Wakefield offre des solutions dans toutes les étapes que comporte un p ...
En savoir plus



5 128 m² divisible dès 94 m²
HT HC
LUMINE & SENS - Location bureau - 5128 m²
Lyon 8 (69008)
Publiée : Il y a 2 jours
Bureaux neufs à louer ou à vendre - Lyon 8e | Monplaisir
Immeuble LUMINE & SENS
Cushman & Wakefield vous propose des bureaux neufs à la location ou à la vente au sein du programme Lumine & Sens, idéalement situé au coeur du quartier dynamique de Monplaisir (69008).
Conçu pour répondre aux exigences des entreprises en quête de confort, de performance et de bien-être, l'immeuble offre des plateaux de bureaux lumineux, des prestations de qualité ainsi que plusieurs espaces extérieurs à chaque niveau.
Le programme s'inscrit dans une démarche environnementale exigeante :
- RE 2020 - seuils 2025, avec un objectif seuils 2028
- Certification BREEAM Very Good
- Conformité Décret Tertiaire
L'environnement immédiat est particulièrement attractif, avec de nombreux commerces et services de proximité : restaurants, boulangeries, traiteurs, pharmacie, poste, etc.
Accessibilité optimale :
Métro ligne D - station Monplaisir à proximité immédiate
- Presqu'île : 12 min
- Part-Dieu : 14 min (ou 13 min à vélo)
Les informations sur les risques auxquels ce bien est exposé sont disponibles sur le site Géorisques : www.georisques.gouv.fr
Régime Fiscal : T.V.A.
Dépôt de garantie : 3 mois de loyer HT/HC
Paiement Loyer : Trimestriel
Honoraires : 15 % HT du loyer annuel HT/HC à la charge du preneur.
Prestations :
Accessibilité:
Métro Place Bellecour (ligne D)
Bus Ligne C16
SNCF Gare Perrache
SNCF Gare Part-Dieu
Les informations sur les risques auxquels ce bien est exposé sont disponibles sur le site Géorisques : www.georisques.gouv.fr
Immeuble LUMINE & SENS
Cushman & Wakefield vous propose des bureaux neufs à la location ou à la vente au sein du programme Lumine & Sens, idéalement situé au coeur du quartier dynamique de Monplaisir (69008).
Conçu pour répondre aux exigences des entreprises en quête de confort, de performance et de bien-être, l'immeuble offre des plateaux de bureaux lumineux, des prestations de qualité ainsi que plusieurs espaces extérieurs à chaque niveau.
Le programme s'inscrit dans une démarche environnementale exigeante :
- RE 2020 - seuils 2025, avec un objectif seuils 2028
- Certification BREEAM Very Good
- Conformité Décret Tertiaire
L'environnement immédiat est particulièrement attractif, avec de nombreux commerces et services de proximité : restaurants, boulangeries, traiteurs, pharmacie, poste, etc.
Accessibilité optimale :
Métro ligne D - station Monplaisir à proximité immédiate
- Presqu'île : 12 min
- Part-Dieu : 14 min (ou 13 min à vélo)
Les informations sur les risques auxquels ce bien est exposé sont disponibles sur le site Géorisques : www.georisques.gouv.fr
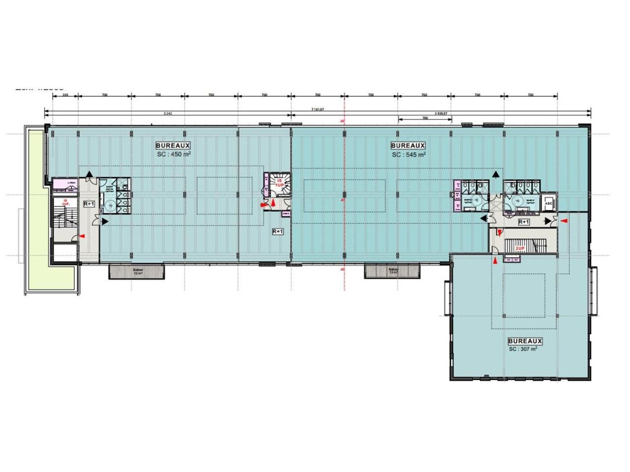
| Étage | Type | Surfaces | Dispo | Loyer | Charges | Type de bailRév. annuelle |
|---|---|---|---|---|---|---|
| R+3 | Bureaux | 1116 | 260 HT/HC/m²/an | 6-9 ansSur l'indice ILAT | ||
| R+2 | Bureaux | 1125 | 260 HT/HC/m²/an | 6-9 ansSur l'indice ILAT | ||
| R+1 | Bureaux | 1430 | 260 HT/HC/m²/an | 6-9 ansSur l'indice ILAT | ||
| RdC | Bureaux | 1363 | 260 HT/HC/m²/an | 6-9 ansSur l'indice ILAT | ||
| SS | Bureaux | 94 | 260 HT/HC/m²/an | 6-9 ansSur l'indice ILAT | ||
| SS | Parkings | 1800 HT/HC/place/an | 6-9 ansSur l'indice ILAT |
Régime Fiscal : T.V.A.
Dépôt de garantie : 3 mois de loyer HT/HC
Paiement Loyer : Trimestriel
Honoraires : 15 % HT du loyer annuel HT/HC à la charge du preneur.
Prestations :
- RE 2020 seuils 2025 avec l'objectif de viser les seuils 2028
- Décret tertiaire
- Création d'espaces verts généreux et avec des usages diversifiés
- Wiredscore Silver
- ERP 5 type w
- 400 m² de terrasses
- Faux plancher
- Climatisation
- Local vélo
- Hauteur 2.70m
- Ventilation double flux
- Surface RDC : 1363 m²
Accessibilité:
Métro Place Bellecour (ligne D)
Bus Ligne C16
SNCF Gare Perrache
SNCF Gare Part-Dieu
Les informations sur les risques auxquels ce bien est exposé sont disponibles sur le site Géorisques : www.georisques.gouv.fr
Voir plus
Afficher les consommations énergétiques
Localisation et transport aux alentours
Favoris
Exporter
Appeler
Contacter
Signaler cette annonce










