Arthur Loyd est implantée depuis 1986 à Orléans, soit 35 ans de présence au quotidien sur le terrain et auprès des acteurs économiques du Loiret.Nous accompagnons les porteurs de projet, quelles qu ...
En savoir plus

3 067 m²
HT HC
Location activité/entrepôt - 3067 m²
Ingré (45140)
Dernière mise à jour : Il y a 2 jours
Bâtiment d'activités à louer - 3 067 m2 - ZI d'Ingré / Saint Jean de la Ruelle - ADELIS
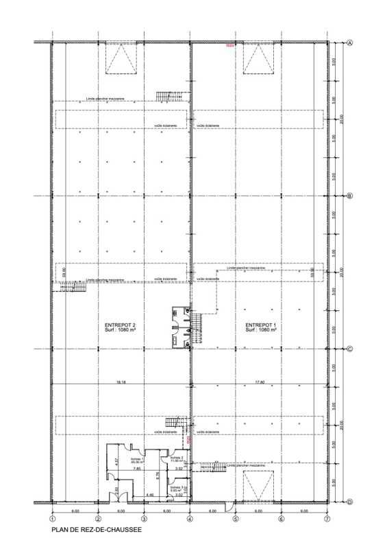
Au coeur de la ZI d'Ingré/Saint Jean de la Ruelle, dans un ensemble immobilier en copropriété clos et sécurisé, Arthur Loyd Orléans vous propose un bâtiment mixte d'environ 3 067 m2 à usage d'activités et de bureaux :
Une partie activités à usage d'entrepôt, stockage ou d'atelier divisée en deux cellules :
- 1 080 m2 + 425 m2 de mezzanine
- 1 000 m2 + 430 m2 de mezzanine
L'ensemble est accessible par 4 portes sectionnelles.
Une partie bureaux sur deux niveaux comprenant actuellement : un open space et 5 bureaux et double sanitaires.
Emplacements de stationnement en façade du bâtiment.
Le bâtiment doit faire l'objet d'ici la fin de l'année 2025 de travaux de rénovation dont le détail est à préciser avec le futur utilisateur.
L'ensemble immobilier est à proximité immédiate de la tangentielle RD2060 ainsi que de l'accès autoroute A71 "Orléans Centre" puis de l'échangeur autoroutier A10 / A71.
Le bâtiment est également desservi par le réseau de bus TAO et le tramway ligne B.
Impôt Foncier : 20000 €/HT en 2024
Régime Fiscal : T.V.A.
Dépôt de garantie : 1 trimestre de loyer
Honoraires : 15% HT du loyer annuel HT à la charge du preneur
Information sur le Bail :
Provision pour charges : 5 212,00 euros TTC comprenant les charges communes générales et l'eau.
Prestations :
Accessibilité:
Autoroute A10 / A71 : échangeur autoroutier
Autoroute A71 - sortie 1 : Orléans centre
RD / RN Tangentielle RD 2060
RD / RN RD 2020
Transports en commun Dunant (Bus 17)
Transports en commun Trois Fontaines (Tram B, bus 2, 4, 17 et 20)
Les informations sur les risques auxquels ce bien est exposé sont disponibles sur le site Géorisques : www.georisques.gouv.fr
Au coeur de la ZI d'Ingré/Saint Jean de la Ruelle, dans un ensemble immobilier en copropriété clos et sécurisé, Arthur Loyd Orléans vous propose un bâtiment mixte d'environ 3 067 m2 à usage d'activités et de bureaux :
Une partie activités à usage d'entrepôt, stockage ou d'atelier divisée en deux cellules :
- 1 080 m2 + 425 m2 de mezzanine
- 1 000 m2 + 430 m2 de mezzanine
L'ensemble est accessible par 4 portes sectionnelles.
Une partie bureaux sur deux niveaux comprenant actuellement : un open space et 5 bureaux et double sanitaires.
Emplacements de stationnement en façade du bâtiment.
Le bâtiment doit faire l'objet d'ici la fin de l'année 2025 de travaux de rénovation dont le détail est à préciser avec le futur utilisateur.
L'ensemble immobilier est à proximité immédiate de la tangentielle RD2060 ainsi que de l'accès autoroute A71 "Orléans Centre" puis de l'échangeur autoroutier A10 / A71.
Le bâtiment est également desservi par le réseau de bus TAO et le tramway ligne B.
| Étage | Type | Surfaces | Dispo | Loyer | Charges | Type de bailRév. annuelle |
|---|---|---|---|---|---|---|
| RDC | Activités | 1080 | 1er décembre 2025 | ILC ou ILAT | ||
| MEZ | Activités | 425 | 1er décembre 2025 | ILC ou ILAT | ||
| Total Cellule CELLULE 1 | Activités | 1505 | 1er octobre 2025 | Bail commercial 3/6/9ILC ou ILAT | ||
| RDC | Activités | 999 | 1er décembre 2025 | ILC ou ILAT | ||
| RDC | Bureaux | 68 | 1er décembre 2025 | ILC ou ILAT | ||
| RDC | Locaux sociaux | 13 | 1er décembre 2025 | ILC ou ILAT | ||
| MEZ | Activités | 430 | 1er décembre 2025 | ILC ou ILAT | ||
| Etage | Bureaux | 52 | 1er décembre 2025 | ILC ou ILAT | ||
| Total Cellule CELLULE 2 | Activités | 1562 | 1er octobre 2025 | Bail commercial 3/6/9ILC ou ILAT |
Impôt Foncier : 20000 €/HT en 2024
Régime Fiscal : T.V.A.
Dépôt de garantie : 1 trimestre de loyer
Honoraires : 15% HT du loyer annuel HT à la charge du preneur
Information sur le Bail :
Provision pour charges : 5 212,00 euros TTC comprenant les charges communes générales et l'eau.
Prestations :
- Activités : 4 portes sectionnelles, hauteur : 6,20 m au plus haut et 5 m au plus bas.
- Bureaux : huisseries avec barreaux.
- Mezzanines.
- Surface RDC : 2160 m²
Accessibilité:
Autoroute A10 / A71 : échangeur autoroutier
Autoroute A71 - sortie 1 : Orléans centre
RD / RN Tangentielle RD 2060
RD / RN RD 2020
Transports en commun Dunant (Bus 17)
Transports en commun Trois Fontaines (Tram B, bus 2, 4, 17 et 20)
Les informations sur les risques auxquels ce bien est exposé sont disponibles sur le site Géorisques : www.georisques.gouv.fr
Voir plus
Afficher les consommations énergétiques
Localisation et transport aux alentours
Favoris
Exporter
Appeler
Contacter
Signaler cette annonce
